

作品包括:
Word版说明书1份,共52页,约22000字
CAD版本图纸,共2张
[摘要] 机械厂变电所电气部分设计,重点研究大型工厂的降压变电所电气部分的初步设计。通过分析原始资料求得各车间的计算负荷,并对相同负荷等级的车间进行归类。求出无功功率所需的补偿容量,确定变压器的容量及其型号。根据安全、可靠、灵活、经济的运行特点,列出多种主接线方案,对比选取最优方案。利用标幺值法进行短路计算,并对导线、断路器、隔离开关、熔断器、电压互感器、电流互感器等电气设备的选择校验作了详细的说明和分析。根据主变压器的容量选择合适的继电保护方案并进行了继电保护的整定计算。本文中对于二次回路的测量和监察图采用VISIO软件进行绘制,对于变电所的主接线图和主变压器的继电保护配置图则通过AutoCAD软件直观的展现出来。
[关键词] 变电所 机械厂 主接线 设备选择 AutoCAD
目录
引言 1
第1章 绪论 2
1.1 毕业设计的目的及其意义 2
1.2 设计任务要求 2
1.3 原始资料分析 2
1.3.1设计依据 2
1.3.2 供电电源情况 4
1.3.3 气象资料 4
第2章 负荷计算和无功功率补偿 5
2.1 负荷分析 5
2.2负荷计算 5
2.3无功功率补偿 7
2.3.1无功功率概述 8
2.3.2无功功率补偿装置 8
2.3.3无功功率补偿的计算 9
第3章 变电所主变压器的选择 11
3.1 各部分变压器容量和台数的确定 11
3.1.1变电所1变压器台数及容量的选择 11
3.1.2变电所2变压器台数及容量的选择 11
3.2 35Kv侧总变压器容量和台数的确定 12
第4章 电气主接线方案的确定 14
4.1 电气主接线的概述 14
4.2 电气主接线的设计原则 14
4.3电气主接线的设计 15
4.4 高低压配电柜的选择 17
第5章 短路电流的计算 18
5.1短路电流的概述 18
5.1.1 短路的种类 18
5.1.2 短路电流计算的目的 18
5.2 各短路点的短路电流计算 18
第6章 电气设备的选择 23
6.1 电气设备的选择原则 23
6.2 导线的选择与校验 23
6.2.1高低压母线的选择校验 23
6.2.2厂内35kv至10kv间导线的选择校验 26
6.2.3厂内10kv至0.4kv间导线的选择校验 27
6.2.3作为备用电源的高压联络线的选择校验 28
6.3 断路器的选择与校验 28
6.3 隔离开关的选择与校验 30
6.4 高压熔断器的选择与校验 31
6.5 电压互感器的选择 32
6.6 电流互感器的选择 33
第7章 二次回路方案和继电保护的规划设计 37
7.1 二次回路方案的确定 37
7.2 继电保护装置的基本要求 38
7.3 变压器组的继电保护 39
7.3.1电力变压器保护装置的配置要求 39
7.2.2变压器保护的整定计算与检验 40
7.3 变电所的防雷保护 43
结论 44
致谢语 45
参考文献 46
附录 47
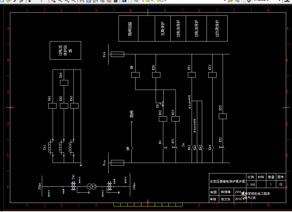
1. 电气主接线图 47
2. 主变压器继电保护配置图 48
温馨提示:
1、题目前面的备注【字母数字编号】为本站整理分类的编号,与课题内容无关,请选题时忽视;
2、若题目上备注三维,则表示文件里包含三维源文件,由于三维组成零件数量较多,为保证预览截图的简洁性,本站将三维文件夹进行了打包。三维及CAD预览截图,均为本站电脑打开软件进行截图的,保证能够打开,下载原件超高清,下载后解压即可;
3、本站所有资源如无特殊说明,都需要本地电脑安装Office2007。图纸软件为AutoCAD,PROE,UG,SolidWorks,CATIA等;
4、本站所有图文资料仅供用户学习参考,不作为任何商用或其他用途;
5、本站不保证下载资源的准确性、安全性和完整性, 不包修改,不支持退换,同时也不承担用户因使用这些下载资源对自己和他人造成任何形式的伤害或损失;
6、 下载文件中如有侵权或不适当内容,请与我们联系,我们立即纠正。