

作品包括:
说明书一份,共64页,约25000字
CAD版本图纸,共5张
摘要
本油库处于南京化学工业园区东北侧,根据此油库的年经营量和油品运输方式并充分结合该油库所在地地形、水文地质资料及相关气象资料,对油库进行合理的设计,并增加了油气回收系统的设计。
本油库属于地面油库,成品油年周转量:汽油(92#、95#):45万吨;柴油(0#、-10#):65万吨;化工原料(苯、醋酸乙酯),任选2种:各10万吨;油库周转系数按22次/年计算。油品全部扬子石化管道进油,50%水路发油,50%公路发油。
本设计由文字说明、数据计算和图纸绘制三大部分组成。
文字说明和数据计算包括油罐区总容量及分区罐容量计算确定;油罐单罐容量及数目确定;罐区总平面布置;工艺流程设计;罐区管线布置设计;泵房安装设计计算;泵型选择计算;泵安装高度计算;油品输送阻力计算及管径选择;罐区消防设计,消防管线阀门布置及计算。
绘图部分依据计算说明、规范和经济因素,在满足生产要求的条件下,进行了较为经济合理的布局,并为油库将来的扩建和发展留有余地。
关键词:油库;罐区;输油管;水路运输;公路运输;油气回收
1 绪论 1
2 总平面布置 2
2.1 概述 2
2.2 总平面图布置原则 2
2.3 平面布置 3
2.4 储油区 3
2.4.1 各油品计算容量确定 3
2.4.2 各种油罐个数确定 4
2.4.3 油库容量、等级确定 5
2.5 罐区布置及尺寸计算 5
2.5.1 汽油罐区(共计6个罐) 6
2.5.2 柴油罐区(共计4个罐) 6
2.5.3 化工原料罐区(苯和醋酸乙酯共计4个罐) 7
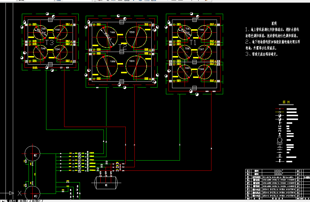
3 罐区管线布置 8
4管线工艺设计计算 9
4.1 收油设计 9
4.2 公路发油设计 9
4.2.1 装车台车位计 9
4.2.2 发油平台大小、位置的确定 10
4.3 船舶发油设计 10
4.3.1 泊位数计算 10
4.3.2 泊位大小,位置设计 12
4.4 油罐区管线布置设计 12
4.4.1进油管线 13
4.4.2 出油管线 14
4.5 罐区管线布置 17
4.6 罐区管道安装 17
5管线水力计算及泵类型选择(公路发油主管线水力计算) 18
5.1 汽油公路发油主管线水力计算 19
5.1.1 汽油发油主管线水力计算 19
5.1.2 汽油立管管径段管道的水力摩阻计算 20
5.1.3 汽油倒罐水力计算 20
5.2 柴油公路发油主管线水力计算 21
5.2.1 柴油发油主管线水力计算 21
5.2.2 立管管径段管道的水力摩阻计算 22
5.2.3 柴油倒罐水力计算 22
5.3 苯公路发油主管线水力计算 23
5.3.1 苯发油主管线水力计算 23
5.3.2苯立管管径段管道的水力摩阻计算 24
5.3.3 苯倒罐水力计算 24
5.4 醋酸乙酯公路发油主管线水力计算 25
5.4.1 醋酸乙酯发油主管线水力计算 25
5.4.2 醋酸乙酯立管管径段管道的水力摩阻计算 26
5.4.3 醋酸乙酯倒罐水力计算 26
5.5 公路发油泵的选择 27
5.5.1 泵型选择IY150-125R-315型泵 27
5.5.2 轻油发油泵的吸入能力校核 27
5.6 倒罐泵的选择 29
5.6.1 泵型选择 IY100-65R-200型泵 29
5.6.2 倒罐泵吸入能力校核 29
5.7 输油管道壁厚校核 30
5.8 泵房形式和建筑要求 31
5.8.1 油库泵房位置的选择一般遵从如下原则 31
5.8.2 泵房的建筑要求 31
5.8.2.1 泵房的建筑结构要求 31
5.8.3 油泵房的安装设计 32
6 油气回收系统设计 32
6.1 油罐汽车设计 33
6.2 发油亭设计 34
6.3集气系统设计 36
6.4油气回收处理装置选择 36
6.4.1 吸附法 37
6.4.2 膜分离法 38
6.4.3 方案选择 41
7油库消防设计 42
7.1 泡沫供给强度 43
7.2 泡沫计算耗量 43
7.2.1 内浮顶油罐 44
7.2.2 拱顶油罐 44
7.3 泡沫产生器的数量 44
7.4 泡沫液储备量 46
7.4.1 油罐所须的泡沫混合液流量 46
7.4.2 流散液体火焰所需的混合液流量 46
7.4.3 泡沫液储备量 47
7.5 消防用水总耗量 47
7.5.1 冷却水供给强度 48
7.5.2 冷却水供给时间 48
7.5.3 消防用水的耗量 48
7.6 消防设备的选择和布置 49
7.6.1 泡沫系统 49
7.6.1.1 泡沫比例混合器 49
7.6.2 清水系统 52
7.6.2.1 清水泵设计流量 52
参 考 文 献 57
致 谢 59
温馨提示:
1、题目前面的备注【字母数字编号】为本站整理分类的编号,与课题内容无关,请选题时忽视;
2、若题目上备注三维,则表示文件里包含三维源文件,由于三维组成零件数量较多,为保证预览截图的简洁性,本站将三维文件夹进行了打包。三维及CAD预览截图,均为本站电脑打开软件进行截图的,保证能够打开,下载原件超高清,下载后解压即可;
3、本站所有资源如无特殊说明,都需要本地电脑安装Office2007。图纸软件为AutoCAD,PROE,UG,SolidWorks,CATIA等;
4、本站所有图文资料仅供用户学习参考,不作为任何商用或其他用途;
5、本站不保证下载资源的准确性、安全性和完整性, 不包修改,不支持退换,同时也不承担用户因使用这些下载资源对自己和他人造成任何形式的伤害或损失;
6、 下载文件中如有侵权或不适当内容,请与我们联系,我们立即纠正。