

作品包括:
说明书一份,共18页,约8700字
CAD版本图纸,共7张
摘 要:此说明书以设垫片零件模具为主线,主要阐述了垫片零件的模具设计。制件为垫片,主要设计该件的落料模。材料为
10钢t=2,其材料的力学性能良好,经计算,此制件适合用落料工艺生产。设计这套模具首先分析材料是不是适合冲裁,选用冲
裁工艺是否经济,是不是需要后续工序,如校平、整形等,然后计算冲压力选定压力机,最后确定模具的结构和工作零件的结
构,并计算其工作零件的尺寸,其他的一些零件则在设计的时候尽量选用标准件,节约模具的制造成本,这些前提条件做好后,
用绘图软件绘制模具总装图和零件图,编写零件的加工工艺规程。
关键词:垫片;钣金;成形工艺;模具;设计
目录
摘要 ………………………………………………………………………………………… 3
关键词………………………………………………………………………………3
1前言……………………………………………………………………………………3
2工艺分析………………………………………………………………………4
3 冲压工艺方案确定……………………………………………………………………4
3.1 工艺方案的分析…………………………………………………………4
4 工艺尺寸计算…………………………………………………………………5
4.1排样设计………………………………………………………………………5
4.2材料利用率计算…………………………………………………………5
4.3 冲裁压力与压力中心………………………………………………………6
4.4 冲裁压力中心的确定………………………………………………………6
4.5 刃口尺寸计算…………………………………………………………………7
4.6 凸模刃口尺寸计算…………………………………………………………………8
4.7 卸料弹簧的计算………………………………………………………………8
5模具总体结构设计………………………………………………………………………9
5.1模具类型的选择………………………………………………………………………9
5.2导料及定距零件的设计………………………………………………………9
5.3 卸料装置的选择………………………………………………………………………9
6工作零部件的结构设计…………………………………………………………………10
6.1凹模设计………………………………………………………………………10
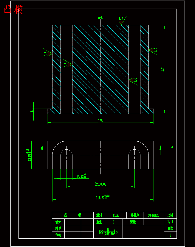
6.2凸模设计………………………………………………………………………11
6.3模架及其他零部件的设计……………………………………………………………11
7.模具总装图………………………………………………………………………………12
8冲压设备的选取…………………………………………………………………12
9 装配过程…………………………………………………………………………12
9.1上模座………………………………………………………………………12
9.2下模座………………………………………………………………………13
10设计总结…………………………………………………………………………13
参考资料………………………………………………………………………………14
致 谢………………………………………………………
温馨提示:
1、题目前面的备注【字母数字编号】为本站整理分类的编号,与课题内容无关,请选题时忽视;
2、若题目上备注三维,则表示文件里包含三维源文件,由于三维组成零件数量较多,为保证预览截图的简洁性,本站将三维文件夹进行了打包。三维及CAD预览截图,均为本站电脑打开软件进行截图的,保证能够打开,下载原件超高清,下载后解压即可;
3、本站所有资源如无特殊说明,都需要本地电脑安装Office2007。图纸软件为AutoCAD,PROE,UG,SolidWorks,CATIA等;
4、本站所有图文资料仅供用户学习参考,不作为任何商用或其他用途;
5、本站不保证下载资源的准确性、安全性和完整性, 不包修改,不支持退换,同时也不承担用户因使用这些下载资源对自己和他人造成任何形式的伤害或损失;
6、 下载文件中如有侵权或不适当内容,请与我们联系,我们立即纠正。