欢迎来到龙图网在线图文分享平台-CAD图纸,设计说明书,工业设计3D模型,三维软件下载!   客服QQ:2363701252
热搜:

工艺夹具 模具设计 数控编程 土木工程 3D模型

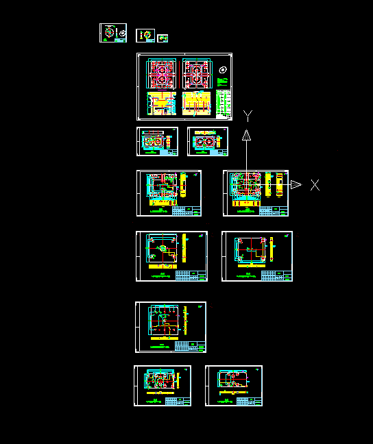
K497-圆形饭盒上盖注塑模具设计[含UG三维图] 下载积分:150 资料编号: K497

1.打开支付宝或者微信扫描二维码。
2.填写金额:150 
3.添加备注,填写资料编号:
资料编号: K497
4.支付成功后,请发资料编号到邮箱:jxsj168@qq.com
会有专人在15分钟内把资料发到您邮箱
备注:如果付款忘记填写资料编号,则发邮件时附带您的交易明细截图即可。
请耐心等待,如超过30分钟还没收到,请联系客服QQ:2363701252
点击分享:

作品描述

作品包括:

说明书一份,共34页,约15000字

CAD版本图纸,共13张

UG三维图一份


目   录


前 言 ……………………………………………………………………I


中文摘要 ………………………………………………………………Ⅱ


英文摘要 ………………………………………………………………III

第一章  对塑料成型模具的认识 …………………………………………1

1.1模具在加工工业中的地位 ……………………………………………1 

1.2 模具的发展趋势 …………………………………………………1

1.3 设计在学习模具制造中的作用 ……………………………………2

第二章  原始资料分析 …………………………………………………3

 2.1 塑件的工艺分析  ………………………………………………3

  2.2 原料(ABS)的成型特性与工艺参数 ………………………3

2.3  塑件的结构工艺性  ……………………………………………4

2.4  注射机的选择……………………………………………………5

第三章  分型面及浇注系统的设计 ………………………………………7

3.1  分型面的选择 …………………………………………………7

  3.2  浇注系统的设计 ………………………………………………8

   第四章 模具设计方案论证 ……………………………………………14

4.1   型腔的布置  …………………………………………………14.

4.2   成型零件的结构确定 …………………………………………14

4.3   导向定位机构设计……………………………………………14

4.4   推出机构的设计………………………………………………15

4.5   冷却系统设计…………………………………………………15

4.6   模具加热系统的设计 …………………………………………16

4.7   温度调节系统的设 ……………………………………………16

第五章 主要零部件的设计计算  ………………………………………18

5.1   成型零件的成型尺寸 ……………………………………………18

5.2   模具型腔壁厚的确定 ……………………………………………19

5.3   推出机构的设计…………………………………………………19

5.4   标准模架的确定………………………………………………19

第六章 成型设备的校核计算  …………………………………………21

6.1  锁模力的校核 …………………………………………………21

6.2  安装尺寸的校核 ………………………………………………21

6.3  推出机构的校核 ………………………………………………21

6.4  开模行程的校核 ………………………………………………21

第七章  模 具 的 装 配………………………………………………22

7.1  模具的装配顺序 ………………………………………………22

7.2  模具的维护 ……………………………………………………23

设计总结 ……………………………………………………………24

附录:成型零件图  ……………………………………………………25

型芯三维视图……………………………………………………30

      装配图 …………………………………………………………31

致谢  …………………………………………………………………34

参考文献   ……………………………………………………………35

温馨提示:

1、题目前面的备注【字母数字编号】为本站整理分类的编号,与课题内容无关,请选题时忽视;

2、若题目上备注三维,则表示文件里包含三维源文件,由于三维组成零件数量较多,为保证预览截图的简洁性,本站将三维文件夹进行了打包。三维及CAD预览截图,均为本站电脑打开软件进行截图的,保证能够打开,下载原件超高清,下载后解压即可;

3、本站所有资源如无特殊说明,都需要本地电脑安装Office2007。图纸软件为AutoCAD,PROE,UG,SolidWorks,CATIA等;

4、本站所有图文资料仅供用户学习参考,不作为任何商用或其他用途;
5、本站不保证下载资源的准确性、安全性和完整性, 不包修改,不支持退换,同时也不承担用户因使用这些下载资源对自己和他人造成任何形式的伤害或损失;

6、 下载文件中如有侵权或不适当内容,请与我们联系,我们立即纠正。


线