欢迎来到龙图网在线图文分享平台-CAD图纸,设计说明书,工业设计3D模型,三维软件下载!   客服QQ:2363701252
热搜:

工艺夹具 模具设计 数控编程 土木工程 3D模型

K547-角码冲压模具设计 下载积分:150 资料编号: K547

1.打开支付宝或者微信扫描二维码。
2.填写金额:150 
3.添加备注,填写资料编号:
资料编号: K547
4.支付成功后,请发资料编号到邮箱:jxsj168@qq.com
会有专人在15分钟内把资料发到您邮箱
备注:如果付款忘记填写资料编号,则发邮件时附带您的交易明细截图即可。
请耐心等待,如超过30分钟还没收到,请联系客服QQ:2363701252
点击分享:

作品描述

作品包括:

说明书一份,共40页,约10000字

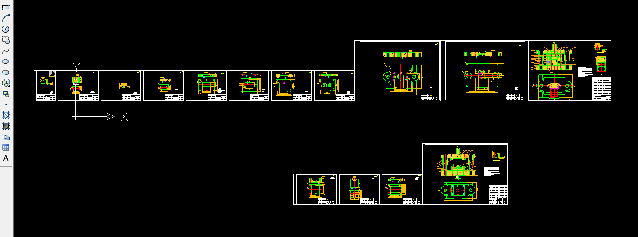
CAD版本图纸,共15张


角码冲压模具设计

            

摘  要:随着科学技术的进步与工业生产的发展,冲压加工技术的应用愈来愈广泛通过模具使材料成形已经成为现代工业生产的重要手段。本设计以角码零件为课题,根据该零件形状复杂、生产批量大的特点选用了冲压加工。

本设计首先对角码零件实物进行测绘,再结合零件的产量和模具设计的复杂程度,对所设计的零件进行了深入的工艺分析,确定采用两道工序独立成形,分别为落料冲孔、L形弯曲。同时利用UG对角码零件进行了三维建模,通过三维数字模型,可以直观地反映零件各部分的特点。随后进行了工艺设计计算,完成了各工序模具的设计,合理地选择了冲压设备。利用AUto CAD软件绘制出模具的装配图以及零件图,并对产品、模具结构、加工技术及成本进行设计和优化,提高了经济效益和降低制造成本。

             本设计最主要的特点是第一套模具冲孔凸模较多。设计时把它设计成直通式结构,方便加工,并采用抬肩固定方式固定。角码零件底座上有四个 5mm的孔,利用它进行定位,定位准确、可靠。

关键词: 角码;UG建模;冲裁复合模;弯曲


目  录

中文摘要 1

英文摘要 2

1  引  言 3

1.1 概述 3

1.2 课题的主要特点及意义 3

2  零件工艺分析 4

2.1 工艺分析 4

2.2实验方案的确定 5

2.3 零件工序设计 6

2.3.1 排样图设计 6

2.3.2 工序安排 7

2.4 总体结构确定 8

3  模具零件计算 11

3.1 凹凸模刃口计算 11

3.1.1 刃口计算 11

3.2凹模设计 14

3.2.1 凹、凸模固定形式 14

3.2.2 凹模刃口形式 14

3.2.3 凹模外形和尺寸的确定 14

3.3 凸模和凸凹模设计 16

3.4 弯曲模工作部分尺寸计算 18

3.4.1 模具闭合高度 18

3.4.2 凹凸模间隙 19

4  压力机选择 23

4.1 冲压力计算 23

4.1.1 冲裁力、卸料力和推件力计算 23

4.1.2 落料冲孔模压力机选择 23

4.2 弯曲力计算 24

4.2.1 弯曲力压力机选择 24

4.3 落料冲孔复合模的压力中心计算 25

4.4 落料冲孔复合模闭合高度 25

5  其它模板设计 26

5.1 板料周界 26

5.1.1凸模固定板和垫板 26

5.1.2卸料与推件零件的设计 27

5.2 螺钉孔、圆销孔离端面的距离 29

5.3 模柄的选用 30

6  其它零件选用 31

6.1 弹簧的选择 31

6.2 导柱、导套选择 32

6.3 卸料螺钉 32

6.4 圆柱销 33

6.5 螺钉 33

7  部分零件尺寸和表面质量要求 35

小  结 36

参 考 文 献 37

谢  辞 38

温馨提示:

1、题目前面的备注【字母数字编号】为本站整理分类的编号,与课题内容无关,请选题时忽视;

2、若题目上备注三维,则表示文件里包含三维源文件,由于三维组成零件数量较多,为保证预览截图的简洁性,本站将三维文件夹进行了打包。三维及CAD预览截图,均为本站电脑打开软件进行截图的,保证能够打开,下载原件超高清,下载后解压即可;

3、本站所有资源如无特殊说明,都需要本地电脑安装Office2007。图纸软件为AutoCAD,PROE,UG,SolidWorks,CATIA等;

4、本站所有图文资料仅供用户学习参考,不作为任何商用或其他用途;
5、本站不保证下载资源的准确性、安全性和完整性, 不包修改,不支持退换,同时也不承担用户因使用这些下载资源对自己和他人造成任何形式的伤害或损失;

6、 下载文件中如有侵权或不适当内容,请与我们联系,我们立即纠正。


线