欢迎来到龙图网在线图文分享平台-CAD图纸,设计说明书,工业设计3D模型,三维软件下载!   客服QQ:2363701252
热搜:

工艺夹具 模具设计 数控编程 土木工程 3D模型

K665-湖南省常德市某银行综合楼设计-5层3800平米含施工组织 下载积分:200 资料编号: K665

1.打开支付宝或者微信扫描二维码。
2.填写金额:200 
3.添加备注,填写资料编号:
资料编号: K665
4.支付成功后,请发资料编号到邮箱:jxsj168@qq.com
会有专人在15分钟内把资料发到您邮箱
备注:如果付款忘记填写资料编号,则发邮件时附带您的交易明细截图即可。
请耐心等待,如超过30分钟还没收到,请联系客服QQ:2363701252
点击分享:

作品描述

作品包括:

Word版说明书1份,共121页,约30000字

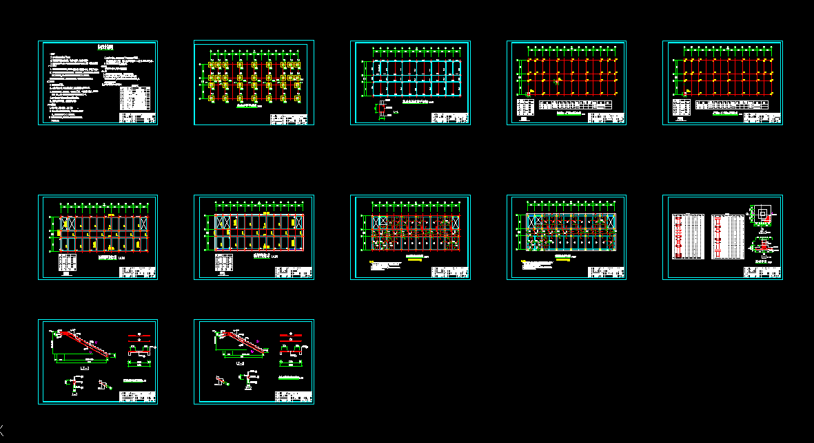
CAD版本图纸,共26张


摘  要

本工程为湖南省常德市金泰银行综合楼设计,建筑总长43.2米,总宽17.1米(6900.3300.6900)米,建筑主体高度19.5米,建筑物占地面积753.25平方米,总建筑面积约3766.25平方米。贯彻“实用、安全、经济、美观”的设计原则。按照建筑设计规范,认真考虑影响设计的各项因素。根据结构与建筑的总体与细部的关系。

本框架为7度抗震设计,先用D值法计算风荷载、水平地震荷载作用下的结构内力,接着用弯矩二次分配法计算恒荷载及活荷载作用下框架的结构内力,然后进行内力组合,找出最不利的一组内力组合,然后进行计算配筋并绘图。此外还进行了室内楼梯的设计,完成了平台板,梯段斜梁,平台梁等构件的内力和配筋计算及施工图绘制。计算书用Word编辑,部分插图用天正建筑软件绘制,内力组合用Excel辅助计算。

施工组织设计就是针对施工安装过程的复杂性,用系统的思想并遵循技术经济规律,对拟建工程的各阶段、各环节以及所需的各种资源进行统筹安排的计划管理行为,本设计的施工组织设计重点在进度控制、质量控制和安全控制。


关键词:框架结构;结构布置;建筑设计;结构计算;内力计算;配筋计算。

目   录



前   言 1

摘   要 6

ABSTRACT 7

第一章 设计说明 8

  1.1 总平面设计 8

  1.2 平面设计 8

  1.3 立面设计 8

  1.4 剖面设计 8

  1.5 功能布置 10

  1.6 建筑设计体会 10

第二章 结构设计说明 11

  2.1 结构设计资料 11

  2.2 工程地质条件 11

  2.3 结构选型 11

 

  2.4 材料的选用 12

  2.5 结构布置 12

  2.6 框架结构计算 12

第三章 荷载计算 16

  3.1 恒载标准值计算 16

  3.2 活荷载标准值计算 18

  3.3 竖向荷载下框架受荷总图 18

  3.4 风荷载计算 23

  3.5 横向水平地震作用 26

第四章 内力计算 33

  4.1 计算方法 33

  4.2 荷载传递路线 33

  4.3 恒载作用下的内力计算 34

  4.4 活载作用下的内力计算 46

  4.5 风荷载作用下的内力计算 55

  4.6 横向水平地震荷载作用下的内力计算 62

第五章 内力组合 67

第六章 配筋设计 77

 

  6.1 框架柱截面设计 77

  6.2 框架梁截面设计 82

第七章  双向楼板计算 86

  7.1 荷载计算 86

  7.2 计算方法 86

第八章 楼梯计算 91

  8.1 建筑设计 91

  8.2 结构选型 91

  8.3 材料选型 91

  8.4 踏步板(TB--1)计算 91

  8.5 楼梯斜梁(TL--1)计算 93

  8.6 平台板计算 94

  8.7 平台梁计算 95

第九章 基础设计 98

  9.1 基础选型 98

  9.2 基底尺寸的确定 98

  9.3 基础高度的验算 98

  9.4 基底配筋计算 99

 

第十章 施工组织设计 101

  10.1工程概况 101

  10.2项目管理机构配备 102

  10.3施工准备 103 

  10.4现场施工管理 103

  10.5 施工总平面布置 104

  10.6 施工技术方案 105

  10.7 安全保证措施 105

  10.8 文明工地施工措施 106

  10.9 现场管理技术措施 107

主要参考文献 108

外文翻译 119

结论 120

致   谢 121


温馨提示:

1、题目前面的备注【字母数字编号】为本站整理分类的编号,与课题内容无关,请选题时忽视;

2、若题目上备注三维,则表示文件里包含三维源文件,由于三维组成零件数量较多,为保证预览截图的简洁性,本站将三维文件夹进行了打包。三维及CAD预览截图,均为本站电脑打开软件进行截图的,保证能够打开,下载原件超高清,下载后解压即可;

3、本站所有资源如无特殊说明,都需要本地电脑安装Office2007。图纸软件为AutoCAD,PROE,UG,SolidWorks,CATIA等;

4、本站所有图文资料仅供用户学习参考,不作为任何商用或其他用途;
5、本站不保证下载资源的准确性、安全性和完整性, 不包修改,不支持退换,同时也不承担用户因使用这些下载资源对自己和他人造成任何形式的伤害或损失;

6、 下载文件中如有侵权或不适当内容,请与我们联系,我们立即纠正。


线