

作品包括:
设计word版本说明书一份,共17页,约7600字
开题报告一份
外文翻译一份
CAD版本图纸,共4张
摘 要
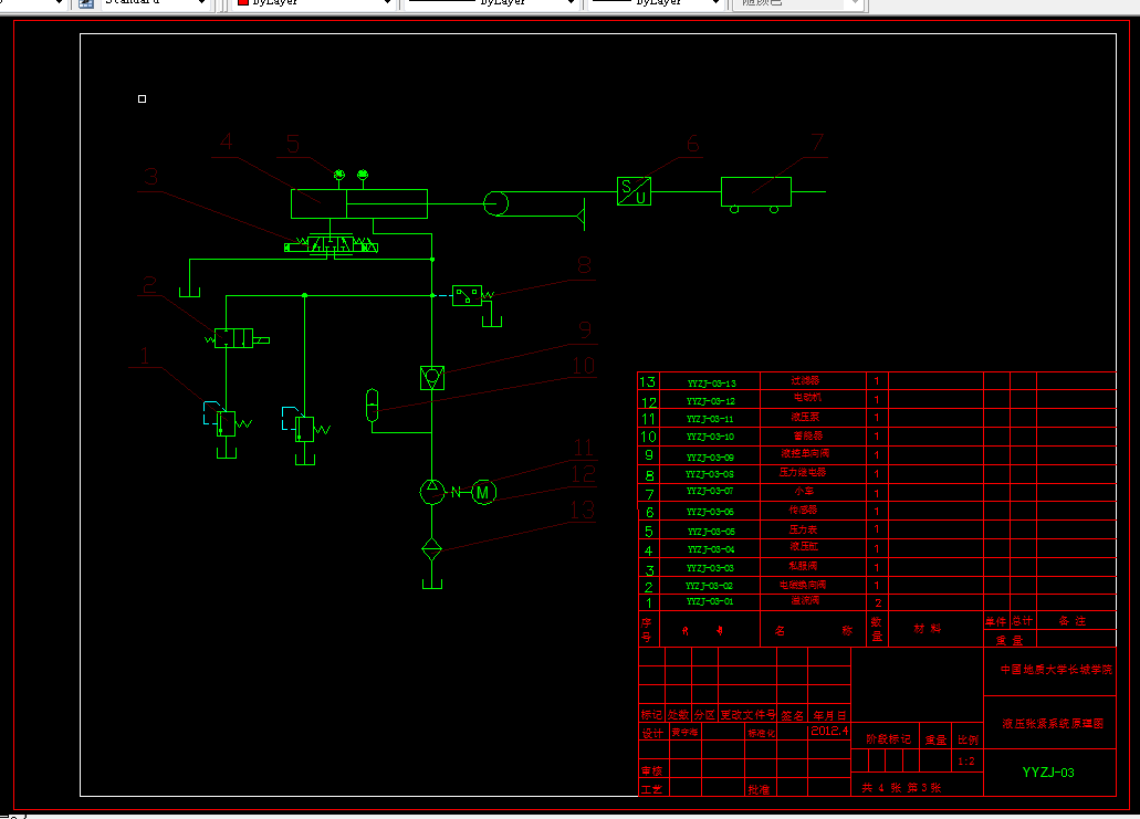
设计一种液压自动张紧装置对带式输送机的张紧过程很有必要,在分析其他几种张紧装置的优缺点的同时,这种张紧装置具有工作较平稳、响应快、具有断带保护和打滑保护、对空间要求低、性能可靠等优点。是一种较先进、较完善、适合于大型带式输送机的张紧装置。本文从三部分(液压回路设计、元件的确定、主要部件的设计和计算)对此种液压自动张紧装置进行了分析,同时利用AutoCAD绘图软件绘制了结构布置图、零件图及装配图等。
关键词:带式输送机; 自动张紧装置; 液压系统; 张紧液压缸; 液压泵;
目 录
1 .绪论 2
1.1带式输送机概述 2
1.1.1带式输送机的工作原理 2
1.1.2带式输送机的构成及特点 2
1.2带式输送机张紧装置简述 3
1.2.1带式输送机张紧装置的作用和类型 3
1.2.2现有带式输送机张紧装置的原理及特点 3
1.3国内外研究现状 5
2. 皮带运输机液压自动张紧装置的总体 6
2.1皮带运输机张紧装置的总体结构的确定 6
2.1.1 总体结构各部件的确定 6
2.1.2 连接各部件,绘制系统结构简图 6
3 .张紧装置的液压系统设计 7
3.1设计任务 7
3.2 设计方案的确定 8
3.2.1 液压自动张紧装置的特点 8
3.2.2 液压张紧装置工作原理 8
3.2.3 总体方案设计 8
4. 各元件的确定 8
4.1 油缸的选择和计算 8
4.2液压泵的选择及计算 10
4.3 电动机的确定 10
4.4各种阀类的选择 10
4.4.1电磁换向阀的选择 10
4.4.2 溢流阀的选择 11
4.4.3压力继电器的选择 11
4.4.4滤油器的选择 11
4.4.5蓄能器的选择 12
4.4.6伺服阀的选择 12
4.4.7液控单向阀的选择 12
4.5其它元件的选择 12
4.5.1滑轮的选择 12
4.5.2钢丝绳的选取 12
4.5.3液压泵站的选择与安装 13
5.主要部件的设计计算及强度校核. . . . . . . . . . . . . . . . . . . . . . . . . . . . . . . . . . . . . . . . . . . . . . . . . . 13
5.1 油缸支座的设计及强度校核 13
5.2液压活塞杆上的耳环的设计其强度设计 14
结 论 15
参 考 文 献 16
致 谢 17
温馨提示:
1、题目前面的备注【字母数字编号】为本站整理分类的编号,与课题内容无关,请选题时忽视;
2、若题目上备注三维,则表示文件里包含三维源文件,由于三维组成零件数量较多,为保证预览截图的简洁性,本站将三维文件夹进行了打包。三维及CAD预览截图,均为本站电脑打开软件进行截图的,保证能够打开,下载原件超高清,下载后解压即可;
3、本站所有资源如无特殊说明,都需要本地电脑安装Office2007。图纸软件为AutoCAD,PROE,UG,SolidWorks,CATIA等;
4、本站所有图文资料仅供用户学习参考,不作为任何商用或其他用途;
5、本站不保证下载资源的准确性、安全性和完整性, 不包修改,不支持退换,同时也不承担用户因使用这些下载资源对自己和他人造成任何形式的伤害或损失;
6、 下载文件中如有侵权或不适当内容,请与我们联系,我们立即纠正。