

作品包括:
Word版说明书1份,共34页,约11000字
UG三维图一份
![1733323318293990.webp _{]F7}CLEIU%VVTP8[XYE_M.webp](/static/upload/image/20241204/1733323318293990.webp)
摘 要
数控技术是用数字化信息对机械设备(机床)的运动及其加工过程进行控制的一种方法,简称CNC。
此次的设计任务是玩具盒后壳零件数控加工,利用绘图软件CAD/CAM将玩具盒后壳的二维图画出来,然后用UG NX7.5画出三维实体。根据尺寸精度、表面粗糙度等要求合理选择刀具、切削参数等,再根据产品的结构和要求设计几个方案.方案的关键在于以生成最佳的刀具路径、最短的时间内加工出零件,且加工工序最优,加工出来的零件的工艺符合设计图纸的要求.拟定加工工艺、输入加工参数,利用UG软件中的加工模块对其进行数控加工编程。根据这些要求选择最佳的方案,编写加工程序并输入相应的加工参数利用UG自动生成程式的功能,生成NC数控程式,最后将程式输入数控机床让其根据程式自动加工工件。
关键词:UG、CAD/CAM 三维造型 加工工艺 数控编程 自动加工
目录
摘 要 I
目录 III
第一章 绪论 1
第二章 玩具盒后壳结构分析 2
2.1零件图分析 2
2.2确定毛坯 3
第三章 零件的绘制与加工工艺 4
3.1零件的绘图 4
3.1.1二维图的绘制 4
3.1.2三维图的绘制 5
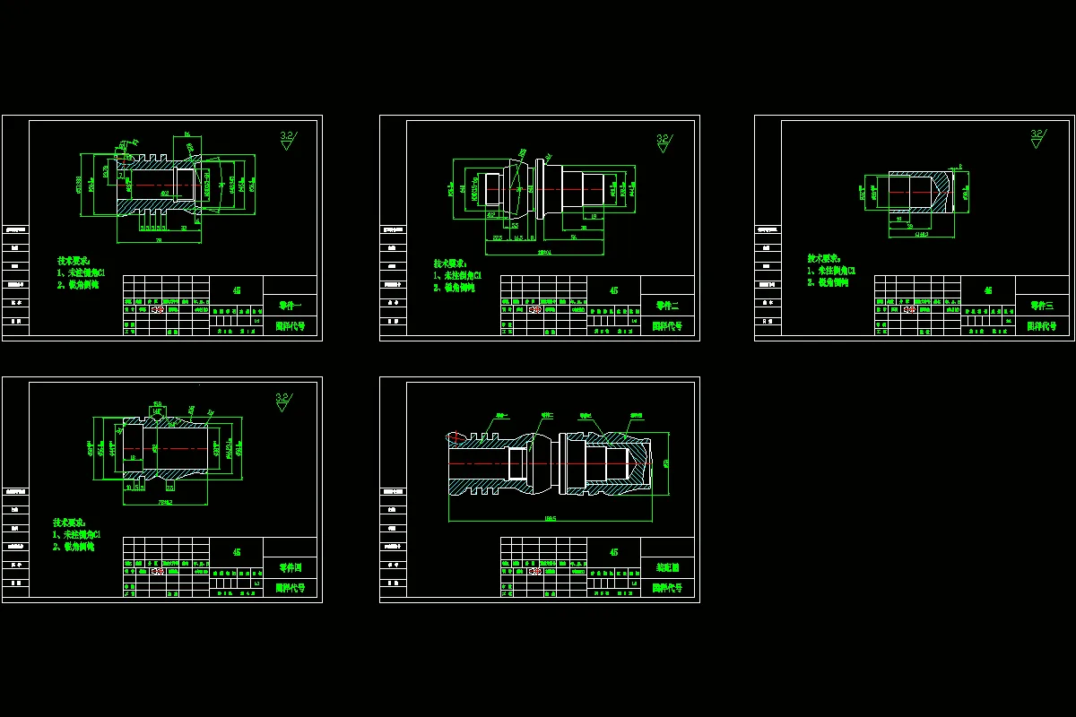
3.2零件的工艺分析及技术要求 7
3.2.1工艺分析 7
3.2.2技术要求 8
3.3工件的装夹 8
3.4定位基准的选择 9
3.5制订工艺路线 9
3.6选择刀具与切削用量 10
3.6.1选择刀具 10
3.6.2选择切削用量 12
3.7数控加工工艺卡片拟订 15
第四章 零件的程序编制及仿真 16
4.1加工准备 16
4.1.1.进入加工模块 16
4.2生成玩具盒后壳零件加工刀具路径 17
4.2.1创建工序 17
4.2.2生成零件粗加工刀具路径 19
4.2.3生成零件精加工刀具路径 20
4.3 NC程序: 24
结束语 25
参考文献 26
致 谢 27
附表一 28
温馨提示:
1、题目前面的备注【字母数字编号】为本站整理分类的编号,与课题内容无关,请选题时忽视;
2、若题目上备注三维,则表示文件里包含三维源文件,由于三维组成零件数量较多,为保证预览截图的简洁性,本站将三维文件夹进行了打包。三维及CAD预览截图,均为本站电脑打开软件进行截图的,保证能够打开,下载原件超高清,下载后解压即可;
3、本站所有资源如无特殊说明,都需要本地电脑安装Office2007。图纸软件为AutoCAD,PROE,UG,SolidWorks,CATIA等;
4、本站所有图文资料仅供用户学习参考,不作为任何商用或其他用途;
5、本站不保证下载资源的准确性、安全性和完整性, 不包修改,不支持退换,同时也不承担用户因使用这些下载资源对自己和他人造成任何形式的伤害或损失;
6、 下载文件中如有侵权或不适当内容,请与我们联系,我们立即纠正。