

作品包括:
word说明书一份,共28页,约10000字
过程卡一份
CAD版本图纸,共4张
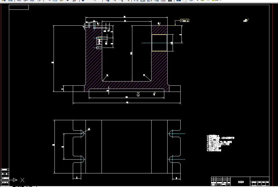
刀库支座数控加工工艺及夹具设计
摘 要
本次毕业设计的课题是刀库支座数控加工工艺及夹具设计。本论文先按照加工工艺及夹具设计的一般步骤,进行了以下部分的设计:
通过对零件的分析,讨论了零件的机械加工工艺过程、工艺规程设计和毛胚的种类。通过零件的分析后制定零件机械加工工艺路线,说明表面加工方法的选择、零件加工工艺原则和工艺编制。确定夹具总体方案,包括加工的方法、定位方案和定位误差的分析、夹紧方案、切削夹紧力的计算。
关键词:数控加工工艺,刀库支座,夹具设计
目录
1 前言 1
1.1课题背景及发展趋势 1
1.2 夹具的基本结构及设计内容 1
2 支座加工工艺规程设计 3
2.1零件的分析 3
2.1.1零件的作用 3
2.1.2零件的工艺分析 3
2.2支座加工的主要问题和工艺过程设计所应采取的相应措施 4
2.2.1确定毛坯的制造形式 4
2.2.2基面的选择 4
2.2.3确定工艺路线 4
2.2.4机械加工余量、工序尺寸及毛坯尺寸的确定 5
2.2.5确定切削用量 6
2.3小结 22
3 专用夹具设计 23
3.1粗、精铣支座底平面夹具夹具设计 28
3.1.1定位基准的选择 28
3.1.2定位元件的设计 28
3.1.3定位误差分析 29
3.1.4铣削力与夹紧力计算 29
3.1.5夹具体槽形与对刀装置设计 30
3.1.6夹紧装置及夹具体设计 32
3.1.7夹具设计及操作的简要说明 33
4 结束语 40
参考文献 41
温馨提示:
1、题目前面的备注【字母数字编号】为本站整理分类的编号,与课题内容无关,请选题时忽视;
2、若题目上备注三维,则表示文件里包含三维源文件,由于三维组成零件数量较多,为保证预览截图的简洁性,本站将三维文件夹进行了打包。三维及CAD预览截图,均为本站电脑打开软件进行截图的,保证能够打开,下载原件超高清,下载后解压即可;
3、本站所有资源如无特殊说明,都需要本地电脑安装Office2007。图纸软件为AutoCAD,PROE,UG,SolidWorks,CATIA等;
4、本站所有图文资料仅供用户学习参考,不作为任何商用或其他用途;
5、本站不保证下载资源的准确性、安全性和完整性, 不包修改,不支持退换,同时也不承担用户因使用这些下载资源对自己和他人造成任何形式的伤害或损失;
6、 下载文件中如有侵权或不适当内容,请与我们联系,我们立即纠正。