

作品包括:
说明书一份,共44页,约12000字
CAD版本图纸,共5张
SW三维图一份

摘 要
将所学的理论与实践相结合,锻炼自己分析问题、解决问题的能力。在这个过程中独立地分析和解决了零件制造的工艺问题,设计数控铣床主轴这样典型的工艺装备,提高夹具设计能力,为今后的工作进行一次适应性训练,从而打下了良好的基础。机床夹具主要是针对某个加工尺寸,而量身定做的一个装置,这样的装置能够保证加工该尺寸的位置精度、尺寸精度,并在此基础上使生产最大程度获利。该研究对机械工作的开展起着重要的指导作用,为其积累了理论经验,因此经常被用于大规模生产。
通过分析零件的尺寸确定基准面,加工工艺、工序逐步确定,还要确定零件毛坯的形式,以降低成本为目的。深入探究加工过程的各个环节,准确定位各项标准,以切削力的大小为基准,适当调整生产规模,结合实际需要量身定做专用夹具来解决加工问题。
关键词:计数控铣床主轴;夹具;加工工艺;工序
目 录
摘 要 III
ABSTRACT IV
1 引言 1
2 零件的分析及毛坯的确定 3
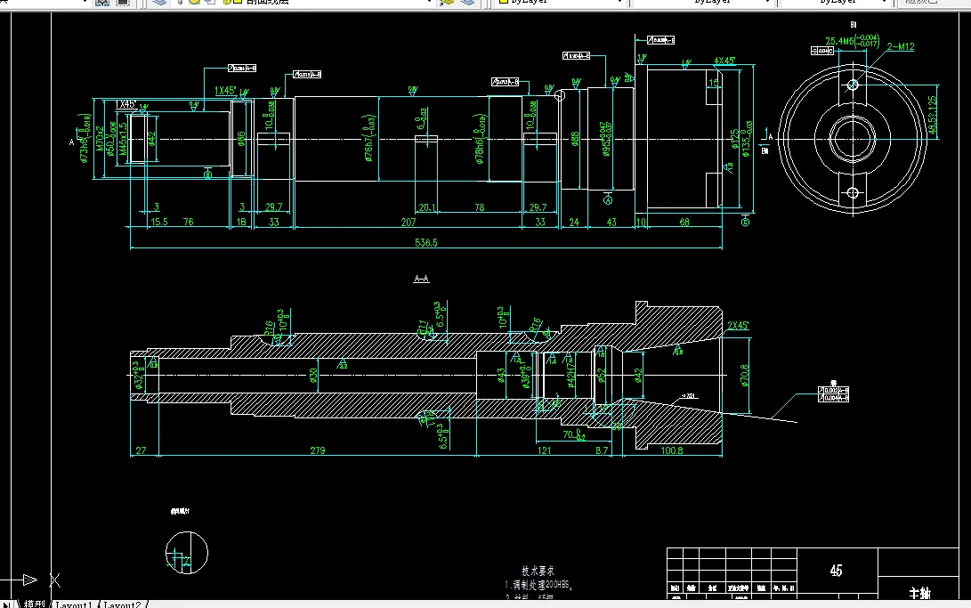
2.1 车床数控铣床主轴的作用和工艺分析 3
2.1.1 零件的作用 3
2.1.2 零件的材料及其力学性能 3
2.1.3 零件的结构工艺分析 3
2.2 零件毛坯的确定 4
3 数控铣床主轴的加工工艺设计 6
3.1 定位基准的选择 6
3.1.1 粗定位基准的确定 6
3.1.2 精基准的选择 6
3.2 加工方法的确定 6
3.3 制定工艺路线 7
3.3.1 工序的安排 7
3.3.2工序划分的确定 8
3.3.3热处理工序安排 9
3.3.4拟定加工工艺路线 9
3.3.5 主要工序分析 10
4 钻螺纹孔专用夹具的设计 12
4.1 定位方案 12
4.2 分度机构设计 12
4.3 夹具操作的简要说明 12
4.4 零件的设计 12
4.4.1销的选用 12
4.4.2钻套等的选用 13
5 铣键槽专用夹具的设计 15
5.1 定位夹紧方式 15
5.2切削力及夹紧力的计算 15
5.3 定位误差分析 16
6 数控程序的编制 19
6.1数控程序编制说明 19
6.2数控加工代码 19
6.2.1 车端面打中心孔 19
6.2.2粗车外轮廓Φ135、Φ125、Φ95、Φ88、Φ78、Φ76、Φ50、M70×2螺纹大径、M45×1.5螺纹大径、车端面 20
6.2.3车锥度孔、Φ52孔 29
6.2.4车Φ42孔 29
6.2.5车Φ39孔、Φ43孔 30
6.2.6车Φ30孔 31
6.2.7车Φ32孔 31
6.2.8车M45×1.5螺纹 32
6.2.9车M70×2螺纹 33
结 论 36
致 谢 37
参 考 文 献 38
温馨提示:
1、题目前面的备注【字母数字编号】为本站整理分类的编号,与课题内容无关,请选题时忽视;
2、若题目上备注三维,则表示文件里包含三维源文件,由于三维组成零件数量较多,为保证预览截图的简洁性,本站将三维文件夹进行了打包。三维及CAD预览截图,均为本站电脑打开软件进行截图的,保证能够打开,下载原件超高清,下载后解压即可;
3、本站所有资源如无特殊说明,都需要本地电脑安装Office2007。图纸软件为AutoCAD,PROE,UG,SolidWorks,CATIA等;
4、本站所有图文资料仅供用户学习参考,不作为任何商用或其他用途;
5、本站不保证下载资源的准确性、安全性和完整性, 不包修改,不支持退换,同时也不承担用户因使用这些下载资源对自己和他人造成任何形式的伤害或损失;
6、 下载文件中如有侵权或不适当内容,请与我们联系,我们立即纠正。