

作品包括:
说明书1份,共23页,约6800字左右
CAD版本本图纸,共3张
摘 要
减速器是机械工业中应用最多的既能够提供动力又能够减速,增加输出扭矩的装置,在各行各业的机械设备中都有用到,随着机械工业的越来越强大,各种类型的减速器将会陆续地出现在一些机械设备工厂,从而来满足不同工况的不同需求。本篇毕业设计主要是针对二级闭式齿轮减速器的介绍,对二级闭式齿轮减速器中的各个重要零件,例如传动轴,齿轮等等进行分析和设计,从而设计出参数合理,运行可靠平稳的二级闭式齿轮减速器。
关键词: 减速器、齿轮、传动轴
目 录
摘 要 I
ABSTRACT II
1、绪 论 1
1.1 本课题研究目的与意义 1
1.2 本课题国内外发展概况 1
2 、传动方案的拟定 3
3 、二级闭式齿轮减速器传动机构设计 6
3.1确定总传动比及分配各级传动比 6
3.2 传动装置的运动和动力设计 6
3.3 齿轮传动的设计 11
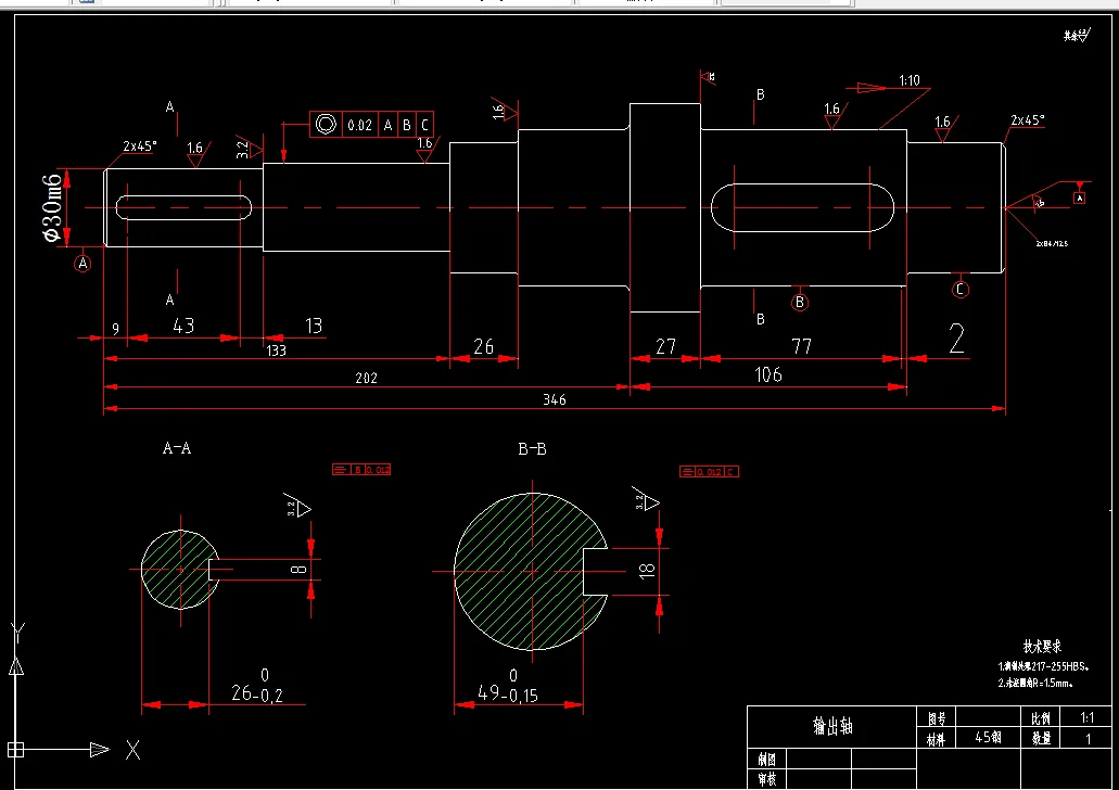
3.4 传动轴的设计 12
3.5 箱体的设计 16
3.6键连接的设计 16
3.7滚动轴承的设计 16
3.8润滑和密封的设计 16
3.9联轴器的设计 16
结 论 40
参 考 文 献 41
致 谢 42
温馨提示:
1、题目前面的备注【字母数字编号】为本站整理分类的编号,与课题内容无关,请选题时忽视;
2、若题目上备注三维,则表示文件里包含三维源文件,由于三维组成零件数量较多,为保证预览截图的简洁性,本站将三维文件夹进行了打包。三维及CAD预览截图,均为本站电脑打开软件进行截图的,保证能够打开,下载原件超高清,下载后解压即可;
3、本站所有资源如无特殊说明,都需要本地电脑安装Office2007。图纸软件为AutoCAD,PROE,UG,SolidWorks,CATIA等;
4、本站所有图文资料仅供用户学习参考,不作为任何商用或其他用途;
5、本站不保证下载资源的准确性、安全性和完整性, 不包修改,不支持退换,同时也不承担用户因使用这些下载资源对自己和他人造成任何形式的伤害或损失;
6、 下载文件中如有侵权或不适当内容,请与我们联系,我们立即纠正。