W869-202t正轨箱型梁桥式起重机起升机构和运行机构的设计
W868-5t桥式起重机的设计
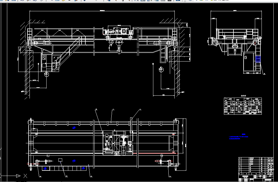
W867-163.2t中轨箱型双梁桥式起重机的设计
W866-正轨箱型梁桥式起重机大车运行与金属结构部分的设计
W865-糖果包装机的总体设计及横封切断装置的设计
W861-盘式刀库机械结构设计及PLC控制
W859-液压闸式剪板机的设计
W858-双离合器自动变速器设计之变速齿轮设计
W857-中型卡车驱动桥设计
W856-9t货车的驱动桥设计与计算
W855-电动汽车车身总布置设计
W854-机电液实验台自动化液压部分改造
W853-YST-20KW液压综合试验台的设计
W852-B1400带式输送机刮水器设计
W851-插板阀的结构设计
W850-掘进机可变角度试验台总体方案及液压系统设计
W849-汽车静侧翻稳定性台架机械部分设计
W848-输送带动态性能试验台设计
W847-普通旋切机摩擦辊与传动部件设计
W846-电动液压切管机设计