S525-Φ100无缝三辊斜轧机芯棒运行液压控制系统
S524-Z3040型摇臂钻床设计
S523-X63W升降台铣床设计
S522-X62W万能卧式升降台铣床主传动的设计
S521-X62W万能卧式升降台铣床设计
S519-R5.25m小方坯弧形连铸机结晶器振动装置的设计
S518-LED芯片检测机构的设计
S517-Csp液压活套伺服控制系统
S516-50X1560铸坯摆式剪切机设计
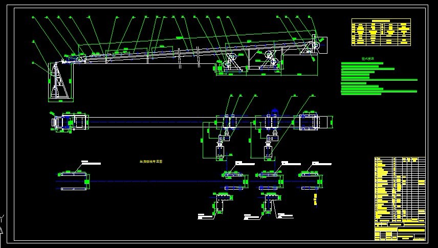
S515-1800米带式输送机的设计
S514-280×380方坯结晶器足辊总成的设计
S512-法兰钻孔专机(总体设计及主轴箱部件设计)
S511-茶园旋耕机设计
S510-SC7130AMT重度混合动力汽车参数匹配设计
S509-拉剪式纵剪机液压系统设计(系统部分)
S508-中间包小车设计
S507-综合液压测试装置设计
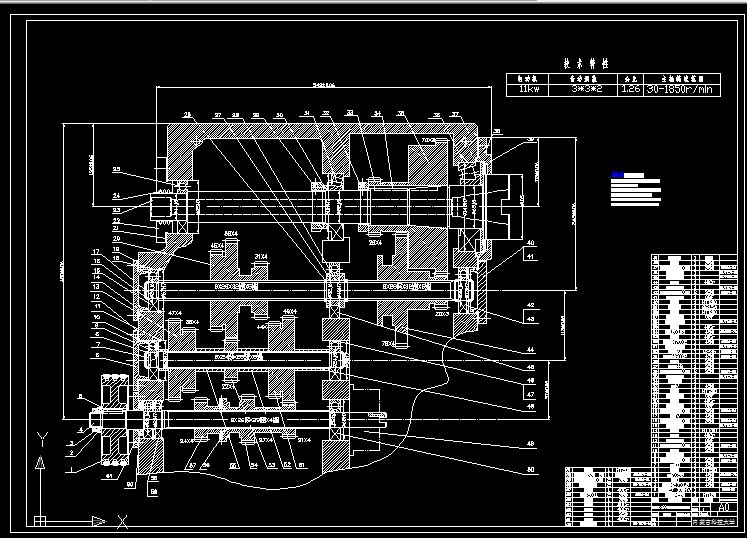
S506-S100掘进机截割部行星减速器设计
S504-ZZ12000-25-40支撑掩护式液压支架设计
S503-薄板冷轧酸洗机组的分切剪设计