C016-工程机械蓝牙无线远程故障诊断系统研究
C015-M1432A万能外圆磨床液压系统设计
C014-PC轧机换辊小车的设计-
C012-十字路口交通信号灯PLC控制系统
C011-精确高效谷物分离机设计
C010-柔性制造系统码垛机单元的设计与仿真
C008-T6112卧式镗床系统的设计
C007-气缸体专用平面磨床设计
C006-立体光固化造型机机电系统设计
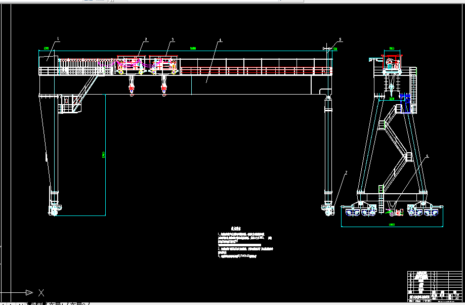
C005-龙门式起重机总体设计及金属结构设计
C004-原木检测机设计
C002-PLC四翼自动旋转门机电系统设计
C001-三轴雷达仿真转台机械结构设计
B1000-凸轮滚筒式残膜回收机的设计[含SW三维图]
B999-自动卸膜式残膜回收机设计[含三维图]
B998-齿钉式棉田耕层残膜回收机的设计[含SW三维图]
B997-ZL50装载机铲斗设计[含Catia三维图]
B996-分区式残膜回收机的设计[含三维图]
B995-长城哈弗H2 2016款红标发动机排气系统的设计与分析
B994-花生收获机设计与仿真[含三维图]