C037-小型牧草收割机结构设计
C036-双驱动同步振动筛的结构设计
C035-基于单片机的红外遥控密码锁的设计
C034-低速载货汽车驱动桥的设计
C033-三辊对称式卷圆机结构设计
C032-林区割灌机的结构设计
C031-基于PROE的进排气阀门的运动仿真分析
C030-普通钻床改为多轴钻床的设计
C029-高楼清洗机机电系统设计
C028-高效精密大豆播种机设计
C027-半自动横截双圆锯片机的设计
C026-焊接机械手液压系统设计
C025-轴向柱塞泵设计
C024-多功能自动跑步机设计--机械部分设计
C023-TGSS-50型水平刮板输送机---机头段设计
C022-太阳能蓄电池充放电控制器的设计
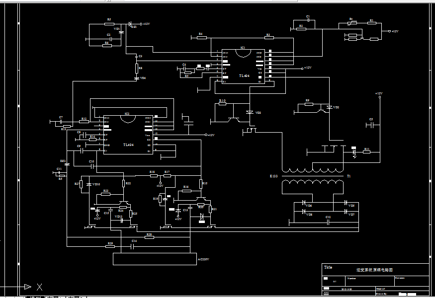
C021-太阳能水泵DC-AC逆变系统设计
C019-前移式手动液压装卸叉车设计
C018-滚筒式离心铸造机总体设计
C017-剪板机结构设计