

作品包括:
说明书1份,共42页,约24000字左右
CAD图纸,5张
摘 要
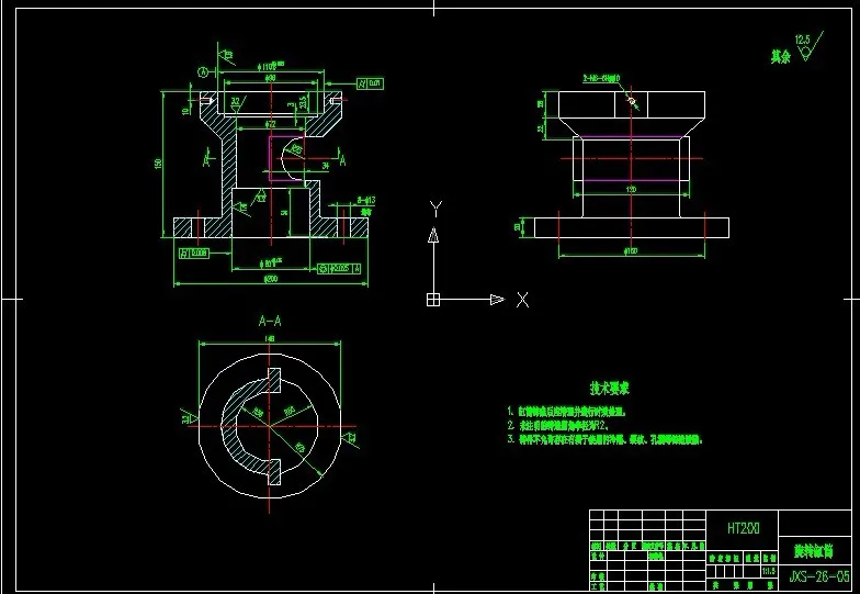
针对数控车床设计的一种套类零件自动上下料机构,实现了坯料的抓取、自动定位、夹紧以及工件的回放。该机构主要由自动安装夹具,坯料、工件拾取机械手,动力及控制系统组成。零件的自动定位、夹紧由弹簧涨胎心轴实现,涨胎心轴是以工件的内孔表面定位,由气缸驱动弹性筒夹向外扩涨,实现工件的定位和夹紧的。坯料、工件的拾取、回放是由单臂形式的机械手通过伸缩、旋转以及俯仰等运动实现的,这些运动均由气缸驱动获得。本设计中,为实现工件的自动上下料,单臂机械手的运动与涨胎心轴的张合需进行紧密配合。考虑到所夹持工件的实际尺寸、质量等因素,本机构采用气动、电气控制实现了坯料和工件的拾取、安装、回放过程的自动完成。
关键词: 自动上下料;气动机械手;气动夹具;套类零件
目 录
摘 要 I
Abstract Ⅱ
第1章 概述 1
1.1 自动上下料机构设计的背景与目的 1
1.2 自动上下料机构设计的意义 3
第2章 总体方案设计 4
2.1 方案设计概述 4
2.2 驱动方式的确定 5
2.3 CK6140型数控车床的主要参数 8
2.4 总体方案设计 9
2.5 本章小结 11
第3章 夹具设计 12
3.1 机床夹具设计概述 12
3.2 结构设计 13
3.3 气动夹紧装置设计计算 17
3.4 本章小结 19
第4章 机械手设计 20
4.1 运动分析 20
4.2 结构设计 21
4.3 本章小结 31
第5章 气动控制系统设计 33
5.1 气压传动系统原理图的拟定 33
5.2 电气控制设计 34
5.3 本章小结 36
结 论 37
致 谢 38
参考文献 38
温馨提示:
1、题目前面的备注【字母数字编号】为本站整理分类的编号,与课题内容无关,请选题时忽视;
2、若题目上备注三维,则表示文件里包含三维源文件,由于三维组成零件数量较多,为保证预览截图的简洁性,本站将三维文件夹进行了打包。三维及CAD预览截图,均为本站电脑打开软件进行截图的,保证能够打开,下载原件超高清,下载后解压即可;
3、本站所有资源如无特殊说明,都需要本地电脑安装Office2007。图纸软件为AutoCAD,PROE,UG,SolidWorks,CATIA等;
4、本站所有图文资料仅供用户学习参考,不作为任何商用或其他用途;
5、本站不保证下载资源的准确性、安全性和完整性, 不包修改,不支持退换,同时也不承担用户因使用这些下载资源对自己和他人造成任何形式的伤害或损失;
6、 下载文件中如有侵权或不适当内容,请与我们联系,我们立即纠正。