

作品包括:
说明书1份,共50页,约15000字左右
CAD版本图纸,共8张
1800移动式型钢冷锯机设计
摘 要
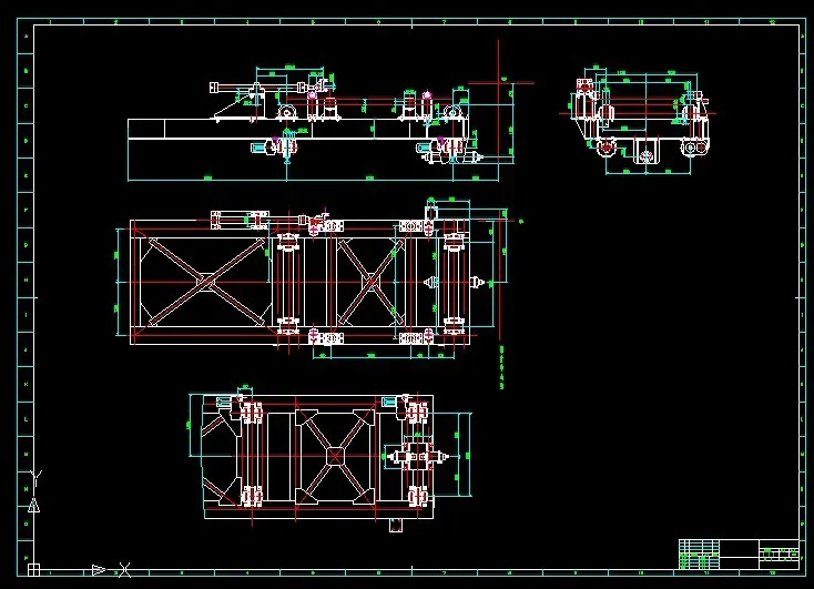
锯机作为一种切割类型的机械设备,它在木工机械、建筑机械、冶金机械等方面得到了广泛的应用。锯机是切割系统中不可缺少的重要组成部分。由于冷锯机在一定程度上提高了锯切断面质量和定尺精度,所以现在的大型和中型型钢轧钢厂多采用冷锯机进行轧件的切头、切尾和定尺锯切。移动式冷锯机的主要结构有三部分:锯片传动机构、锯片送进机构和调整定尺的锯机横移机构。此设备的锯片传动机构是电动机经三角皮带方式传动,这种传动方式可使电动机远离锯切点,减省专门的防护措施。锯片送进机构采用液压传动方式,液压传动可以保证锯片在锯切时能够稳定送进,减少振动。锯机横移机构由电动机直接传动,当设备根据定尺要求移动到规定位置时,用夹轨器将设备固定,然后完成锯切。本文论述了冷锯机设备在国内、外的发展状况,提出了本课题的研究背景以及研究本课题的意义;设计主要是围绕移动冷锯机主轴传动机构、进锯机构、走行机构的分析和设计进行的,通过对各个机构的功率计算,选择合适的电机并进行校核,同时对各个重要零件进行校核,以满足锯切要求。
关键字:冷锯机;传动;锯切
目录
摘要 I
Abstract II
第1章绪论 1
1.1 毕业设计的选题背景及目的 1
1.1.1 毕业设计的选题背景 1
1.1.2 毕业设计的目的 1
1.2 冷锯机的发展概述 1
1.3 冷锯机的用途及类型 2
1.4 冷锯机的结构 2
1.5 存在的问题 3
1.6 主要设计研究的内容 3
第2章冷锯机总体方案设计 4
2.1 冷锯机的结构型式及工作过程 4
2.2 冷锯机的基本参数 5
2.3 锯齿形状和锯片材料 7
2.4 锯片结构参数的设计 8
2.5 高速冷锯机锯切功率计算 9
第3章带传动的设计及锯切力计算 14
3.1 V带的设计 14
3.2 锯切力的计算 16
第4章轴的设计和强度校核 20
4.1主传动轴的设计和强度校核 20
4.2 大带轮轴的强度校核 24
第5章送锯和走行机构的设计计算 29
5.1 进锯机构的设计计算 29
5.2 走行机构的设计计算 30
第6章联轴器、键、轴承的选择与校核 32
6.1 联轴器的选择和计算 32
6.2 键的选择和键连接强度计算 32
6.3 轴承的选择与校核 34
6.3.1 主传动轴轴承的选择与校核 34
6.3.2 大带轮轴轴轴承的选择与校核 36
第7章设备的润滑、密封及维护 38
7.1设备的润滑 38
7.1.1 润滑的作用 38
7.1.2 润滑的种类 38
7.1.3 润滑方式的选择 39
7.2 设备的密封 39
7.3 设备维护 39
第8章设备的环保和经济可行性分析 41
8.1 设备的环保 41
8.1.1冷锯机噪声主要来源 41
8.1.2 噪声控制方案与措施 41
8.2 经济可行性分析 43
总结 45
致谢 46
参考文献 47
温馨提示:
1、题目前面的备注【字母数字编号】为本站整理分类的编号,与课题内容无关,请选题时忽视;
2、若题目上备注三维,则表示文件里包含三维源文件,由于三维组成零件数量较多,为保证预览截图的简洁性,本站将三维文件夹进行了打包。三维及CAD预览截图,均为本站电脑打开软件进行截图的,保证能够打开,下载原件超高清,下载后解压即可;
3、本站所有资源如无特殊说明,都需要本地电脑安装Office2007。图纸软件为AutoCAD,PROE,UG,SolidWorks,CATIA等;
4、本站所有图文资料仅供用户学习参考,不作为任何商用或其他用途;
5、本站不保证下载资源的准确性、安全性和完整性, 不包修改,不支持退换,同时也不承担用户因使用这些下载资源对自己和他人造成任何形式的伤害或损失;
6、 下载文件中如有侵权或不适当内容,请与我们联系,我们立即纠正。