

作品包括:
word说明书一份,共65页,约17000字
CAD版本图纸,共6张
[摘要] 随着机械运输行业的快速发展,提升机对国民经济的发展起着重要的作用,提升机的应用很为广泛,在各行业都有所应用,主要应用在建筑,机械,矿山领域,还应用于粮油“食品”化工”水泥制造等行业,它是一种垂直或大倾角倾斜向上输送粉状 "粒状或小块状物料的连续输送机械,由牵引带围绕着头和底轮做循环运动,从而将其上部固定的畚斗内的物料由下提升至机头。本设计主要对TDG400斗式提升机的方案确定以及结构设计,包括减速器设计,料斗,胶带以及滚筒等结构设计和计算。其中减速器设计 主要是齿轮和轴的结构设计和强度校核。
[关键字]:提升机 减速器 设计
目录
前言 1
1斗提机的原理 2
1.1概述 2
1.2 斗式提升机的总体布局 2
1.3斗提机的构造 5
1.4斗提机的分类 8
2提升机运动参数计算 10
2.1斗提机相关参数 10
2.2物料的选择 10
2.3提升机轴距的确定 11
2.4电动机的确定 11
2.5输出轴的转速 13
2.6传动比的确定 13
3传动装置的运动和动力设计 15
3.1运动参数及动力参数的计算 15
3.1.1计算各轴的转数 16
3.1.2计算各轴的功率 16
3.1.3计算各轴的输入转矩 17
3.1.4计算各轴的输出功率 17
3.1.5计算各轴的输出转矩 18
4各传动零件的设计计算 19
4.1高速级斜齿圆柱齿轮传动 19
4.1.1确定公式中各式参数 20
4.1.2设计计算 21
4.1.3计算齿轮传动的几何尺寸 21
4.1.4确定公式中各参数值 23
4.2低速级直齿圆柱齿轮传动 24
4.2.1确定公式中各式参数 24
4.2.2设计计算 25
4.2.3计算齿轮传动的几何尺寸 26
4.2.4确定公式中各参数值 28
4.3皮带轮相关参数的确定 29
4.3.1.带轮直径的确定 29
4.3.2大带轮的计算直径 (取小带轮直径为120) 29
4.3.3计算V带速度 30
4.3.4中心距和带长的计算 30
4.3.5计算V带根数 31
4.3.6计算预紧力F0 32
4.4各轴的设计与计算 32
4.4.1高速轴(1轴)的设计 32
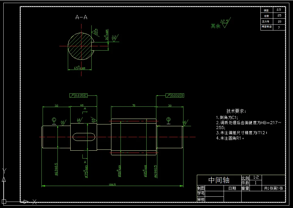
4.4.2中间轴(2轴)的设计 37
4.4.3低速轴(3轴)的设计 40
4.5滚动轴承的选择 43
4.5.1高速轴(1轴)上滚动轴承的选择 43
4.5.2中间轴(2轴)上滚动轴承的选择 44
4.5.3低速轴(3轴)上滚动轴承的选择 44
5运行阻力的计算 46
6料斗的确定及计算 48
致谢 50
参考文献 51
Hoist the basic design of several issues 5
温馨提示:
1、题目前面的备注【字母数字编号】为本站整理分类的编号,与课题内容无关,请选题时忽视;
2、若题目上备注三维,则表示文件里包含三维源文件,由于三维组成零件数量较多,为保证预览截图的简洁性,本站将三维文件夹进行了打包。三维及CAD预览截图,均为本站电脑打开软件进行截图的,保证能够打开,下载原件超高清,下载后解压即可;
3、本站所有资源如无特殊说明,都需要本地电脑安装Office2007。图纸软件为AutoCAD,PROE,UG,SolidWorks,CATIA等;
4、本站所有图文资料仅供用户学习参考,不作为任何商用或其他用途;
5、本站不保证下载资源的准确性、安全性和完整性, 不包修改,不支持退换,同时也不承担用户因使用这些下载资源对自己和他人造成任何形式的伤害或损失;
6、 下载文件中如有侵权或不适当内容,请与我们联系,我们立即纠正。