

作品包括:
word说明书一份,共41页,约13000字
任务书一份
开题报告一份
外文翻译一份
CAD版本图纸,共6张
摘 要
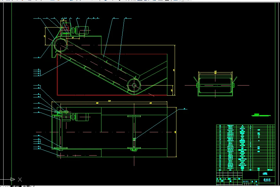
S195G-01006机体清洗机是用于S195G-01006机体的专用清洗设备。适用于生产流水线上批量生产的已完成机加工的机体在入库前的常温清洗。S195G柴油机机体专用清洗机床采用高压喷射清洗方式。本机床为液压步进、连续型、多工位清洗机。机床主要由机架、输送机构、水箱、清洗液输送系统、喷水清洗系统、喷气吹干系统、液压系统、电气控制系统组成。采用液压步进式连续型工作生产方式:机体从上料端上料后,由步进式输送机构在PLC程序控制系统控制下按程序先后送入清洗、吹干工位,完成定点对位清洗及吹干以后输出。从机体上料后能自动完成机体的清洗、吹干等工序,直至自动输出。由于采用流水线清洗,清洗效率高;由于采用定点,对位清洗清洗效果特别好,清洗质量高;控制系统采用PC控制,操作完全实现自动化。因此,清洗任务能安全高效的完成,并且操作、维护十分方便。
关键词:S195G柴油机机体;清洗;高压喷射清洗;液压步进式输送机构
目 录
摘 要 III
Abstract..........................................................................................................................................IV
目 录 V
1 绪论 1
1.1 清洗机技术现状和发展趋势 1
1.3 课题的主要内容 2
2 清洗机设计方案论证 3
2.1 机体零件的清洗特点 3
2.2 机床总方案 3
2.4 液压系统方案确定 5
2.5 控制系统方案确定 6
3 清洗机主要参数的分析与计算 7
3.1 设计技术参数 7
3.2 机械系统主要计算 7
4 清洗机床的设计 11
4.1 机械系统的设计 11
4.1.1 清洗机床的总体设计 11
4.1.2 机架的设计 15
4.1.3 水箱的设计 16
4.1.4 输送滚道与机构的设计 19
4.1.5 升降喷水吹风系统的设计 21
4.1.6 排渣机的设计 25
4.2 液压系统的设计 26
4.2.1 液压系统原理图设计 27
4.2.2 液压系统管道图设计 27
4.3 控制系统的设计 28
5 结论与展望 29
5.1结论 29
5.2不足之处及未来展望 29
致谢 30
参考文献 31
温馨提示:
1、题目前面的备注【字母数字编号】为本站整理分类的编号,与课题内容无关,请选题时忽视;
2、若题目上备注三维,则表示文件里包含三维源文件,由于三维组成零件数量较多,为保证预览截图的简洁性,本站将三维文件夹进行了打包。三维及CAD预览截图,均为本站电脑打开软件进行截图的,保证能够打开,下载原件超高清,下载后解压即可;
3、本站所有资源如无特殊说明,都需要本地电脑安装Office2007。图纸软件为AutoCAD,PROE,UG,SolidWorks,CATIA等;
4、本站所有图文资料仅供用户学习参考,不作为任何商用或其他用途;
5、本站不保证下载资源的准确性、安全性和完整性, 不包修改,不支持退换,同时也不承担用户因使用这些下载资源对自己和他人造成任何形式的伤害或损失;
6、 下载文件中如有侵权或不适当内容,请与我们联系,我们立即纠正。