

作品包括:
Word版说明书1份,共50页,约17000字
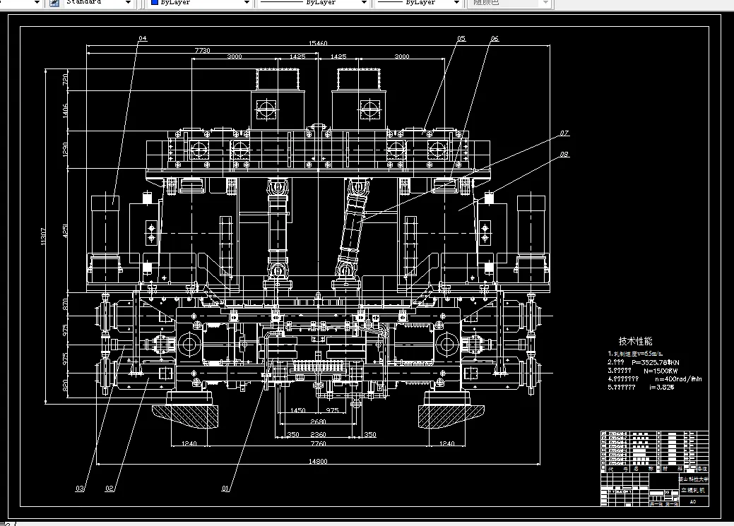
CAD版本图纸,共5张
立辊轧机主传动系统设计
摘要
近年来立辊轧机相对于以往有了很大的改进,其在轧钢生产中使用越来越广泛,尤其是在热轧薄板带钢生产中的破鳞、控制板坯宽度等方面更是必不可少的轧钢设备。新型立辊轧机目前在我国受到很多钢铁公司的青睐,产生了显著的经济效益。
本次设计的主要目的是对立辊轧机设备的整体结构有进一步的了解,并对主要部件进行校核计算。在查阅大量文献和了解相关知识的同时,到鞍山钢铁集团公司热轧带钢厂1700及1780生产线进行了参观实习。经过一个月的实习,对立辊轧机的认识也由理性认识上升到了感性认识。
本次设计包括热轧宽带钢的国内外发展、立辊轧机的发展、立辊轧机的简介、立辊轧机主传动系统的设计及主要力能参数的校核计算等内容。在大多数钢铁公司里立辊轧机都是采用下传动形式的,而本次设计的主要特色是将立辊轧机的传动形式设计成为上传动形式。
关键词:立辊轧机,主传动系统,力能参数计算
目录
1.绪论 …………………………………………………………………………………… 1
1.1 选题背景及目的…………………………………………………………………… 1
1.1.1选题背景…………………………………………………………………………… 1
1.1.2选题目的…………………………………………………………………………… 1
1.2 热轧宽带钢国内外发展状况……………………………………………………… 1
1.2.1国外热轧宽带钢生产技术的发展史……………………………………………… 1
1.2.2我国热轧宽带钢生产技术的进步………………………………………………… 2
2.立辊轧机简介 ………………………………………………………………………… 4
2.1 立辊轧机的发展状况……………………………………………………………… 4
2.1.1立辊轧机的发展…………………………………………………………………… 4
2.1.2新型立辊轧机的使用情况………………………………………………………… 4
2.2 立辊轧机特点介绍………………………………………………………………… 4
2.2.1立辊轧机的特点…………………………………………………………………… 4
2.2.2立辊轧机的作用…………………………………………………………………… 5
2.2.3立辊轧机的分类…………………………………………………………………… 5
2.2.4立辊轧机的组成…………………………………………………………………… 5
3.总体方案的确定 ……………………………………………………………………… 6
3.1 主传动系统………………………………………………………………………… 6
3.2 万向接轴…………………………………………………………………………… 7
3.3 轧辊系统…………………………………………………………………………… 7
3.4 轧辊轴承…………………………………………………………………………… 8
3.5 侧压系统…………………………………………………………………………… 9
4.立辊轧机力能参数的计算 …………………………………………………………… 10
4.1 立辊轧机轧制力计算……………………………………………………………… 10
4.1.1影响应力计算因素………………………………………………………………… 10
4.1.2应力计算…………………………………………………………………………… 12
4.1.3立辊轧机轧制力计算……………………………………………………………… 12
4.2 立辊轧机轧辊力矩计算…………………………………………………………… 12
4.3 轧机主电动机功率计算…………………………………………………………… 13
4.3.1轧机主电动机力矩计算…………………………………………………………… 13
4.3.2立辊轧机主电动机功率计算……………………………………………………… 14
5.主要零部件的校核计算……………………………………………………………… 16
5.1 减速机的设计与校核计算………………………………………………………… 16
5.1.1齿轮的设计计算…………………………………………………………………… 16
5.1.2按齿根弯曲强度校核设计………………………………………………………… 18
5.1.3齿轮几何尺寸计算………………………………………………………………… 20
5.2 齿轮轴的校核计算………………………………………………………………… 21
5.2.1齿轮轴上载荷计算………………………………………………………………… 21
5.2.2按弯扭合成应力校核轴的强度…………………………………………………… 24
5.2.3根据轴的安全系数校核轴………………………………………………………… 24
5.3 轴承寿命验算……………………………………………………………………… 26
5.3.1轴承所受载荷计算………………………………………………………………… 26
5.3.2验算轴承寿命……………………………………………………………………… 28
5.4 轧辊校核…………………………………………………………………………… 29
5.4.1轧辊工作直径及辊身长度确定…………………………………………………… 29
5.4.2轧辊校核…………………………………………………………………………… 29
6.设备润滑 ……………………………………………………………………………… 34
结论……………………………………………………………………………………… 35
致谢……………………………………………………………………………………… 36
参考文献………………………………………………………………………………… 37
温馨提示:
1、题目前面的备注【字母数字编号】为本站整理分类的编号,与课题内容无关,请选题时忽视;
2、若题目上备注三维,则表示文件里包含三维源文件,由于三维组成零件数量较多,为保证预览截图的简洁性,本站将三维文件夹进行了打包。三维及CAD预览截图,均为本站电脑打开软件进行截图的,保证能够打开,下载原件超高清,下载后解压即可;
3、本站所有资源如无特殊说明,都需要本地电脑安装Office2007。图纸软件为AutoCAD,PROE,UG,SolidWorks,CATIA等;
4、本站所有图文资料仅供用户学习参考,不作为任何商用或其他用途;
5、本站不保证下载资源的准确性、安全性和完整性, 不包修改,不支持退换,同时也不承担用户因使用这些下载资源对自己和他人造成任何形式的伤害或损失;
6、 下载文件中如有侵权或不适当内容,请与我们联系,我们立即纠正。