

作品包括:
Word版说明书1份,共41页,约10000字
任务书一份
开题报告一份
文献综述一份
CAD版本图纸,共6张

摘要
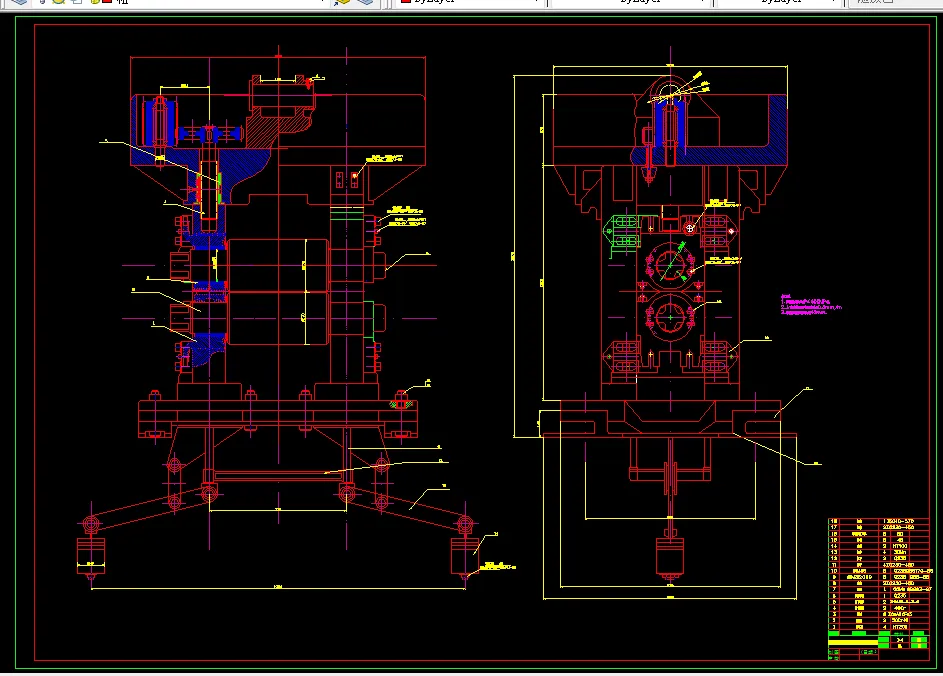
随着我国经济的发展,对龙门起重机的性能要求越来越高,为了满足了中小型船厂及其船体车间生产发展的需要,我们设计了这台180t61m的造船用龙门起重机,并通过合理选型设计,使其具有结构型式简单实用,使用操作方便,制造价格低廉,维护保养简便等特点。按照国家标准,参照以前龙门起重机的设计,本计算说明书详细记录了造船龙门起重机总体布置方案的选型论证,整机载荷计算。其中包括运行阻力的计算,各种设备的选型,起动制动时间的验算,过载和发热验算和整机以及下小车的打滑验算。
关键词:龙门起重机运行机构起升机构
目录
绪论1
第1章设计技术参数
1.1设计参数2
1.2设计标准2
第2章整机总体方案的选型3
2.1起升机构方案3
2.2运行机构方案4
2.3门架结构形式的选择5
2.4司机室6
2.5梯子栏杆电器设备6
2.6起重机安全与辅助装置7
2.6.1电气保护设备7
2.6.2门架结构形式的选择7
2.7总体设计方案8
第3章龙门起重机总体设计计算9
3.1载荷计算9
3.1.1龙门起重机重量及重心位置估算表9
3.1.2迎风面积及风力矩10
3.1.3基本参数11
3.1.4相关系数11
3.1.5运行惯性力11
3.1.6制动时的惯性力12
3.1.7风载荷13
3.1.8货物偏摆载荷14
3.1.9货物载荷14
3.1.10碰撞载荷14
3.1.11轮压计算14
3.2起重机稳定性校核15
3.3缓冲器的选型17
3.3.1大车运行机构的缓冲器型号的选择17
3.4抗滑力的计算17
第4章下小车的设计计算19
4.1运行机构计算19
4.1.1设计参数19
4.1.2运行阻力计算19
4.1.3三合一电机选型计算20
4.1.4起制动时间验算20
4.1.4.1起动时间验算20
4.1.4.2起动加速度21
4.1.4.3制动时间验算21
4.1.4.4制动加速度21
4.1.4.5制动时间验算21
4.1.5电机过载与发热校核22
4.1.5.1电机过载能力校核22
4.1.5.2电机发热校核22
4.1.5.3制动加速度22
4.1.5.4制动时间验算22
4.1.6打滑验算22
4.1.6.1起动时的打滑验算22
4.1.6.2制动时的打滑验算23
4.2主起升机构计算24
4.2.1计算参数24
4.2.2钢丝绳选型计算24
4.2.3滑轮选型计算25
4.2.4卷筒几何尺寸计算25
4.2.5起升电机选型计算26
4.2.6减速器选型计算26
4.2.7制动器选型计算26
4.2.8联轴器选型26
4.2.9起升速度校核26
4.2.10起制动时间验算27
4.2.11电机过载与发热校核28
4.3副起升机构29
4.3.1计算参数29
4.3.2钢丝绳选型计算29
4.3.3滑轮选型计算30
4.3.4卷筒几何尺寸计算30
4.3.5起升电机选型计算30
4.3.6减速器选型计算31
4.3.7制动器选型计算31
4.3.8联轴器选型31
4.3.9起升速度校核31
4.3.10起制动时间验算31
4.3.11电机过载与发热校核33
结论34
参考文献35
致谢36
温馨提示:
1、题目前面的备注【字母数字编号】为本站整理分类的编号,与课题内容无关,请选题时忽视;
2、若题目上备注三维,则表示文件里包含三维源文件,由于三维组成零件数量较多,为保证预览截图的简洁性,本站将三维文件夹进行了打包。三维及CAD预览截图,均为本站电脑打开软件进行截图的,保证能够打开,下载原件超高清,下载后解压即可;
3、本站所有资源如无特殊说明,都需要本地电脑安装Office2007。图纸软件为AutoCAD,PROE,UG,SolidWorks,CATIA等;
4、本站所有图文资料仅供用户学习参考,不作为任何商用或其他用途;
5、本站不保证下载资源的准确性、安全性和完整性, 不包修改,不支持退换,同时也不承担用户因使用这些下载资源对自己和他人造成任何形式的伤害或损失;
6、 下载文件中如有侵权或不适当内容,请与我们联系,我们立即纠正。