

作品包括:
Word版说明书1份,共28页
CAD版本图纸,共8张
SW三维图一套
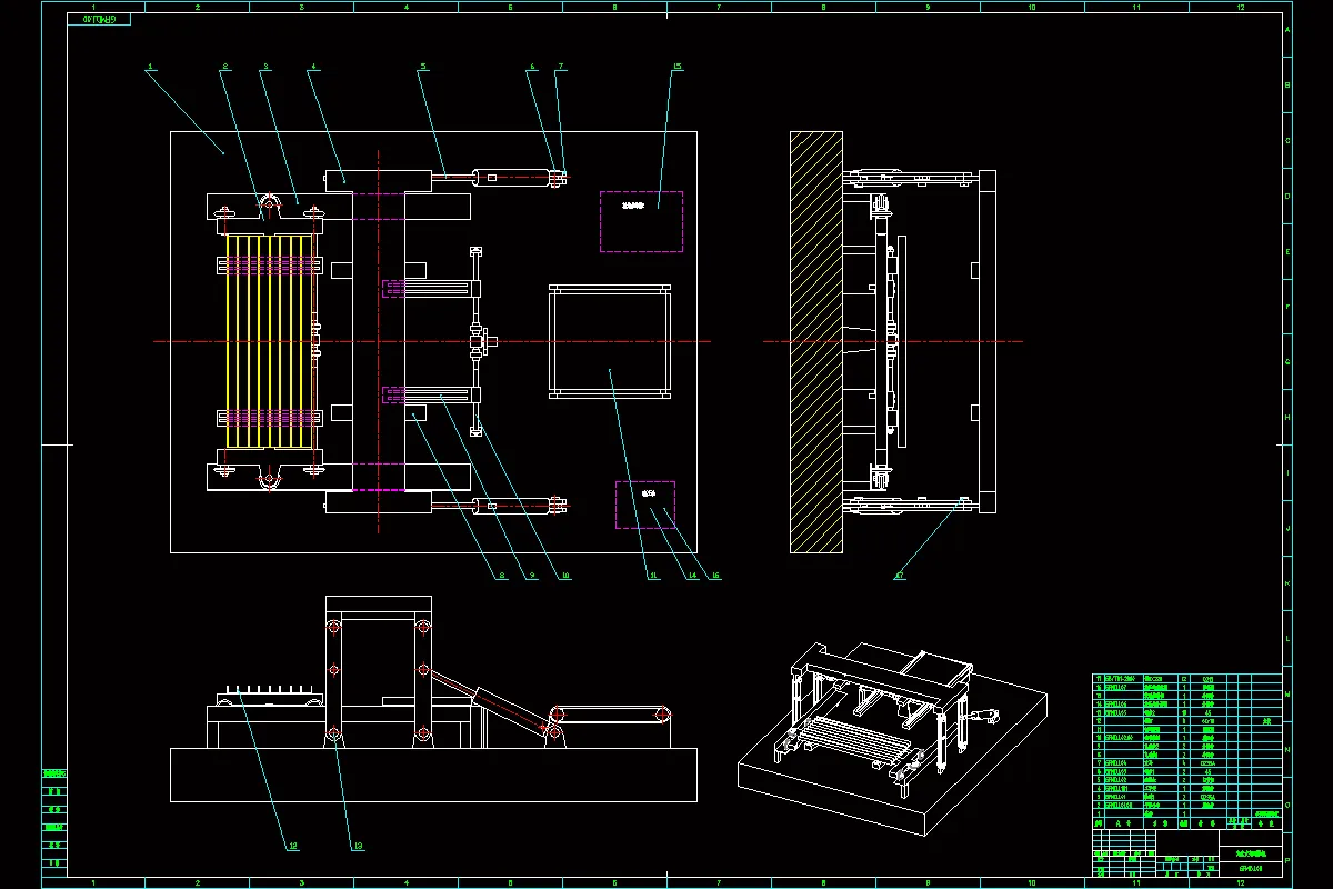
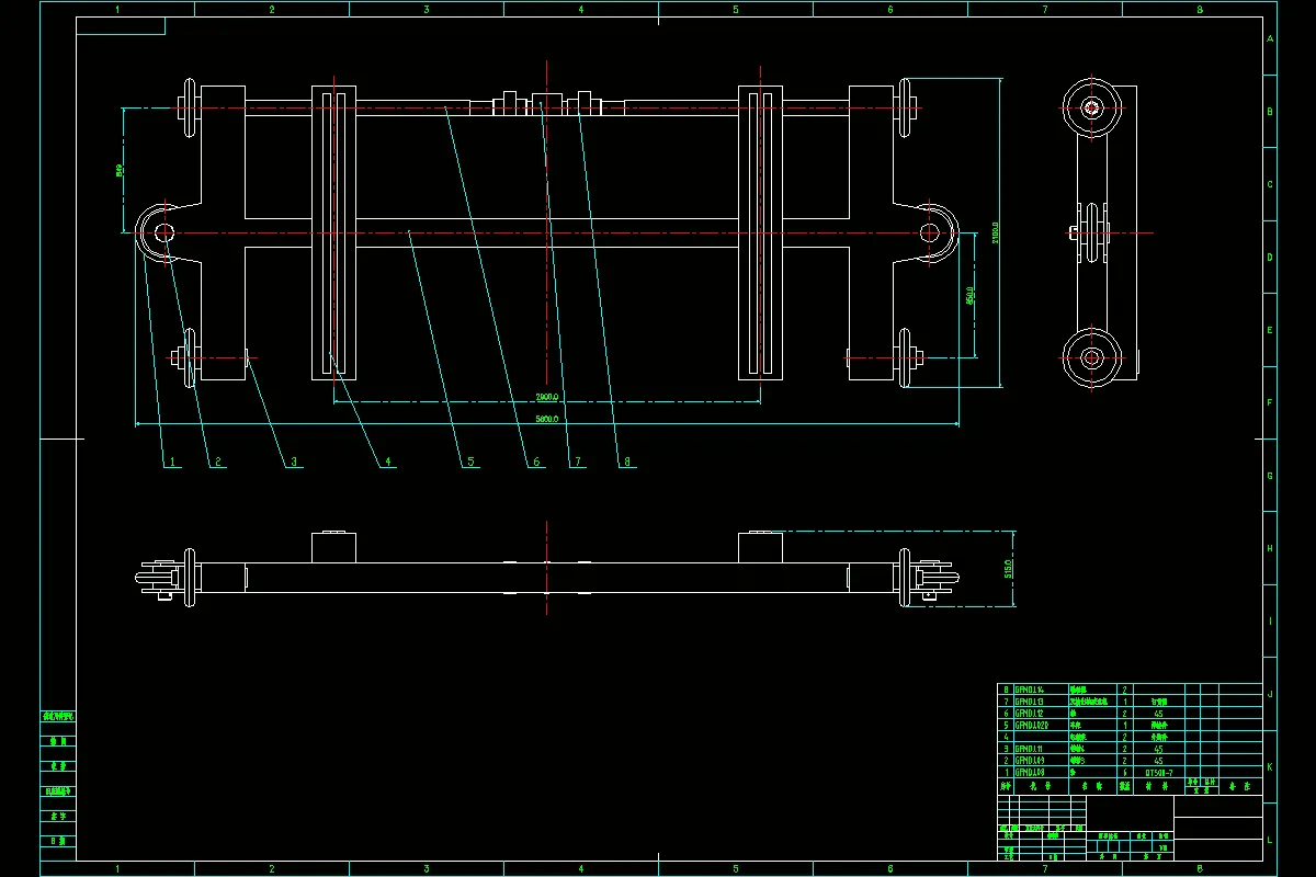
太阳能光伏支架槽钢型材自动码垛机的设计含三维及8张CAD图带设计计算说明.能源是社会生产力的重要基础,随着社会生产力的不断发展和技术的进步,随着化石能源的日益枯竭和价格的不断上升,太阳能作为一种可再生、高效的能源受到了广泛的关注和应用。 太阳能作为一种永久性资源,其经济效益是不可估量的。中国有非常丰富的太阳能资源。据估计,陆地表面每年接收的太阳辐射能量约为5×1019焦耳,相当于700 10亿吨标准煤的热值。与火电、水电、核电等发电方式不同,光伏发电依靠太阳能独特的自然存在,几乎没有任何经济成本的基本来源。光伏发电,如适用于太阳能光伏发电系统或太阳能电池阵列,电池,逆变器,负载和控制器的系统,从而产生方只需要支付的硬件成本,可用于太阳能光伏发电的资源,以满足各种行业的电力需求不断增长的需求。 太阳能光伏支架是太阳能光伏发电系统的一种特殊的设计,以显示、安装和安装太阳能电池板。一般材料是铝,碳钢和不锈钢。本文针对碳钢或不锈钢材质的槽钢光伏支架设计了自动槽钢码垛机,实现该形式光伏支架的自动码垛,节省人力、物力和财力。
温馨提示:
1、题目前面的备注【字母数字编号】为本站整理分类的编号,与课题内容无关,请选题时忽视;
2、若题目上备注三维,则表示文件里包含三维源文件,由于三维组成零件数量较多,为保证预览截图的简洁性,本站将三维文件夹进行了打包。三维及CAD预览截图,均为本站电脑打开软件进行截图的,保证能够打开,下载原件超高清,下载后解压即可;
3、本站所有资源如无特殊说明,都需要本地电脑安装Office2007。图纸软件为AutoCAD,PROE,UG,SolidWorks,CATIA等;
4、本站所有图文资料仅供用户学习参考,不作为任何商用或其他用途;
5、本站不保证下载资源的准确性、安全性和完整性, 不包修改,不支持退换,同时也不承担用户因使用这些下载资源对自己和他人造成任何形式的伤害或损失;
6、 下载文件中如有侵权或不适当内容,请与我们联系,我们立即纠正。