

作品包括:
Word版说明书1份,共44页
任务书一份
CAD版本图纸,共9张
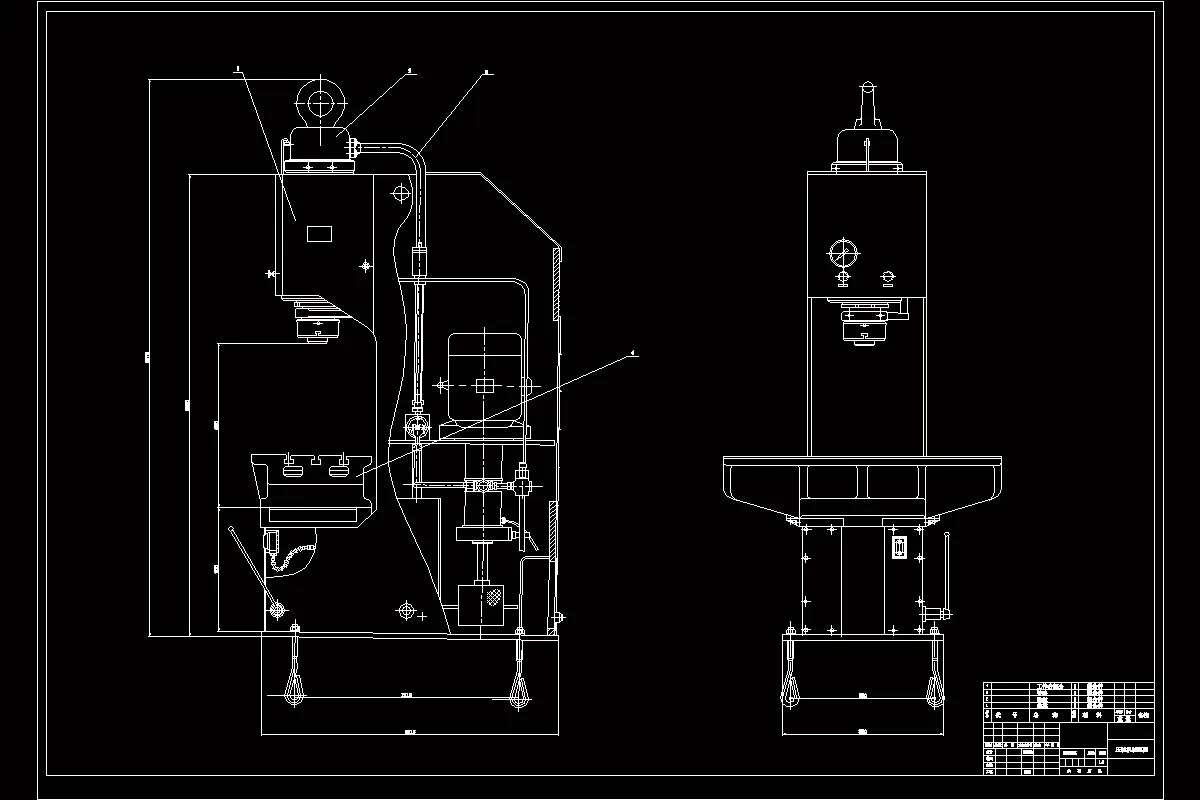
单柱校正压装机设计含9张CAD图,伴随国内经济的飞速发展,机械工业迎来了发展的春天。轴这一类型的零部件,校正型材,还有压装轴套零部件,对板材进行弯曲,压印,套装,一些简单零部件进行拉伸等等动作,都需要校正压装机来完成。本文研究的主要内容是单柱校正压装机。本压装机在轴类、套类零件的加工工业中被广泛应用。为了简化机构,提高传递的精度和效率,液压机由液压泵直接驱动,液压传动系统利用液压缸推动滑块工件进行加工。 设计之初通过对压装机工作原理、分类、研究现状等知识的掌握,完成压装机总体方案的设计。通过对整体布局、液压系统、管路、液压缸等主要零部件的设计、计算校核与确定。这个液压设备的结构是非常紧凑的,并且动作起来非常灵活,还很敏捷,可靠性高,速度也很快,耗费的能耗不大,噪音小,可以对压力还有行程在规定的范围里面进行调整,使用起来是非常简单的。
温馨提示:
1、题目前面的备注【字母数字编号】为本站整理分类的编号,与课题内容无关,请选题时忽视;
2、若题目上备注三维,则表示文件里包含三维源文件,由于三维组成零件数量较多,为保证预览截图的简洁性,本站将三维文件夹进行了打包。三维及CAD预览截图,均为本站电脑打开软件进行截图的,保证能够打开,下载原件超高清,下载后解压即可;
3、本站所有资源如无特殊说明,都需要本地电脑安装Office2007。图纸软件为AutoCAD,PROE,UG,SolidWorks,CATIA等;
4、本站所有图文资料仅供用户学习参考,不作为任何商用或其他用途;
5、本站不保证下载资源的准确性、安全性和完整性, 不包修改,不支持退换,同时也不承担用户因使用这些下载资源对自己和他人造成任何形式的伤害或损失;
6、 下载文件中如有侵权或不适当内容,请与我们联系,我们立即纠正。