

作品包括:
Word版说明书1份,共31页,约13000字
CAD版本图纸,共10张
Proe三维图一套

摘要
近年来,随着国民经济的不断增长,各行各业对纸的要求日益增大,国内造纸行业也进入了一个新的发展时期.卷纸机成为造纸厂必要设备之一。卷纸机的组成部分有卷纸缸、卷纸辊及卷纸辊调节装置、换纸装置、启动装置等。卷纸棍带式启动装置目前有两种:轮胎启动和带式启动,轮胎启动较之带式启动装置它的稳定性较差,不能满足高速纸机的要求,高速纸机上通常选用带式启动装置。
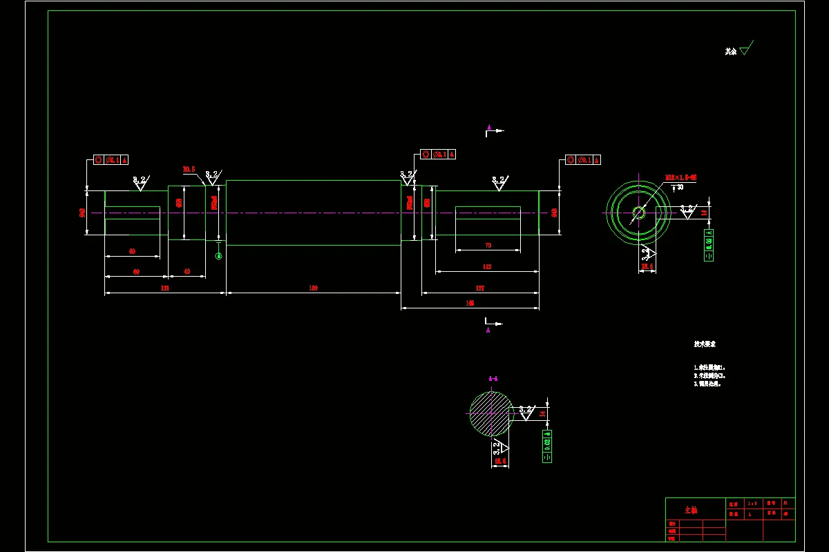
为适应高车速需要,本文对大型卷纸机带式启动装置进行设计研究,它由电机、联轴器、气缸、主轴、轴承、带轮、平皮带、连杆等零部件组成。卷纸机通过启动装置变速过程中使空的卷纸棍速度与卷纸缸的速度同步。
通过传动方案的拟定,经过电动机的选择及带轮的计算;联轴器的选择;传动零件的设计计算;气缸的选型计算。结合PEROE软件三维建模, AuToCAD软件二维工程出图,最终设计出适用于大型卷纸机的带式启动装置。
关键词:卷纸机,减速机,三维建模,工程图
目录
大型卷纸机启动装置4
1绪论4
1.1课题的提出及背景4
1.1.1国内外卷纸机的发展现状4
1.1.2课题的提出9
1.2基本内容及技术方案9
1.3卷纸机带式启动装置结构及工作原理9
2基本结构选型计算10
2.1带式卷纸机启动装置电机的计算选型10
2.2平皮带传动的计算11
2.3电机输出联轴器选型计算13
2.4主轴计算13
2.5气缸的计算选型14
3强度校核计算16
3.1主轴的强度校核16
3.2健的强度校核17
3.2.1联轴器与电机连接健的强度校核18
3.2.2联轴器与主轴连接健的强度校核18
3.2.3主带轮与主轴连接健的强度校核18
3.3轴承寿命校核计算19
3.3.1主轴轴承寿命计算19
3.3.1带轮轴承寿命计算19
3.3.2轴承润滑20
4卷纸机启动装置说明21
4.1主轴传动结构22
4.2从动轮传动结构22
5附件的设计23
5.1动轴连杆的设计23
5.2连杆(1)的设计23
5.3从动带轮的设计24
5.4主轴承安装座设计24
5.5平皮带材料的选取25
5.6支架的设计25
6安装注意事项26
6.1平键的安装要求26
6.2轴承安装注意事项26
6.3联轴器安装注意事项27
总结27
致谢29
参考文献30
温馨提示:
1、题目前面的备注【字母数字编号】为本站整理分类的编号,与课题内容无关,请选题时忽视;
2、若题目上备注三维,则表示文件里包含三维源文件,由于三维组成零件数量较多,为保证预览截图的简洁性,本站将三维文件夹进行了打包。三维及CAD预览截图,均为本站电脑打开软件进行截图的,保证能够打开,下载原件超高清,下载后解压即可;
3、本站所有资源如无特殊说明,都需要本地电脑安装Office2007。图纸软件为AutoCAD,PROE,UG,SolidWorks,CATIA等;
4、本站所有图文资料仅供用户学习参考,不作为任何商用或其他用途;
5、本站不保证下载资源的准确性、安全性和完整性, 不包修改,不支持退换,同时也不承担用户因使用这些下载资源对自己和他人造成任何形式的伤害或损失;
6、 下载文件中如有侵权或不适当内容,请与我们联系,我们立即纠正。