

作品包括:
Word版说明书1份,共48页,约15000字
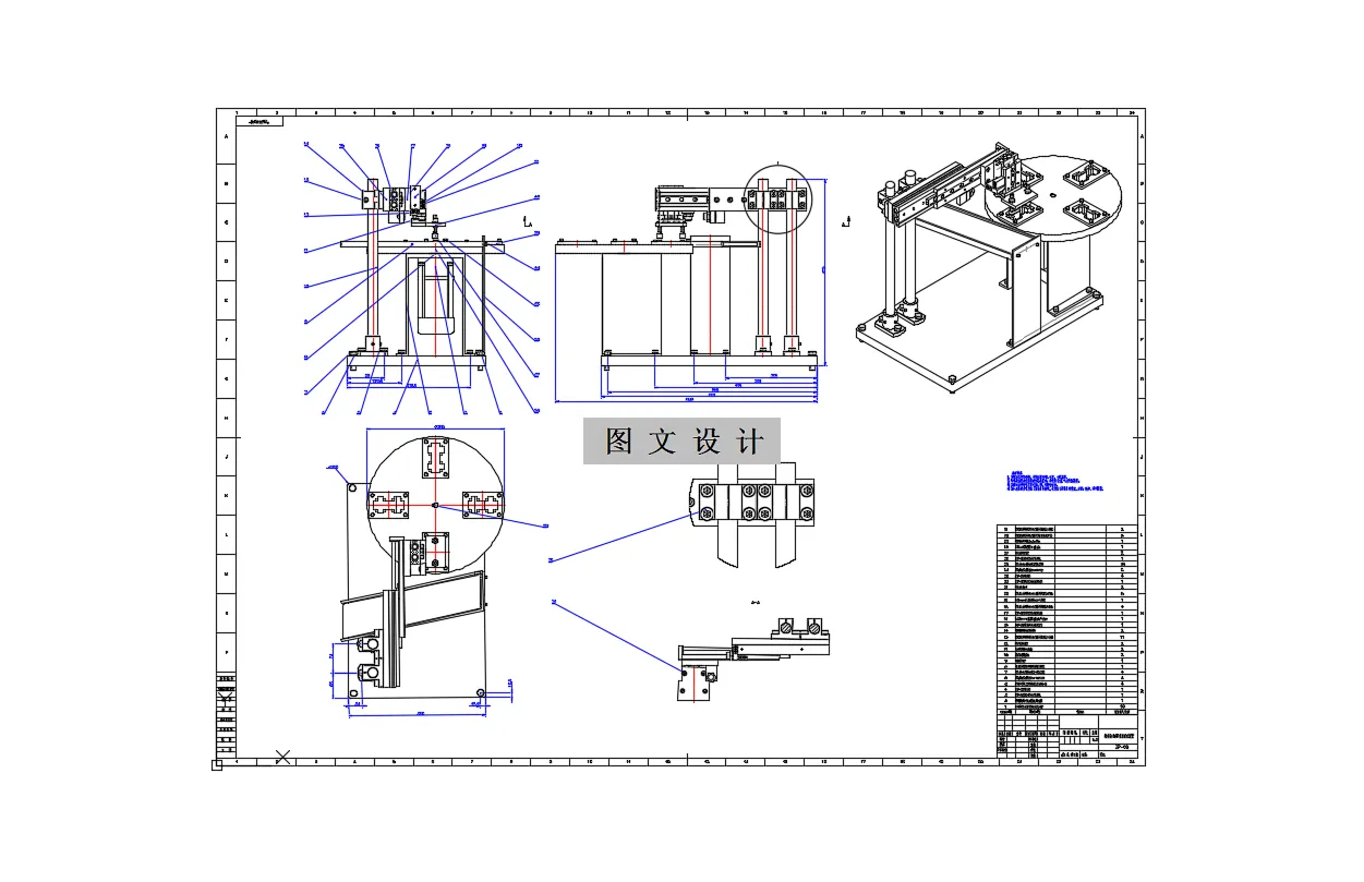
CAD版本图纸,共12张

摘要
由于各行业的发展,针对升降平台服务的设备行业已经成为我国的新型产业不断发展壮大,各类剪叉式平台不断出现,随着质量的逐步提高,销量也在稳步上升。本设计液压升降台采用剪叉式结构。
近年来,有许多课题文献是有关于剪叉式液压平台液压系统的,但这些研究大多针对于某一课题或者难点进行研究,对于研究平台及液压系统的却少,所以研究与设计剪叉式液压平台及液压系统具有重要现实与理论意义。
本主要概述剪叉式平台液压技术的发展史及其目前在国内外发展情况,简述了剪叉式平台发展趋势,整机的液压系统图油路各自拟订好的控制回路及液压源而成。各回路相互时去掉重复多余的元件,力求系统结构简单。
本文对剪叉式平台的液压系统与回路进行了简单的分析与阐述,并对课题要求的设计要求进行了方案设计与分析,通过进一步的验算选定了所需要的液压元件。通过运用AutoCAD绘制液压系统原理图、液压平台装配图、液压缸及其他零件图。最后通过验算证明了本设计的准确性。
关键字:平台,剪叉式,液压系统,液压缸
目录
目录I
摘要v
Abstract VI
1绪论1
1.1升降平台的设计特点1
1.2剪叉式升降平台的安全保证措施1
1.2.1设计制造方面的安全保证措施2
1.2.2使用维护方面的安全保证措施3
1.3研究地目地及意义3
2总体设计方案确定4
2.1设备液压系统设计地原始依据4
2.2工作情况分析4
2.3设备液压系统设计运动速度地确定5
3剪叉式升降台受力分析6
3.1剪叉式升降平台的三种结构形式6
3.2剪叉式升降平台机构的位置参数计算7
3.3剪叉式升降平台机构的动力参数计算10
3.4剪叉式升降平台机构设计时应注意的问题10
4液压缸的设计计算12
4.1明确设计要求制定基本方案: 12
4.1.1确定液压缸的类型12
4.1.2确定液压缸的安装方式12
4.1.3缸盖联接的类型12
4.2液压缸载荷计算12
4.3液压缸各组成部分的设计16
4.3.1液压缸缸筒的设计和计算: 16
4.3.2活塞杆的设计与计算: 18
4.3.3导向套的设计与计算: 23
4.3.4液压缸油口的设计: 25
4.3.5端盖和缸底的设计计算: 27
4.3.6密封件的选用: 29
4.3.7防尘圈30
4.3.8液压缸的安装连接结构30
4.4液压缸主要零件的材料和技术要求33
4.4.1缸体33
4.4.2活塞杆34
5液压传动系统的设计计算34
5.1拟订液压执行元件运动控制回路34
5.2液压源系统34
5.3确定液压系统的主要参数34
5.3.1载荷的组成与计算: 34
5.3.2初选系统压力35
5.3.3计算液压缸的主要结构尺寸35
5.3.4确定液压泵的参数39
5.3.5管道尺寸的确定38
5.3.6油箱容量的确定39
5.4绘制液压系统原理图40
5.4.1、压力油源40
5.4.2、控制回路40
5.4.3、液压锁紧回路40
5.4.4、绘制液压系统原理图40
致谢42
参考文献43
温馨提示:
1、题目前面的备注【字母数字编号】为本站整理分类的编号,与课题内容无关,请选题时忽视;
2、若题目上备注三维,则表示文件里包含三维源文件,由于三维组成零件数量较多,为保证预览截图的简洁性,本站将三维文件夹进行了打包。三维及CAD预览截图,均为本站电脑打开软件进行截图的,保证能够打开,下载原件超高清,下载后解压即可;
3、本站所有资源如无特殊说明,都需要本地电脑安装Office2007。图纸软件为AutoCAD,PROE,UG,SolidWorks,CATIA等;
4、本站所有图文资料仅供用户学习参考,不作为任何商用或其他用途;
5、本站不保证下载资源的准确性、安全性和完整性, 不包修改,不支持退换,同时也不承担用户因使用这些下载资源对自己和他人造成任何形式的伤害或损失;
6、 下载文件中如有侵权或不适当内容,请与我们联系,我们立即纠正。