

作品包括:
Word版说明书1份,共35页,约10000字
开题报告一份
CAD版本图纸,共6张

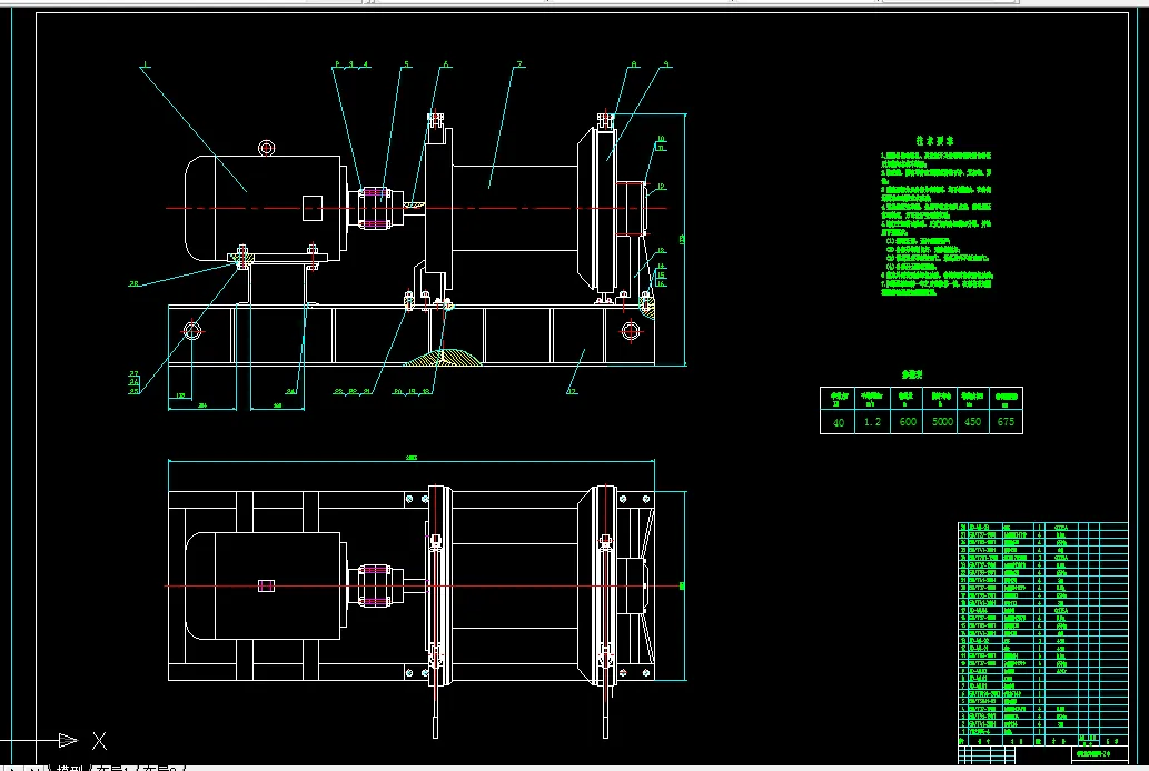
内容摘要:无心磨床送料机构分两部分,一部分为上料机构,作用为把工件送到指定位置,另一部分为下料机构,作用是把加工好的工件平稳的运送到指定位置。上料机构主要用于实现工件的提升。它是无心磨床送料机构中最重要、最基本的机构,其工作的好坏直接影响整台无心磨床的工作性能。上料机构由驱动装置、工件带动装置、取物装置和安全保护装置等组成。驱动装置包括气缸、电动机、联轴器等部件。
工件带动装置包括基板、斜板、取物装置、支撑座等部件。利用气缸作为传动斜板的上下运动动力,载着工件到达指定高度,在沿着设计的斜坡依靠重力滑落到机械手工作的指定位置,气缸两侧支撑螺栓刚做限位器,限制工件的最低位置。下料机构主要用于对已加工过的工件的放置,保证工件的加工精度,起到保护的作用;下料机构工作原理:气缸前后运动带动齿条移动,然后齿条带动中间齿轮转动,依靠同轴带动两侧齿轮做相同运动,由皮带连接导致皮带轮转动,再因为同轴连杆摆动,进而放料台做曲线运动,达到移动工件的目的。设计出自动上料机是非常有意义的。在设计的过程中,运用CAD技术辅助设计,尽量实现三维建模仿真到二维工程图纸的输出无纸化。
关键词:无心磨床;送料机构;CAD辅助设计。
目 录
内容摘要 I
Abstract II
1 绪论 1
1.1 无心磨床步进式送料机械手的特点及分类 1
1.2 无心磨床步进式送料机械手的现状及发展趋势 2
1.3 课题研究内容 4
2 无心磨床步进式送料机械手总体设计 6
2.1 无心磨床步进式送料机械手设计目的 6
2.2 确定无心磨床步进式送料机械手设计主要内容 6
2.2.1 上料机构的组成及工作原理 6
2.2.2 下料机构的组成及工作原理 9
3 各工作机构校核 14
3.1 上料气缸的选定与计算 14
3.1.1 上料气缸内径的确定 14
3.1.2 活塞杆直径的确定 15
3.1.3 缸筒长度的确定 15
3.1.4 上料气缸筒的壁厚的确定 16
3.1.5 上料气缸耗气量的计算 16
3.1.6 上料气缸进排气口的直径 17
3.1.7 活塞杆的校核 19
3.2 下料齿轮参数的选择 22
3.3 齿条的设计...................................................................23
3.4齿轮轴的设计.....................................................................24
3.5皮带皮带轮算...........................................................................25
4 总结与展望 29
4.1 工作总结 29
4.2 工作展望 29
参考文献 30
附录:开题报告(数据报告)...................................................31
致谢 34
附件一 无心磨床步进式送料机械手设计图纸 35
温馨提示:
1、题目前面的备注【字母数字编号】为本站整理分类的编号,与课题内容无关,请选题时忽视;
2、若题目上备注三维,则表示文件里包含三维源文件,由于三维组成零件数量较多,为保证预览截图的简洁性,本站将三维文件夹进行了打包。三维及CAD预览截图,均为本站电脑打开软件进行截图的,保证能够打开,下载原件超高清,下载后解压即可;
3、本站所有资源如无特殊说明,都需要本地电脑安装Office2007。图纸软件为AutoCAD,PROE,UG,SolidWorks,CATIA等;
4、本站所有图文资料仅供用户学习参考,不作为任何商用或其他用途;
5、本站不保证下载资源的准确性、安全性和完整性, 不包修改,不支持退换,同时也不承担用户因使用这些下载资源对自己和他人造成任何形式的伤害或损失;
6、 下载文件中如有侵权或不适当内容,请与我们联系,我们立即纠正。