

作品包括:
Word版设计说明书1份
CAD版本图纸,共18张
SW三维图一套
摘要
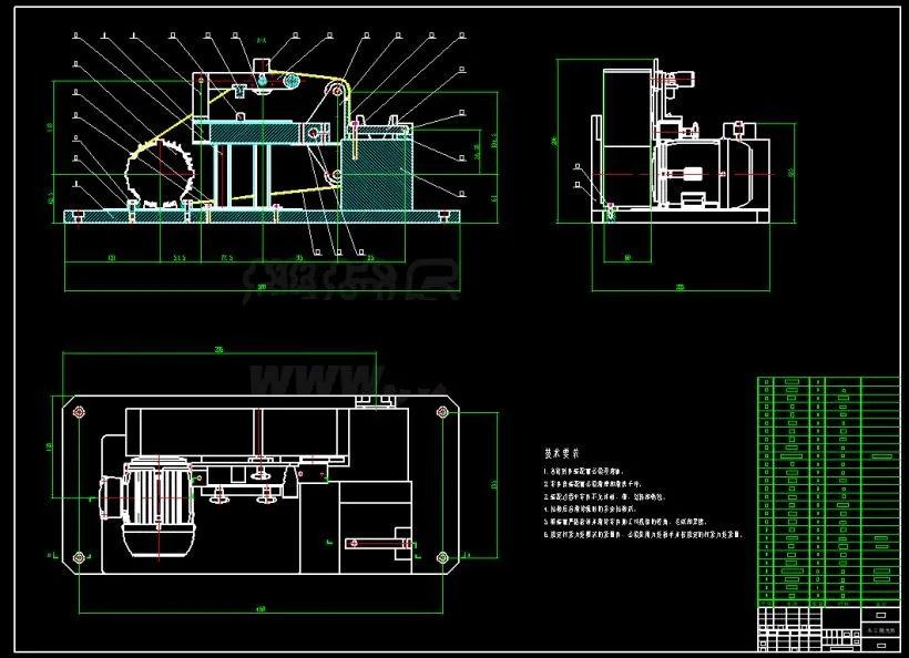
本文详尽地阐述了一种小型机动除冰装置的全面设计过程。首先,本文深入探讨了除冰装置的整体方案设计,其中涵盖了结构特性、工作原理、功率分配、机架设计、行走装置设计以及动力装置的选定。这些设计元素共同构成了除冰装置的基本框架,为其后续的功能实现和性能优化提供了坚实的基础。 接着,文章对除冰装置的主要部件进行了详细的设计与计算。包括传动比的确定、铲冰装置设计、碎冰装置设计以及主要部件结构参数的确定及计算。传动比的设计决定了除冰装置的工作效率,而铲冰装置和碎冰装置的设计则直接影响了除冰效果。此外,文章还对这些主要部件的结构参数进行了详细的计算和优化,以确保其在实际工作中的稳定性和可靠性。 最后,文章提出了除冰作业性能参数的要求。这些要求包括多功能化、高效化、环保化和智能化。这些要求不仅体现了现代除冰装置的发展趋势,也为后续的研究和开发提供了明确的方向。 本文全面而深入地研究了小型机动除冰装置的总体设计、主要部件设计与计算以及除冰作业性能参数。这一研究对于提高除冰装置的性能、推动除冰技术的发展具有重要的理论和实践意义。
温馨提示:
1、题目前面的备注【字母数字编号】为本站整理分类的编号,与课题内容无关,请选题时忽视;
2、若题目上备注三维,则表示文件里包含三维源文件,由于三维组成零件数量较多,为保证预览截图的简洁性,本站将三维文件夹进行了打包。三维及CAD预览截图,均为本站电脑打开软件进行截图的,保证能够打开,下载原件超高清,下载后解压即可;
3、本站所有资源如无特殊说明,都需要本地电脑安装Office2007。图纸软件为AutoCAD,PROE,UG,SolidWorks,CATIA等;
4、本站所有图文资料仅供用户学习参考,不作为任何商用或其他用途;
5、本站不保证下载资源的准确性、安全性和完整性, 不包修改,不支持退换,同时也不承担用户因使用这些下载资源对自己和他人造成任何形式的伤害或损失;
6、 下载文件中如有侵权或不适当内容,请与我们联系,我们立即纠正。