

作品包括:
Word版说明书1份,共68页,约21000字
CAD版本图纸,共3张
摘 要
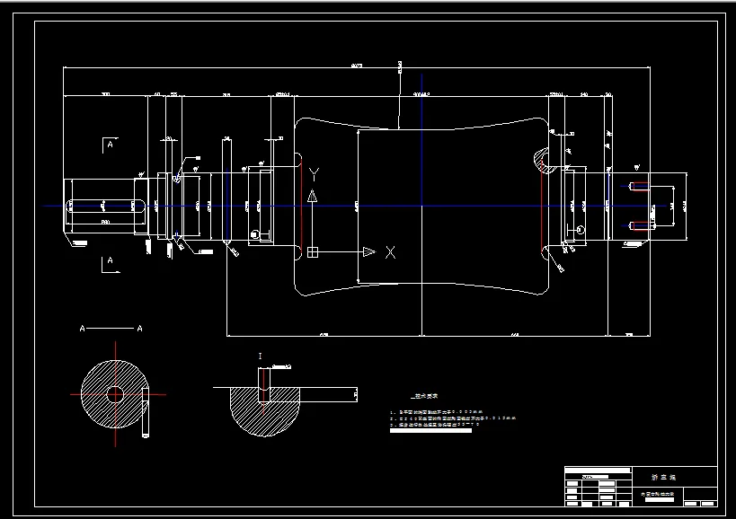
液压式222型钢管矫直机是无缝钢管生产车间的重要设备。其矫直辊的性能对矫直精度有较大影响,因此矫直辊的强度是一个很重要的因素。
本文在弹性理论的基础上,分析和研究了六辊管材矫直机的矫直原理,并着重对六辊矫直机的力能参数进行了理论研究。在理论研究的基础上利用三维软件建模,进一步弄清矫直辊的外形特征。通过ANSYS软件对矫直机矫直辊进行受力分析,并通过图形显示出矫直辊在各个方向上的力能参数变化情况。并列出矫直辊的总体变形图、各方向节点的变形(位移)图、单元应力云图等图像,直观有效的说明了矫直辊在工作过程中的应力变化关系。最后将有限元分析结果与理论计算值进行对比,并分析理论计算结果与ANSYS分析结果的差异和产生误差的原因。
通过以上的理论研究对正确的设计和使用六辊矫直机,深入研究矫直理论及矫直机械参数的精确度的确定具有一定的借鉴和参考价值。
关键词:六辊矫直机;矫直机;矫直力;ANSYS有限元分析
目 录
摘 要 2
Abstract 3
第一章 :绪论 6
1.1 矫直理论的发展概况 6
1.2 矫直设备的分类......................................................................................................... ..7
1.3矫直理论技术的研究方向......................................................................................... .8
1.4 ANSYS的特点和功用............................................................................................... 11
1.5题目研究的意义...........................................................................................................12
第二章:金属条材的弹性基本理论....................................................................................... 13
2.1定义........................................................................................................ .................... 13
2.2 分类....................................................................................................... .................... 14
2.3弯曲变形与应力 16
第三章:斜辊矫直机的结构分析及矫直原理 17
3.1矫直机的结构配置 17
3.2矫直机的工艺参数 18
3.3弯曲变形与曲率 20
3.4斜辊矫直机工作原理 25
第四章:六辊矫直机矫直原理分析及计算体系的比较选择 28
4.1矫直力计算方案汇总 28
4.1.1方案Ⅰ 28
4.1.2方案Ⅱ 30
4.1.3方案Ⅲ 34
4.2矫直力计算结果的分析 37
4.3计算结果的比较与分析 37
第五章:矫直辊的强度分析 39
5.1辊子1´的强度校核 40
5.2辊子1的强度校核 42
5.3辊子2´强度校核 43
5.4辊子2的强度校核 43
5.5本章总结 44
第六章:矫直辊的ANSYS分析 45
6.1建立矫直辊模型 45
6.1.1选择目标文件存放目录、定分析名和标题名 45
6.1.2定义单元类型 46
6.1.3定义材料属性 47
6.2建立模型及分析受力 49
6.2.1两侧辊子的ANSYS分析 49
6.2.2求解及结果 55
6.2.3中间辊的ANSYS分析 60
6.2.4求解及结果 61
6.3结果分析(结论)66
参考文献 67
温馨提示:
1、题目前面的备注【字母数字编号】为本站整理分类的编号,与课题内容无关,请选题时忽视;
2、若题目上备注三维,则表示文件里包含三维源文件,由于三维组成零件数量较多,为保证预览截图的简洁性,本站将三维文件夹进行了打包。三维及CAD预览截图,均为本站电脑打开软件进行截图的,保证能够打开,下载原件超高清,下载后解压即可;
3、本站所有资源如无特殊说明,都需要本地电脑安装Office2007。图纸软件为AutoCAD,PROE,UG,SolidWorks,CATIA等;
4、本站所有图文资料仅供用户学习参考,不作为任何商用或其他用途;
5、本站不保证下载资源的准确性、安全性和完整性, 不包修改,不支持退换,同时也不承担用户因使用这些下载资源对自己和他人造成任何形式的伤害或损失;
6、 下载文件中如有侵权或不适当内容,请与我们联系,我们立即纠正。