

作品包括:
Word版设计说明书1份,共21页,约11000字
任务书一份
CAD版本图纸,共8张
摘要
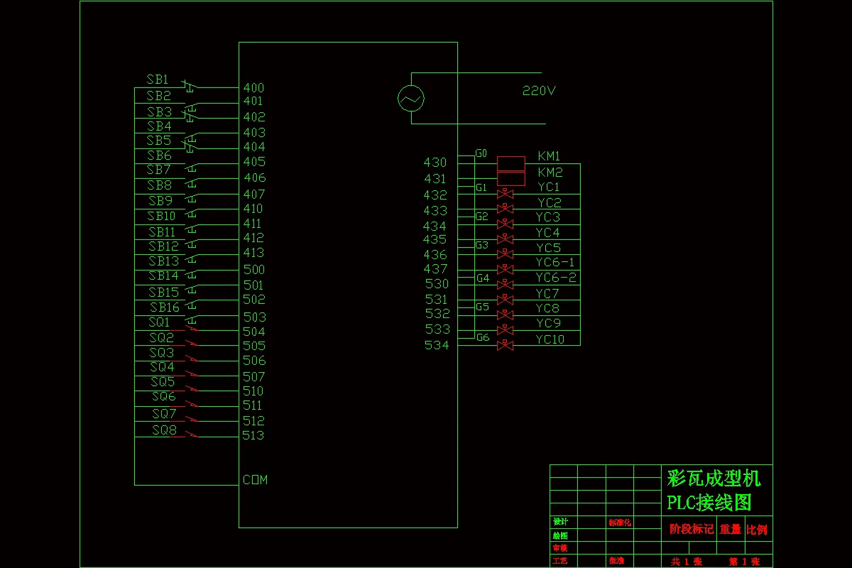
彩瓦成型机是水泥彩瓦的主要设备,工序较复杂,用常规控制较难实现,采用了PLC进行控制,实现了系统自动、手动控制功能。系统共有26点入,13点出,还有2路压力信号(模拟量)需要采集,采用了南京冠德公司的嘉华JH-120H系列PLC,由于系统工艺的复杂性、工艺的特殊性,而且条件的限制,所以采用了先画电器图,再画梯形图的方法来完成整个程序的编写过程的。本书介绍了整个设计的电气控制图,梯形图,时序图,接线图,流程图和PLC程序,该设计运用了灯泡来实现整个实验的模拟过程,在设计过程中,做了许多相关的实验,例如:单按起停电路的PLC设计,十字路口红绿灯的PLC设计。 关键词: 彩瓦成型机 PLC 电气控制
温馨提示:
1、题目前面的备注【字母数字编号】为本站整理分类的编号,与课题内容无关,请选题时忽视;
2、若题目上备注三维,则表示文件里包含三维源文件,由于三维组成零件数量较多,为保证预览截图的简洁性,本站将三维文件夹进行了打包。三维及CAD预览截图,均为本站电脑打开软件进行截图的,保证能够打开,下载原件超高清,下载后解压即可;
3、本站所有资源如无特殊说明,都需要本地电脑安装Office2007。图纸软件为AutoCAD,PROE,UG,SolidWorks,CATIA等;
4、本站所有图文资料仅供用户学习参考,不作为任何商用或其他用途;
5、本站不保证下载资源的准确性、安全性和完整性, 不包修改,不支持退换,同时也不承担用户因使用这些下载资源对自己和他人造成任何形式的伤害或损失;
6、 下载文件中如有侵权或不适当内容,请与我们联系,我们立即纠正。