

作品包括:
Word版设计说明书1份,共45页,约18000字
CAD版本图纸,共19张
SW三维图一套

摘要
为了有效解决国内现有大型草方格铺设机械在沙漠中造价昂贵、原理复杂的问题,开展芦苇草方格铺设装置的研究意义重大,可以为防风固沙行业的进一步发展提供机械基础。本文通过对国内外现有芦苇草方格铺设机械研究现状的分析,总结归纳其工作原理及发展趋势,比较分析设计一种中小型手推式防风固沙芦苇草方格铺设机械。
首先,分析了设备工作的主要工况和经典工作参数,根据分析内容初步选定了芦苇草方格铺放装置的大体外形、尺寸和功能实现方式,包括开沟机构、送料机构、插草机构、覆土机构和行走机构。并根据初步的设计内容,制定了实现该设备功能的技术路线。
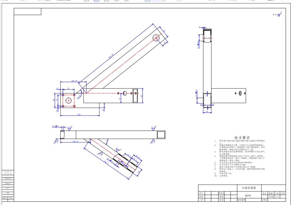
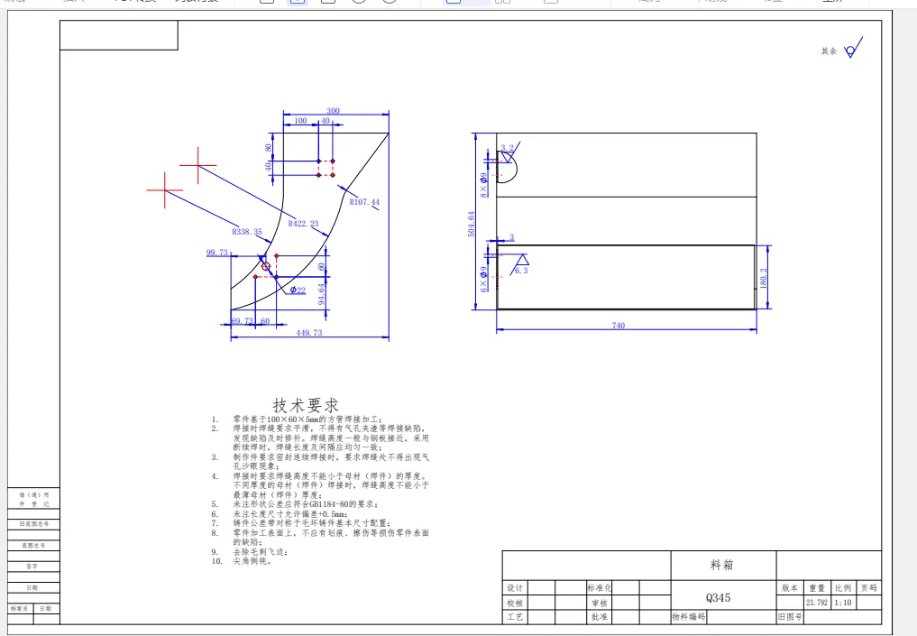
其次,对零件进行了精细化设计。开沟机构为芯铧式设计,由于芦苇的种植地土壤粘性较高,因此使用弧面式设计,中部的土壤能够被自动推开。开沟机构为可调整式,通过开口销对其开沟深度进行定位。为了节省成本,送料机自上而下由重力驱动,底部使用拨轮传动,拨轮由减速电机驱动。插草机构为圆盘式压草结构,此方式可实现芦苇草的大批量种植,且无需动力源,由圆盘与土壤的摩擦力驱动。覆土机构也为圆盘式,同样为无动机结构,由机架驱动。覆土圆盘与芦苇草方格铺放装置的行进方向呈35°放置,由此实现沟槽的回填。行走机构采用经典矩阵式设计,由单电机驱动,采用链轮设计。行走机构由后轮驱动,能防止田地间的陷车,行走机构前轮为铰链式非联动设计,能极大降低芦苇草方格铺放装置的转弯半径。
最后,使用有限元法验证了芦苇草方格铺放装置主承力部件的结构强度和受力变形程度。开沟器最大应力为59.13MPa,最大变形为0.000275mm;覆土圆盘最大应力为115.7MPa,最大变形为0.00038mm。两个组件的材料最大应力均未超过其屈服强度,且变形已经小于0.001mm,结构安全可靠,同时说明了结构和尺寸设计的有效性。
关键词:芦苇;草方格;自动化;传动;铺设装置
目录
摘要 I
Abstract II
第一章 绪论 5
1.1研究背景及意义 5
1.2芦苇草方格铺设装置的国内外研究现状 6
1.2.1 大型草方格铺设固沙车的研究现状 6
1.2.2 中小型草方格铺设机械的研究现状 9
1.3主要内容及技术路线 11
1.3.1主要内容 11
1.3.2技术路线 11
1.4本章小结 12
第二章 芦苇草方格铺设装置的总体方案的设计 13
2.1芦苇草方格铺设装置方案需求分析 13
2.2工作形式及黑箱分析 13
2.3芦苇草方格铺设装置方案设计 13
2.3.1开沟机构方案设计 13
2.3.2送料机构方案设计 14
2.3.3插草机构方案设计 15
2.3.4覆土机构方案设计 16
2.3.5行走机构方案设计 16
2.4整机方案工作原理 17
2.5总体方案评价 18
2.6本章小结 18
第三章 芦苇草方格铺设装置关键零部件的结构设计 19
3.1整机结构设计 19
3.2开沟机构的设计 19
3.2.1开沟器需求分析 19
3.2.2芯铧式开沟器结构设计 20
3.2.3开沟器固定及高度调整机构 21
3.3送料机构的设计 21
3.3.1料斗结构设计 21
3.3.2送料拨轮结构设计 22
3.3.3拨轮传动系统设计 23
3.4压草机构的设计 26
3.5覆土机构的设计 27
3.6行走机构的设计 29
3.6.1行走机构设计 29
3.6.2驱动电机选用 29
3.6.3传动选型与计算 31
3.7本章小结 32
第四章 关键零部件的结构安全校核 33
4.1开沟机构的有限元分析 33
4.1.1网格模型 33
4.1.2设计工况 34
4.1.3计算结果 35
4.2覆土机构的有限元分析 36
4.2.1网格模型 36
4.2.2设计工况 37
4.2.3计算结果 38
4.3本章小结 40
第五章 结论与展望 41
5.1结论 41
5.2展望 41
参考文献 42
致谢 44
温馨提示:
1、题目前面的备注【字母数字编号】为本站整理分类的编号,与课题内容无关,请选题时忽视;
2、若题目上备注三维,则表示文件里包含三维源文件,由于三维组成零件数量较多,为保证预览截图的简洁性,本站将三维文件夹进行了打包。三维及CAD预览截图,均为本站电脑打开软件进行截图的,保证能够打开,下载原件超高清,下载后解压即可;
3、本站所有资源如无特殊说明,都需要本地电脑安装Office2007。图纸软件为AutoCAD,PROE,UG,SolidWorks,CATIA等;
4、本站所有图文资料仅供用户学习参考,不作为任何商用或其他用途;
5、本站不保证下载资源的准确性、安全性和完整性, 不包修改,不支持退换,同时也不承担用户因使用这些下载资源对自己和他人造成任何形式的伤害或损失;
6、 下载文件中如有侵权或不适当内容,请与我们联系,我们立即纠正。