

作品包括:
Word版说明书1份,共38页,约12000字
CAD版本图纸,共6张
SW三维图一套
![1751203306417209.webp }ESD~04}AZAU{C5_XW]ALJC.webp](/static/upload/image/20250629/1751203306417209.webp)
摘要
本设备是一种小型上下楼梯搬运装置设计,旨在解决中层和高楼层的居民(特别是年纪大活动不便的人)带着东西爬上楼下楼十分困难的,同时,它还可以减少搬运货物的物流人员的负担。电动助力推动,既可以爬楼梯,也可以在平坦的道路上行走。
本设计首先对国内外市场上现有的助力爬楼装置进行简要分析,从中找出这些产品的不足。然后根据人们的功能需求,提出了一种适用于各种人群使用的多功能助力爬楼装置设计方案,并根据机械结构的设计方案和控制系统的应用进行了分析,同时还对小型上下楼梯搬运装置设计的速度,小车驱动力矩和强度计算。最后,通过应用sw进行了整车建模
(1)研究小型上下楼梯搬运装置设计,对不同设计进行分析对比,确定最后方案。
(2)详细设计了小型上下楼梯搬运装置设计的机械传动系统。
(3)完成通过sw的平台的三维模型装配,检查是否存在问题或干涉等。
结果表明,在合理的负载条件下,该装置无运动干涉,材料刚度和强度满足要求。因此,本工作的小型上下楼梯搬运装置能够保证安全,有比较快速的行驶能力,足以满足无电梯公寓楼快速行驶和安全爬坡的需要。
关键词 载物装置;多功能;爬楼;结构设计
目录
摘要 III
Abstract IV
1 绪论 5
1.1 选题背景 5
1.2 国内外研究现状 5
1.2.1 履带式 5
1.2.2 步进式 6
1.2.4 腿足式 7
1.3 研究意义 7
2 小型上下楼梯搬运装置设计方案的选择 8
2.1第一种方案的设计 8
2.2第二种方案的设计 9
2.3方案的确定 9
3 小型上下楼梯搬运装置设计的工作原理与分析 10
3.1工作原理 10
3.2特点 11
3.3设计方案分析 11
4 小型上下楼梯搬运装置的设计计算 11
4.1电动机的选择 11
4.2 蜗轮蜗杆传动系统的设计 12
4.2.1按接触疲劳强度设计 12
4.2.2确定传动的主要尺寸 15
4.3轴的设计计算 20
4.3.1主轴整体设计分析材料选择 20
4.3.2蜗杆轴的设计 21
4.4 键联接的校核强度 22
4.5销联接的强度校核 23
4.6蜗轮轴的轴承的选择和计算 24
5 小型上下楼梯搬运装置设计的总体设计 25
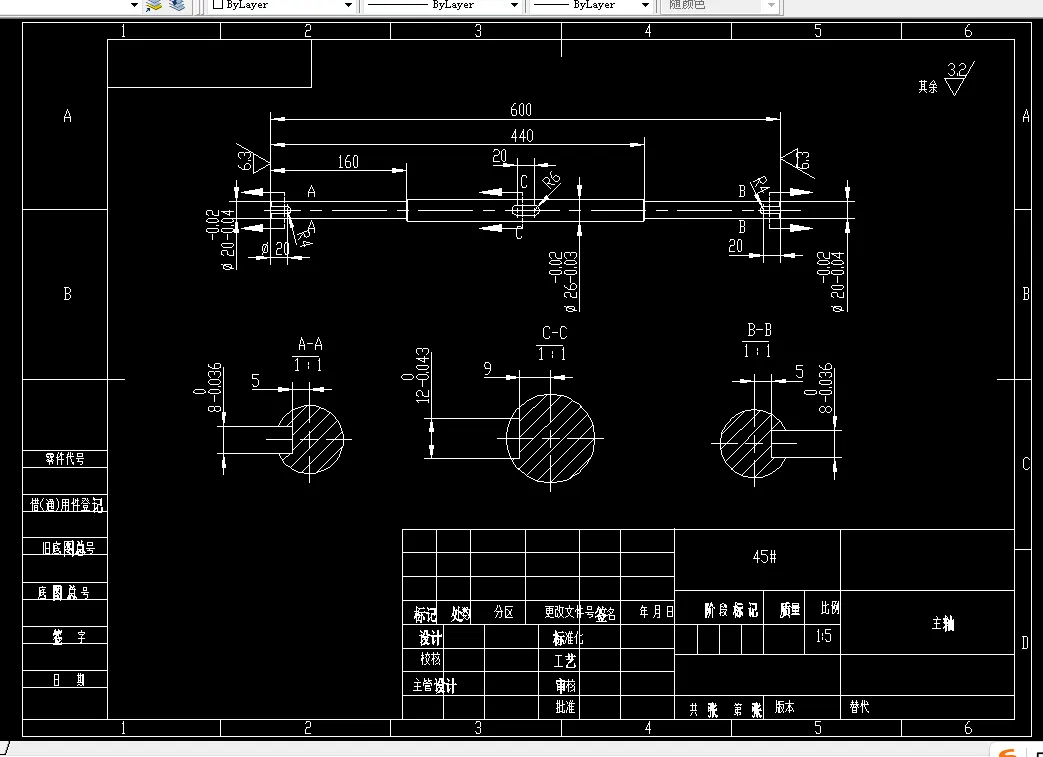
5 主轴制造工艺 29
5.1主轴加工要求 29
5.2工艺规程设计 30
5.3工艺方案的比较 30
5.4 本章小结 32
设计总结 32
致谢 34
参考资料 36
温馨提示:
1、题目前面的备注【字母数字编号】为本站整理分类的编号,与课题内容无关,请选题时忽视;
2、若题目上备注三维,则表示文件里包含三维源文件,由于三维组成零件数量较多,为保证预览截图的简洁性,本站将三维文件夹进行了打包。三维及CAD预览截图,均为本站电脑打开软件进行截图的,保证能够打开,下载原件超高清,下载后解压即可;
3、本站所有资源如无特殊说明,都需要本地电脑安装Office2007。图纸软件为AutoCAD,PROE,UG,SolidWorks,CATIA等;
4、本站所有图文资料仅供用户学习参考,不作为任何商用或其他用途;
5、本站不保证下载资源的准确性、安全性和完整性, 不包修改,不支持退换,同时也不承担用户因使用这些下载资源对自己和他人造成任何形式的伤害或损失;
6、 下载文件中如有侵权或不适当内容,请与我们联系,我们立即纠正。