

作品包括:
Word版说明书1份,共35页,约12000字
任务书一份
开题报告一份
外文翻译一份
CAD版本图纸,共10张

摘 要
在本文中,进行了马铃薯收获机的详细介绍和分析设计,我们设计组合,马铃薯联合收获机的分离。主要参数,收获机,机制设计,设计的很大一部分,优化,已选择已经设计计算和理论结构。土豆块茎繁殖地,收获,季节,天气等客观条件的产品有很大的关系。对于丰收的农民,这是本赛季,这种做法,因为这造成了极大的困难,长期的努力和劳动密集的收获土豆时,它需要。这些问题,实际的国家和国际研究和演示和土豆的现状,土豆收获的分析,为了解决设计巧妙应用模块。土豆收获机的主要参数是主要组件的设计,为理论计算大,合理的良好性能,出色的现代农业设计的一种新型的适应马铃薯生产的收获机解决劳动生产率的选择。
关键词:马铃薯;收获机;结构优化;机械化;
目 录
第1章 绪论 1
1.1马铃薯收获机的现状分析 1
1.2 马铃薯收获机的发展趋势 3
1.3设计工作 3
第2章 马铃薯收获机总体方案的设计 4
2.1 马铃薯的基本物理特性 4
2.2 总体结构的设计 5
2.3 工作过程原理 6
第3章 传动比的确定与减速器的选择 7
3.1 传动比的确定 7
3.2 减速器的选择 7
第4章 机械传动部分的设计 8
4.1 带轮的设计 8
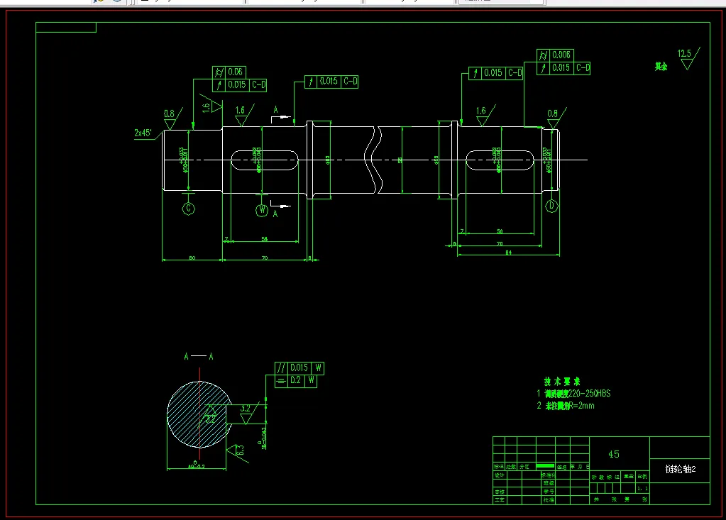
4.2 链轮的设计 12
4.2.1 链轮的设计目的 12
4.2.2 链轮的设计 12
4.2.3 链轮材料的选择 13
4.2.4 链轮机构的尺寸计算 13
4.3链轮轴的设计和校核 15
4.3.1 链轮轴的设计 15
4.3.2 链轮轴的校核 15
第5章 马铃薯收获机挖掘部件的设计 17
5.1 挖掘铲的构成 17
5.2 矿用挖掘机设计 17
第6章 分离部件的设计 19
6.1 分离输送器的机构及工作过程 19
6.2 杆条参数的确定 20
6.3 分离输送器线速度的确定 20
6.4 抖动轮的设计 21
6.4.1 抖动轮的功能 21
6.4.2 抖动轮的结构 21
6.4.3 抖动轮运转速度说明 21
第7章 其他部分的设计 23
7.1联轴器的选择及其轴的设计 23
7.1.1 联轴器的选择 23
7.1.2 联轴器上轴的设计 23
7.2 轴承座的设计及说明 23
7.2.1轴承座的作用 23
7.2.2 轴承座的设计 24
7.2.3 轴承座安装注意事项 24
7.2.4 轴承座的养护 24
7.3 端盖的设计说明 25
7.3.1 端盖的作用 25
7.3.2 端盖的设计 25
7.3.3 轴承端盖的安装说明 25
7.4 地轮的设计 25
7.5 机架部分的设计 26
结论 27
致 谢 28
参考文献 29
温馨提示:
1、题目前面的备注【字母数字编号】为本站整理分类的编号,与课题内容无关,请选题时忽视;
2、若题目上备注三维,则表示文件里包含三维源文件,由于三维组成零件数量较多,为保证预览截图的简洁性,本站将三维文件夹进行了打包。三维及CAD预览截图,均为本站电脑打开软件进行截图的,保证能够打开,下载原件超高清,下载后解压即可;
3、本站所有资源如无特殊说明,都需要本地电脑安装Office2007。图纸软件为AutoCAD,PROE,UG,SolidWorks,CATIA等;
4、本站所有图文资料仅供用户学习参考,不作为任何商用或其他用途;
5、本站不保证下载资源的准确性、安全性和完整性, 不包修改,不支持退换,同时也不承担用户因使用这些下载资源对自己和他人造成任何形式的伤害或损失;
6、 下载文件中如有侵权或不适当内容,请与我们联系,我们立即纠正。