

作品包括:
Word设计说明书1份,共39页,约14000字
开题报告一份
外文翻译一份
CAD版本图纸,共8张

摘要
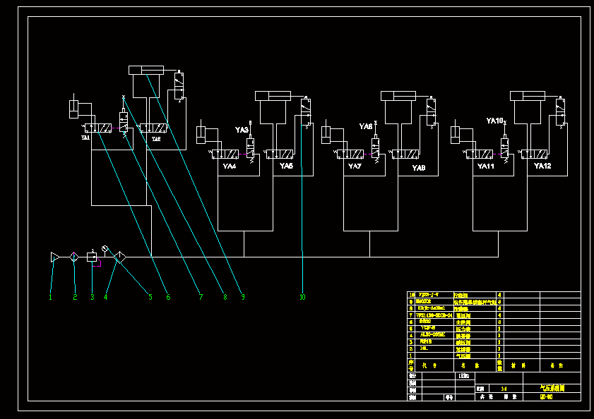
输送机是按照规定路线连续地或间歇地运送散料物料和成件物品的搬运机械。输送机系统是由两个以上输送机及其附件,组成一个比较复杂的工艺输送系统,完成物料的搬运、装卸、分拣等功能。本文设计了L型物料输送装置(即辊道输送机),由推送机构、提升机构完成转载任务,再配以气压控制及PLC电气控制,以此来实现物流的自动化作业,提升了物流管理水平与物流运作效率。
温馨提示:
1、题目前面的备注【字母数字编号】为本站整理分类的编号,与课题内容无关,请选题时忽视;
2、若题目上备注三维,则表示文件里包含三维源文件,由于三维组成零件数量较多,为保证预览截图的简洁性,本站将三维文件夹进行了打包。三维及CAD预览截图,均为本站电脑打开软件进行截图的,保证能够打开,下载原件超高清,下载后解压即可;
3、本站所有资源如无特殊说明,都需要本地电脑安装Office2007。图纸软件为AutoCAD,PROE,UG,SolidWorks,CATIA等;
4、本站所有图文资料仅供用户学习参考,不作为任何商用或其他用途;
5、本站不保证下载资源的准确性、安全性和完整性, 不包修改,不支持退换,同时也不承担用户因使用这些下载资源对自己和他人造成任何形式的伤害或损失;
6、 下载文件中如有侵权或不适当内容,请与我们联系,我们立即纠正。