

作品包括:
Word版说明书1份,共76页,约29000字
CAD版本图纸,共7张
摘 要
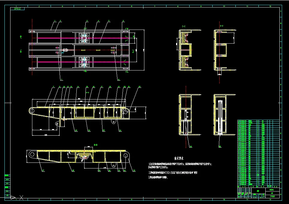
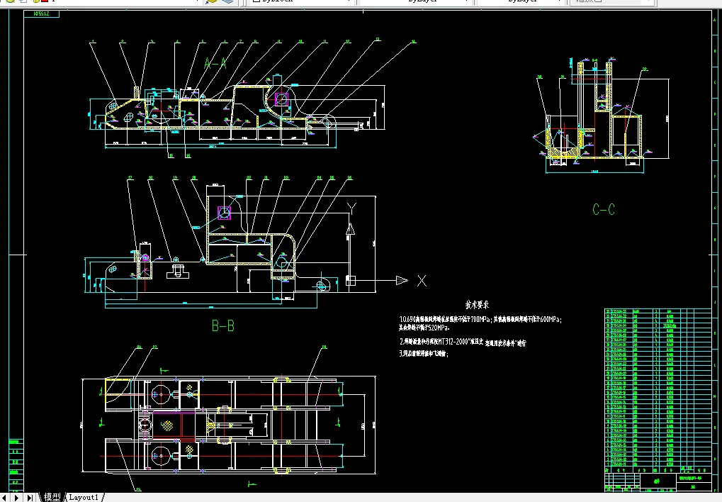
液压支架的出现,把回采工作面的支护技术从手工支护发展到机械化支护,它作为回采工作面的一种支护设备,在工作过程中能否取得良好的支护效果,取决于支架的架型,结构和相关参数。本课题主要讲述的是:首先,通过确定支架的四连杆机构各杆系的长度及其相对空间位置;然后,确定液压支架的性能参数;其次,通过二维软件AuotoCAD来进行结构设计以达到优化;接着,以力学模型为依据,分析了液压支架的顶梁、掩护梁、底座上载荷的作用机理,得到了较为合理的支架载荷的计算公式;再次,结合本次设计的支架,从平面和空间两方面对支架主要结构件进行受力分析;最后对支架主要结构件进行强度效核。
关键词:掩护式支架 四连杆优化设计 受力分析 强度校核
目录
1 绪 论 1
1.1我国液压支架的发展 1
1.2 液压支架的用途、分类和结构 2
1.2.1 液压支架的用途 2
1.2.2 液压支架工作状态及布置 2
1.2.3 液压支架结构型式及特点 3
1.3液压支架的组成 5
1.4液压支架的支护方式 5
1.5液压支架的工作原理 5
1.5.1支架升降和推移 6
1.5.2支架的承载过程 7
1.6采煤工作面液压支架设计要求和设计必要的基本参数 7
1.6.1 设计目的 7
1.6.2 对液压支架的基本要求 7
1.6.3 设计液压支架必需的基本参数 8
1.7本文做的主要工作 8
2 液压支架整体结构设计 9
2.1 支架主要尺寸的确定 9
2.1.1支架的高度和支架的伸缩比 9
2.1.2支架间距和宽度的确定 10
2.2底座长度的确定 10
2.3顶梁长度的确定 10
2.3.1支架工作方式对顶梁长度的影响 11
2.3.2顶梁长度计算 11
2.4 四连杆机构的确定 11
2.4.1四连杆机构的几何算法 11
3 液压支架部件设计 14
3.1 顶梁 14
3.1. 1 主要作用 14
3.1.2 结构型式 14
3.1.3 顶梁结构和断面形状 15
3.2顶梁侧护板 16
3.3底座 17
3.4推移装置 18
3.5立柱和千斤顶的设计 20
3.5.1 立柱的类型 21
3.6喷雾降尘系统的设计 21
3.6.1喷雾降尘系统的组成 21
3.6.2设计原则 21
3.7液压系统的设计 21
3.7.1液压系统的特点 21
4 立柱结构设计和强度计算 23
4.1立柱类型的选择及其结构 23
4.2双伸缩立柱缸径的确定 23
4.3安全阀压力的确定 24
4.4泵站压力的确定 24
4.5立柱初撑力的计算 24
4.6立柱工作阻力的计算 25
4.7立柱缸体壁厚的计算 25
4.8立柱强度和稳定性验算 26
4.8.1立柱行程的确定 26
4.8.2缸筒壁厚的验算 26
4.8.3立柱稳定性验算 27
5 液压支架受力分析 30
5.1概述 30
5.1.1支架工作状态 30
5.1.2计算载荷的确定 30
5.2支架受力分析与计算 31
5.2.1 立柱柱窝位置的确定 31
5.2.2 平衡千斤顶位置的确定 33
5.2.3 受力分析 35
5.3顶梁的载荷分布 38
5.4底座接触比压 39
5.5 前梁千斤顶参数的确定 40
5.6 推移千斤顶参数的确定 41
5.7 侧推千斤顶参数的确定 42
6 液压支架强度计算 43
6.1强度条件 43
6.2顶梁强度校核 44
7液压支架防倒防滑及调架装置的设计研究 47
8液压支架的研究途径和现代设计方法 48
8.1液压支架的研究途径 48
8.2液压支架现代设计方法 48
8.3液压支架的操作和维护 49
8.3.1 液压支架的操作维护要求 49
8.3.2 液压支架的操作管理事项 50
8.3.3 液压支架维护和管理的具体内容 50
8.3.4 本次设计存在的问题 51
在煤矿矿井工作面实现液压支架的远程控制 60
简介 60
内容描述 61
结论 65
温馨提示:
1、题目前面的备注【字母数字编号】为本站整理分类的编号,与课题内容无关,请选题时忽视;
2、若题目上备注三维,则表示文件里包含三维源文件,由于三维组成零件数量较多,为保证预览截图的简洁性,本站将三维文件夹进行了打包。三维及CAD预览截图,均为本站电脑打开软件进行截图的,保证能够打开,下载原件超高清,下载后解压即可;
3、本站所有资源如无特殊说明,都需要本地电脑安装Office2007。图纸软件为AutoCAD,PROE,UG,SolidWorks,CATIA等;
4、本站所有图文资料仅供用户学习参考,不作为任何商用或其他用途;
5、本站不保证下载资源的准确性、安全性和完整性, 不包修改,不支持退换,同时也不承担用户因使用这些下载资源对自己和他人造成任何形式的伤害或损失;
6、 下载文件中如有侵权或不适当内容,请与我们联系,我们立即纠正。