

作品包括:
Word版说明书一份,26页,约11000字
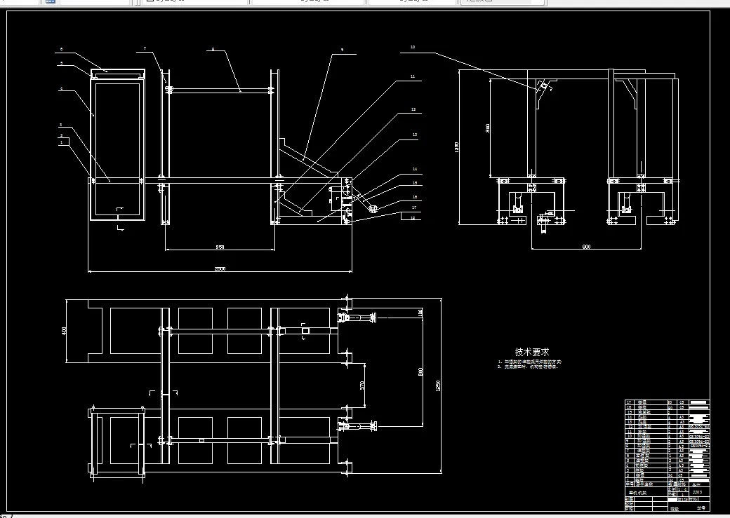
CAD版本图纸,共8张
目 录
目录 1
中文摘要 3
Abstract 3
第1章 绪论 4
1.1 可行性分析 4
1.2 研究开发的内容、方法、技术路线 4
1. 3 项目的特色和创新之处 4
1. 4 拟定技术路线以及工艺流程 5
第2章 软件简介 6
2.1 CAD技术应用概况 6
2.2 Pro/E简介 6
2.3 AutoCAD简介 7
第3章 总体机构的设计 8
3. 1 行走机构的设计 8
3. 2 整地机构的设计 8
3.2.1 铧的选择与计算 8
3.2.2 中耕追肥机的选择与计算 9
3.2.3 悬挂机构的选择 11
3.2.4 施肥工具的选择与计算 11
3.2.5 发动机的选择与布局 13
3.2.6重量参数 13
3.2.7 整体布局 13
第4章 主要零部件的设计 15
4.1 结构参数 15
4.1.1 履带拖拉机的履带接地长度与宽度 15
4.1.2 轨距 15
4.1. 3 间隙 15
4.1.4 整机参数-------------------------------------------------------------------15
4.1.5 拖拉拖机基本性能的计算----------------------------------------------16
4.1.6 稳定性的计算-------------------------------------------------------------17
4. 2 行走机构零件的设计 18
4.2.1履带的总体结构 18
4.2.2驱动轮的设计 19
4.2.3履带的选择 19
4.2.4支重轮和托轮 20
4.2.5张紧轮和张紧缓冲装置的设计 21
4.2.6犁的结构设计 22
4.2.7液压元件的选择 22
总 结 24
鸣 谢 24
参考文献 25
整机三维图 26
摘要
本文是关于甘蔗中耕田管机的改进设计,其重点是要解决犁沟、除草、施肥、喷药、培土等一系列农艺要求,目的是要实现田管机在整体结构现代化、功能布局合理、重量降低、强度增加,同时使行走机构在结构与参数上更加合理。本设计运用计算机辅助制造设计,分为实体设计和实体加工制造,前者是对目前机器的各重要零部件的改进设计,后者是用Pro/E将零件生成3D实体,并转化为工程图,进行实际生产。
关键词:改进设计;实体设计;实体加工;计算机辅助制造设计;Pro/E。
温馨提示:
1、题目前面的备注【字母数字编号】为本站整理分类的编号,与课题内容无关,请选题时忽视;
2、若题目上备注三维,则表示文件里包含三维源文件,由于三维组成零件数量较多,为保证预览截图的简洁性,本站将三维文件夹进行了打包。三维及CAD预览截图,均为本站电脑打开软件进行截图的,保证能够打开,下载原件超高清,下载后解压即可;
3、本站所有资源如无特殊说明,都需要本地电脑安装Office2007。图纸软件为AutoCAD,PROE,UG,SolidWorks,CATIA等;
4、本站所有图文资料仅供用户学习参考,不作为任何商用或其他用途;
5、本站不保证下载资源的准确性、安全性和完整性, 不包修改,不支持退换,同时也不承担用户因使用这些下载资源对自己和他人造成任何形式的伤害或损失;
6、 下载文件中如有侵权或不适当内容,请与我们联系,我们立即纠正。