

作品包括:
word版设计说明书一份,53页,约14000字
CAD版本图纸,共8张
摘要
工业化初期由于盲目扩大生产,金属浪费现象严重,而回收利用较少,废金属对环境的污染与日剧增。随着我国经济增长方式由粗放型向集约型的转变和人们环保意识的增强,市场对废金属处理的设备需求将越来越大。为了实现对废金属的有效回收,以及再利用,对有效处理废金属的压块机研究已引起了众多人的兴趣。
该液压废金属压块机用于常态下冷压各种厚度在3mm以下的废金属边角料,废钢屑,废油箱,解体汽车壳等金属废料。冷压成块状,便于储运或投炉。本机带有快送装置,大幅度提高工效。
该液压废金属压块机是集液压控制和电气控制为一体,液压缸在侧压板上的按照均布对称布置,以此实现了液压缸推动压板做圆弧形轨迹的运动。并且整个压块机由液压缸顺序动作推动压板、压头,提升门,实现了动作的一贯连续性。
该压块机的设计参数:料箱尺寸:2000*1000*500mm
压块尺寸:500*500*300
公称压力:1000KN
液压系统压力:25MPa
该液压废金属压块机体积小,操作方便,不但具备多种使用要求,而且大大提高了废金属回收的效率。
关键词:液压,废金属,压块机,回收
目录
摘 要……………………………………………………………………………… I
Abstract(英文摘要)………………..……………………………..…………….. Ⅱ
目 录…………………………………………………………………………… Ⅲ
第一章 引 言……………………………………………………………... 1
第二章 液压废金属压块机结构设计……………………………………… 3
2.1 压块机的工作原理设计…………………………………………………… 3
2.2 确定压块机的设计原则…………………………………………………… 3
2.3 压块机的总体结构………………………………………………………… 3
2.4 压块机的压板设计………………………………………………………… 3
2.5 压块机的机身设计………………………………………………………… 4
2.6 压块机各零部件设计……………………………………………………… 4
2.6.1 门的设计………………………………………………………………..... 4
2.6.2机架设计的准则………………………………………………………….. 4
第三章 液压控制系统设计……………………………………………………… 5
3.1根据压块机动作原理设计液压控制系统原理图…………………………. 5
3.1.1 设计思路………………………………………………………………… 5
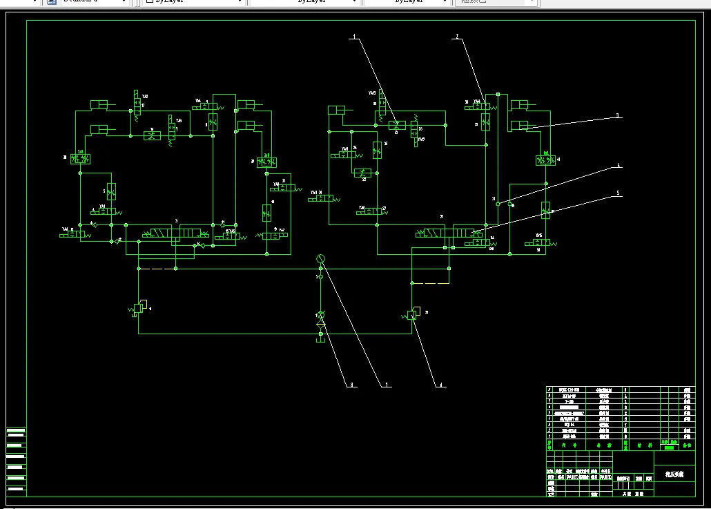
3.1.2 液压控制系统原理图…………………………………………………… 6
3.1.3 液压控制系统回路 ……………………………………………………. 7
3.2根据给定的参数及使用要求选取液压元件的型号,规格………………. 8
3.3液压泵的选择………………………………………………………………. 9
3.3.1 确定液压泵的最大工作压力…………………………………………. 9
3.3.2确定液压泵的流量……………………………………………....... 9
3.3.3选择液压泵的规格………………………………………………… 10
3.3.4 确定液压泵的驱动功率………………………………………………… 11
3.4 电动机的选取………………………………………………………… 11
3.5 油箱的设计………………………………………………………………… 12
3.6联轴器的选取……………………………………………………………… 13
3.7液压阀,压力表的安装…………………………………………………..... 13
3.8管子内径的计算 …………………………………………………………… 13
3.9 液压泵站的设计………………………………………………………….... 15
第四章 液压缸的安装布局及设计……………………..…………………. 16
4.1 四个通过支架联接在压板上测液压缸的设计及其计算………………… 16
4.1.1 在压板上液压缸的布局设计.................................................................... 16
4.1.2 压力P…………………………………………………………………… 17
4.1.3缸筒设计及计算………………………………………………...……… 17
4.1.4缸筒壁厚 的计算………………………………………………………... 18
4.1.5缸筒外径的计算 …………………………….…………………………. 18
4.1.6缸筒壁厚的验算………………………………….……………………….. 18
4.1.7活塞杆的设计及其计算………………………….……………………….. 19
4.1.8 为最小导向长度的确定……………………….……………………….. 20
4.1.9支承环的选用……………………………………….…………………….. 21
4.1.10活塞设计…………………………………………….…………………… 22
4.1.11液压缸进出油口采用螺纹连接……………………………………….… 23
4.1.12密封件的选用………………………………………………………….… 23
4.1.13防尘圈的选用…….………………………………………………… 25
4.2 通过压头进行推压的主液压缸的设计及其计算………………………. 26
4.2.1 主液压缸的设计………………………………………………….. 26
4.2.2 压力P……………………………………………………………… 26
4.2.3缸筒设计及其计算………...……………………………….………. 26
4.2.4缸筒壁厚 的计算……...…………………………………………… 27
4.2.5缸筒外径的计算 …………..…………………………………………. 27
4.2.6缸筒壁厚的验算………………………………………………………... 27
4.2.7活塞杆的设计及其计算………………………………………….……. 28
4.2.8 为最小导向长度的确定…………………………………….………. 29
4.2.9支承环的选用………………………………………………………….. 30
4.2.10活塞设计……………………………………………………………..... 31
4.2.11液压缸进出油口采用螺纹连接……………………………………… 31
4.2.12密封件的选用…………………………………………..……………... 31
4.2.13防尘圈的选用…………………………………………………….. 34
4.3 提升门的两个开门液压缸的设计及其计算…………………………… 35
4.3.1开门液压缸的设计………………………………………………… 35
4.3.2 压力P…………………………………………………………… 35
4.3.3 缸筒设计及其计算……………………………………………….. 36
4.3.4缸筒壁厚 的计算……………………………………………..…. 36
4.3.5缸筒外径的计算 ……………………………………………….…… 37
4.3.6缸筒壁厚的验算………………………………………………….…… 37
4.3.7 活塞杆的设计及其计算…………………………………..……………... 37
4.3.8 为最小导向长度的确定………………………………..……………... 38
4.3.9支承环选用…………………………………………..……………... 39
4.3.10 活塞设计…………………………………………………………….. 40
4.3.11 液压缸进出油口采用螺纹连接……………………………………. 40
4.3.12 密封件的选用……………………………………………………….. 41
4.3.13防尘圈的选用……………………………………………………. 44
第五章 电气控制系统设计....................................................... 45
5.1 选起动电路……………………………………………………………… 45
5.2 压块机电气控制系统图……………………………………………… 46
5.2.1 设计要点……………………………………………………….. 46
5.2.2 电气控制系统图………………………………………………. 46
5.3 电磁铁线圈的得电顺序……………………………………………. 47
5.4 电磁铁得失电,液压缸动作过程…………………………………......... 47
5.5 PLC语句表……………………………………………………………………50
总结………………………………………………………………….…………………….… 51
参考文献………………………………………………………………………… 53
致谢及声明……………………………….……………………………………… 54
温馨提示:
1、题目前面的备注【字母数字编号】为本站整理分类的编号,与课题内容无关,请选题时忽视;
2、若题目上备注三维,则表示文件里包含三维源文件,由于三维组成零件数量较多,为保证预览截图的简洁性,本站将三维文件夹进行了打包。三维及CAD预览截图,均为本站电脑打开软件进行截图的,保证能够打开,下载原件超高清,下载后解压即可;
3、本站所有资源如无特殊说明,都需要本地电脑安装Office2007。图纸软件为AutoCAD,PROE,UG,SolidWorks,CATIA等;
4、本站所有图文资料仅供用户学习参考,不作为任何商用或其他用途;
5、本站不保证下载资源的准确性、安全性和完整性, 不包修改,不支持退换,同时也不承担用户因使用这些下载资源对自己和他人造成任何形式的伤害或损失;
6、 下载文件中如有侵权或不适当内容,请与我们联系,我们立即纠正。