

作品包括:
word说明书一份,共44页,约16000字
CAD版本图纸,共7张
工序卡一套
工艺过程卡一张
摘 要
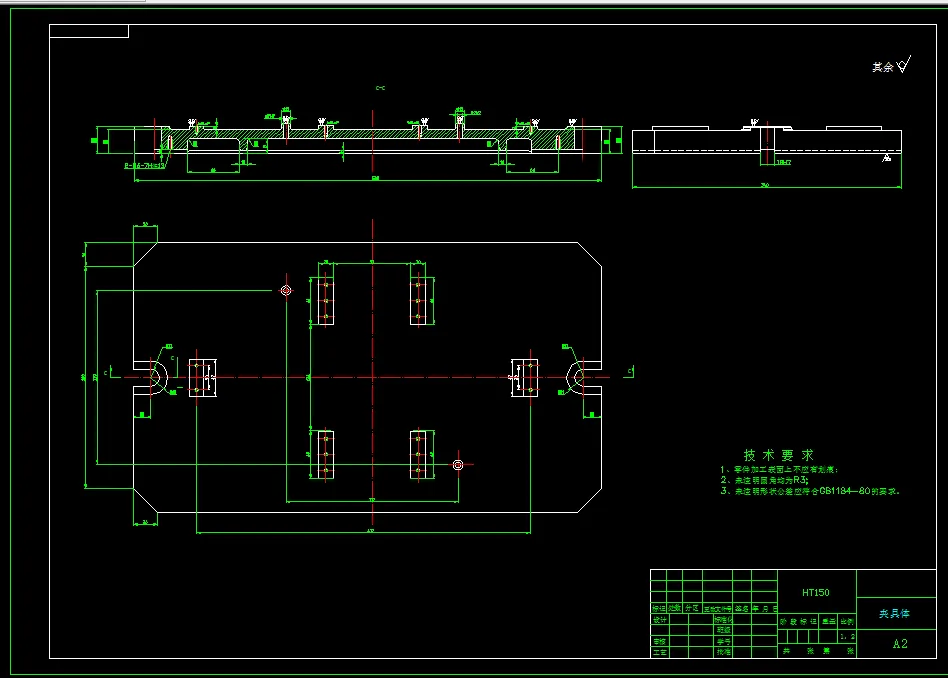
本文主要介绍机体工艺及铣削前后端面专用夹具设计。通过CAD软件完成对铣床夹具的设计制造。
设计的重点是选定零件铣床夹具,通过CAD设计软件对钻床夹具进行绘制设计,然后将各零件进行装配,完成设计,以及利用UG对夹具进行虚拟制造。因此本文要全面的多方位的介绍cad软件,并详细对各个零件的设计与绘制的过程。进行专用夹具的设计,选择设计出夹具的各个组成部件,如定位元件、夹紧元件、引导元件、夹具体与机床的连接部件以及其它部件;计算出夹具定位时产生的定位误差,分析夹具结构的合理性与不足之处,并在以后设计中注意改进。
关键词:机体,铣削前后端面,CAD软件,虚拟设计制造,夹具
目 录
摘 要 1
Abstract 2
第1章 绪论 5
1.1概述 5
1.2机械加工工艺流程 5
1.3夹具概述 6
1.4机床夹具的功能 6
1.5机床夹具的发展趋势 7
1.5.1机床夹具的现状 7
1.5.2现代机床夹具的发展方向 7
第2章 零件工艺的分析 9
2.1零件的工艺分析 9
2.2确定毛坯的制造形式 9
2.3箱体零件的结构工艺性 9
第3章 拟定箱体加工的工艺路线 10
3.1定位基准的选择 10
3.1.1精基准的选择 10
3.1.2基准的选择 10
3.2加工路线的拟定 10
第4章 机械加工余量,工序尺寸及毛坯尺寸的确定 13
第5章 确定切削用量及基本工时 14
第6章 铣前后端面的夹具设计 34
6.1 研究原始质料 34
6.2 定位、夹紧方案的选择 34
6.3切削力及夹紧力的计算 34
6.4 误差分析与计算 35
6.5定位销选用 36
6.6确定夹具体结构和总体结构 36
6.7 夹具设计及操作的简要说明 37
第7章 数控加工程序的编制 39
7.1 编程方法的选择 39
7.2 编程坐标系的确定 39
总 结 42
参 考 文 献 43
致 谢 44
温馨提示:
1、题目前面的备注【字母数字编号】为本站整理分类的编号,与课题内容无关,请选题时忽视;
2、若题目上备注三维,则表示文件里包含三维源文件,由于三维组成零件数量较多,为保证预览截图的简洁性,本站将三维文件夹进行了打包。三维及CAD预览截图,均为本站电脑打开软件进行截图的,保证能够打开,下载原件超高清,下载后解压即可;
3、本站所有资源如无特殊说明,都需要本地电脑安装Office2007。图纸软件为AutoCAD,PROE,UG,SolidWorks,CATIA等;
4、本站所有图文资料仅供用户学习参考,不作为任何商用或其他用途;
5、本站不保证下载资源的准确性、安全性和完整性, 不包修改,不支持退换,同时也不承担用户因使用这些下载资源对自己和他人造成任何形式的伤害或损失;
6、 下载文件中如有侵权或不适当内容,请与我们联系,我们立即纠正。