

作品包括:
word版本说明书一份,15页6300字
CAD版本图纸,共4张
PROE三维图纸一套
摘要
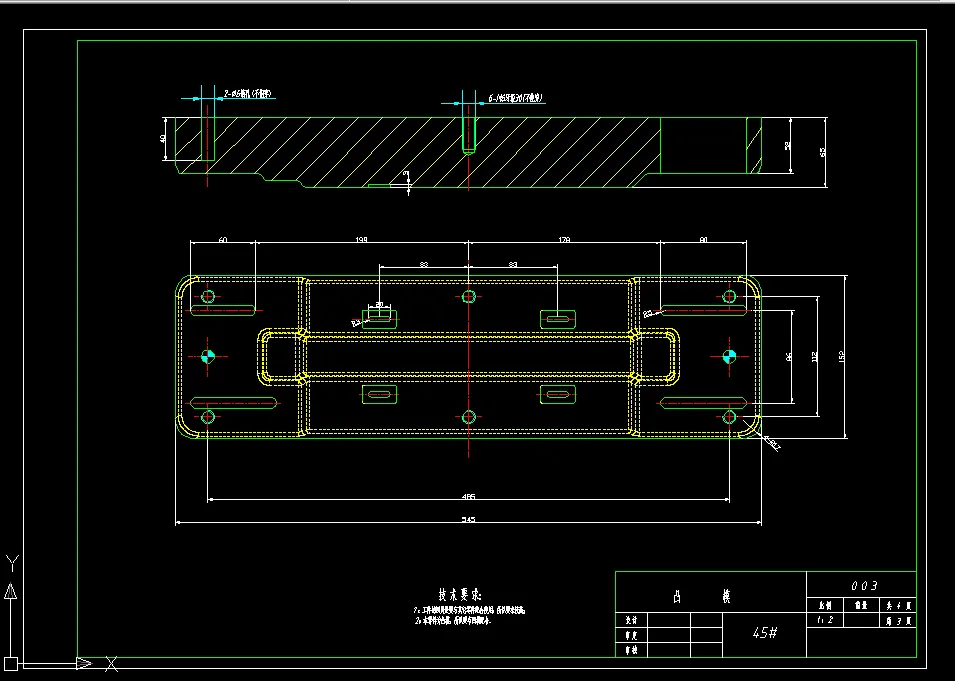
本零件是针对冰箱压缩机底板零件进行冲压成型的模具设计,主要内容有:零件特点和工艺分析;成型工艺方案的制定、分析、比较;凸模结构设计;凹模结构设计;卸料装置设计;模架设计等。设计综合了大学三年所学的机械制图、材料力学、金属工艺、测量与互换、冲压工艺与模具设计、CAD、Pro/e等课程。本次设计直接应用了《冲压工艺与模具设计》、CAD、Pro/e的知识。由于该产品是结合压形、冲孔、翻边翻孔、切边成形的复杂零件,所以四个安装卡位精度要求高,其它模具结构尽可能简单。通过这次设计,我们初步掌握了模具设计的一般流程和方法,提高了综合知识的运用、计算机辅助设计实操和解决实际问题的能力。
关键词 五金 模具 冲压模具设计
目录
1. 前言 …………………………………………………………………………1
2. 主要设计内容 …………………………………………………………………1
2.1 零件特点和工艺分析 ……………………………………………………1
2.1.1 零件分析 …………………………………………………………1
2.1.2 批量 …………………………………………………………………1
2.1.3 工件及其冲压工艺性分析 …………………………………………2
2.2 难点、成型质量控制………………………………………………………3
2.3 难点处理……………………………………………………………………3
2.4 零件制造方案制定…………………………………………………………3
2.5 冲压设备的选用……………………………………………………………4
2.5.1 压力机类型的选择……………………………………………………4
2.5.2 压力机行程的确定……………………………………………………4
2.5.3 冲裁力的计算…………………………………………………………4
2.5.4 卸料力的计算…………………………………………………………4
2.5.5 额定压力的确定 ……………………………………………………6
2.6 定位装置 …………………………………………………………………6
2.7 关于压力中心 ……………………………………………………………7
2.8 冲裁间隙的选取 …………………………………………………………7
2.8.1 冲裁间隙对冲裁件质量的影响 ……………………………………7
2.8.2 冲裁间隙值的确定 …………………………………………………8
2.8.3 定模具刃口尺寸及其制造公差设计原则……………………………8
2.9 模具工作部分尺寸选择 …………………………………………………8
2.9.1 冲裁凸凹模的设计原则 ……………………………………………9
2.9.2 凸模结构设计 ………………………………………………………9
2.10 导向机构…………………………………………………………………11
2.11 模架………………………………………………………………………12
2.12 卸料装置设计……………………………………………………………12
2.13 模具的工作过程………………………………………………………12
3、设备……………………………………………………………………………13
4、设计总结………………………………………………………………………13
参考文献 …………………………………………………………………………13
温馨提示:
1、题目前面的备注【字母数字编号】为本站整理分类的编号,与课题内容无关,请选题时忽视;
2、若题目上备注三维,则表示文件里包含三维源文件,由于三维组成零件数量较多,为保证预览截图的简洁性,本站将三维文件夹进行了打包。三维及CAD预览截图,均为本站电脑打开软件进行截图的,保证能够打开,下载原件超高清,下载后解压即可;
3、本站所有资源如无特殊说明,都需要本地电脑安装Office2007。图纸软件为AutoCAD,PROE,UG,SolidWorks,CATIA等;
4、本站所有图文资料仅供用户学习参考,不作为任何商用或其他用途;
5、本站不保证下载资源的准确性、安全性和完整性, 不包修改,不支持退换,同时也不承担用户因使用这些下载资源对自己和他人造成任何形式的伤害或损失;
6、 下载文件中如有侵权或不适当内容,请与我们联系,我们立即纠正。