

作品包括:
Word版说明书1份,共41页,约15000字
CAD版本图纸,共10张
UG三维图一份


摘要
塑料在工业快速发展,提出了质量好,加工精度高,开发周期短等注塑模具的设计和生产的要求越来越高,能够适应这种需求已成为模具制造企业发展的关键因素。
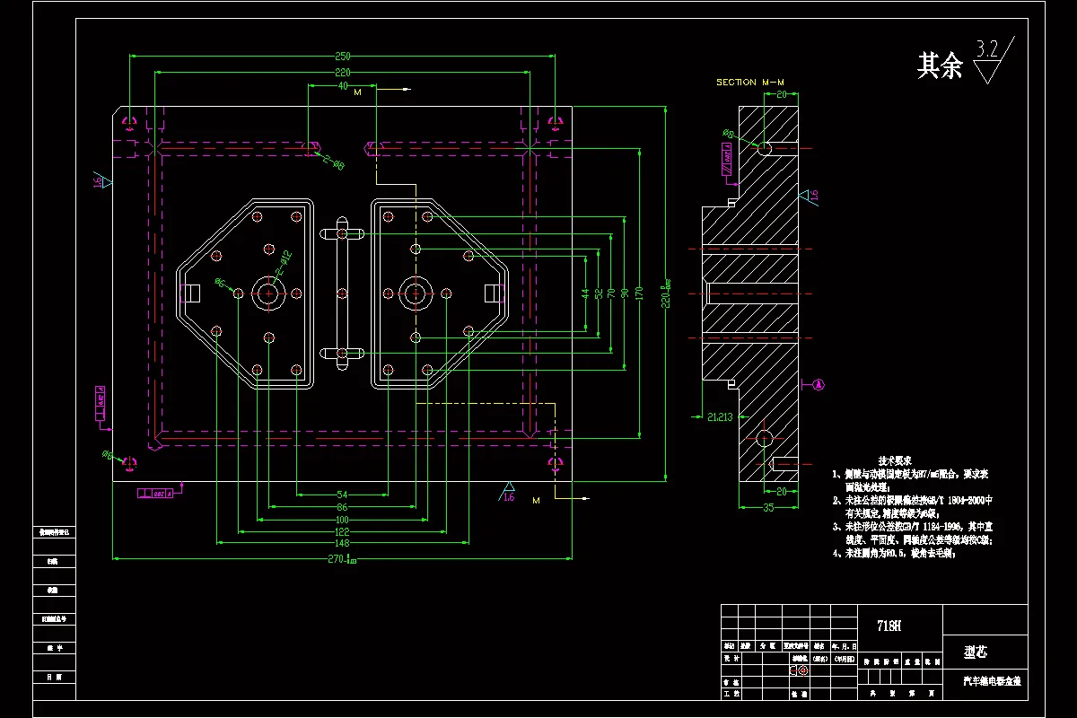
本次设计的是汽车继电器盒盖的注塑模具。所用材料是当前应用较为广泛的材料ABS。在设计中,分析塑件的工艺性。模具结构可采用一模两腔,侧浇口进料,注射机采用HTF 160X2A型号,并对其相关的数据进行校核。首先根据UG软件设计出分型面,进而设计出型腔、型芯及斜顶抽芯机构,通过各种手册选择标准模架的绘制,并且进行浇注系统、脱模机构、冷却系统等模具重要结构的设计。最后对设计过程中的相关零部件进行了计算和校核,在无误的基础上进行了模具总装,并利用AUTOCAD软件绘制出总装及各主要零件的二维工程图,设计出一套塑料注塑模具
此次设计的过程中查阅了大量的模具设计资料,通过汽车继电器盒盖塑料模具的设计与应用,实现了汽车继电器盒盖制作工艺上的突破,同原有的设计方法相比,模具的应用不但提高了生产效率而且提升了产品的质量,模具整体设计的思路和要求符合现代设计潮流和未来的发展方向
关键词:汽车继电器盒盖;一模两腔;侧浇口;冷却系统;注塑模具
目录
摘要I
Abstract II
1绪论1
1.1前言1
1.2模具发展现状及发展方向1
1.2.1国内外注塑模具的发展现状1
1.2.2国内外注塑模具的发展趋向3
2塑件结构分析4
2.1塑件材料的选择及成型性能分析5
2.2塑件的结构和尺寸精度表面质量分析5
2.2.1塑件的结构设计5
2.2.2塑件尺寸及精度6
2.2.3塑件表面粗糙度6
2.3计算塑件的体积、质量6
3塑件成型方案设计8
3.1分型面选择8
3.2型腔数的确定8
3.3型腔布局9
3.4浇注系统的类型和位置的选择9
3.5成型零件结构设计10
3.5.1型腔设计10
3.5.2型芯设计11
3.6脱模机构的设计12
3.6.1脱模机构的选用原则: 13
3.6.2推杆和扁顶杆推出机构设计13
3.6.3脱模力的计算14
3.7导向与定位机构设计15
3.8斜顶的设计17
3.9排气及引气系统的设计20
3.10模温调节系统的设计20
3.11模架选用22
3.12注塑模具的工作原理23
4模具零件设计25
4.1模具成型零件尺寸计算25
4.2模具强度与刚度校核25
4.3浇注系统的设计26
4.3.1主流道的设计26
4.3.2分主流道的设计27
4.3.3浇口的设计27
4.4模具冷却系统的设计28
5注射机的选用及相关参数的校核29
5.1相关参数29
5.2最大注塑量校核30
5.3锁模力校核31
5.4模具与注塑机安装部分相关尺寸校核32
5.5开模行程校核32
第6章模具材料的选用33
6.1成型零件材料选用33
6.2注射模用钢种33
总结34
致谢35
参考文献36
温馨提示:
1、题目前面的备注【字母数字编号】为本站整理分类的编号,与课题内容无关,请选题时忽视;
2、若题目上备注三维,则表示文件里包含三维源文件,由于三维组成零件数量较多,为保证预览截图的简洁性,本站将三维文件夹进行了打包。三维及CAD预览截图,均为本站电脑打开软件进行截图的,保证能够打开,下载原件超高清,下载后解压即可;
3、本站所有资源如无特殊说明,都需要本地电脑安装Office2007。图纸软件为AutoCAD,PROE,UG,SolidWorks,CATIA等;
4、本站所有图文资料仅供用户学习参考,不作为任何商用或其他用途;
5、本站不保证下载资源的准确性、安全性和完整性, 不包修改,不支持退换,同时也不承担用户因使用这些下载资源对自己和他人造成任何形式的伤害或损失;
6、 下载文件中如有侵权或不适当内容,请与我们联系,我们立即纠正。