

作品包括:
说明书1份,共28页,约12000字左右
CAD版本本图纸,共8张
支承盘注塑成型工艺与模具设计
摘要
我所学习的专业是模具设计与制造专业,这次的毕业设计是端盖产品造型与塑料模具设计。该设计结合大学三年来所学习的专业知识和CAD软件所设计出的一套塑料模。
本文首先简要的概述了塑料模在社会领域中的作用及其以后的发展方向,点明模具设计的重要意义。然后依据工件图进行工艺性分析,进而确定了设计方案,计算出模具工作部分的尺寸,设计出工作零部件;然后依据设计要求选择出各个标准零部件,然后设计出模具的总装配图。在设计中,最重要的就是设计方案的确定、坯料的计算和工作零部件的设计,这是设计的关键,这些设计的正确与否直接关系到成本的高低和设计模具能否正常工作;在设计的最后,总结了自己的心得和体会,并对我的指导老师表示感谢。
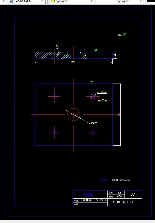
为了我的设计更加简明易懂,在设计中,我用了CAD软件画了七、八张零件图,安插在设计任务书中。最后画出一端盖塑料模装配图和主要工作零部件零件图若干张。
通过次毕业设计使我不仅掌握了塑料模具设计的一般流程,更学习到了好多课本上没有学习到的知识,使我受益非浅。
关键词:模具设计与制造、CAD软件、工艺性分析。
毕业设计/论文说明书目录
绪 论 1
第1章 任务来源及设计意义 5
1.1 设计任务来源 5
1.2 设计目的及意义 5
第2章 模塑工艺规程的编制 6
2.1 塑件的工艺性分析 6
2.2 计算塑件的体积和质量 7
2.3 塑件注塑工艺参数的确定 7
2.4 型腔数目的确定 8
第3章 注塑模的结构设计 9
3.1 分型面的选择 9
3.2 确定型腔的排列方式 9
3.3 浇注系统的设计 9
3.4 确定调温系统结构 12
3.5 确定排气系统的形式 12
3.6 确定脱模方式 12
3.7 选用标准模架------------------------------------------13
3.8 成型零件的结构设计---------------------------------13
3.9 结构与辅助零部件设计------------------------------13
第4章 模具设计的有关计算----------------------15
4.1 型腔及型芯工作尺寸的计算----------------15
4.2 型腔侧壁厚度和底板厚度计算--------------17
第5章 模具闭合高度的确定----------------------19
第6章 注塑机有关参数校核 -20
第7章 绘制模具总装图和非标准零件工作图---------21
第8章 注塑模主要零件加工工艺规程的编制---------22
第9章 模具的安装与调试-------------------------24
9.1 模具的安装 24
9.2 模具的调试 25
设计总结 26
致谢---------------------------------------------27
参考文献 28
温馨提示:
1、题目前面的备注【字母数字编号】为本站整理分类的编号,与课题内容无关,请选题时忽视;
2、若题目上备注三维,则表示文件里包含三维源文件,由于三维组成零件数量较多,为保证预览截图的简洁性,本站将三维文件夹进行了打包。三维及CAD预览截图,均为本站电脑打开软件进行截图的,保证能够打开,下载原件超高清,下载后解压即可;
3、本站所有资源如无特殊说明,都需要本地电脑安装Office2007。图纸软件为AutoCAD,PROE,UG,SolidWorks,CATIA等;
4、本站所有图文资料仅供用户学习参考,不作为任何商用或其他用途;
5、本站不保证下载资源的准确性、安全性和完整性, 不包修改,不支持退换,同时也不承担用户因使用这些下载资源对自己和他人造成任何形式的伤害或损失;
6、 下载文件中如有侵权或不适当内容,请与我们联系,我们立即纠正。