

作品包括:
Word版设计说明书1份
CAD版本图纸,共7张
UG三维图一套
摘要
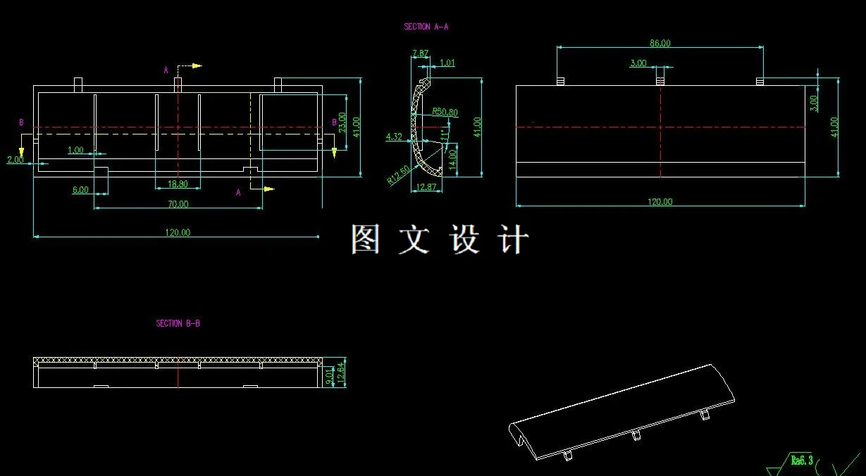
本次设计是以“电池盖外壳”塑件为原始文件,进行注塑模具设计。首选针对此塑件,进行结构分析,确定其塑件结构适合采用注塑模具结构生产,然后选择合适的高分子材料与型腔的出模数量。结合模具设计原则与设计规范,选择分型面并且分模完成成型系统零件设计,对浇注系统的设计方面,力求充填均匀,流道废料少、短。冷却系统均匀的分布在塑件的周边,使得温度冷却合理,在脱模顶出机构上,采用均匀分布顶出系统,让塑件能够均匀的受力顶出脱模。
温馨提示:
1、题目前面的备注【字母数字编号】为本站整理分类的编号,与课题内容无关,请选题时忽视;
2、若题目上备注三维,则表示文件里包含三维源文件,由于三维组成零件数量较多,为保证预览截图的简洁性,本站将三维文件夹进行了打包。三维及CAD预览截图,均为本站电脑打开软件进行截图的,保证能够打开,下载原件超高清,下载后解压即可;
3、本站所有资源如无特殊说明,都需要本地电脑安装Office2007。图纸软件为AutoCAD,PROE,UG,SolidWorks,CATIA等;
4、本站所有图文资料仅供用户学习参考,不作为任何商用或其他用途;
5、本站不保证下载资源的准确性、安全性和完整性, 不包修改,不支持退换,同时也不承担用户因使用这些下载资源对自己和他人造成任何形式的伤害或损失;
6、 下载文件中如有侵权或不适当内容,请与我们联系,我们立即纠正。