

作品包括:
Word版设计说明书1份
CAD版本图纸,共2张
UG三维图一份
摘要
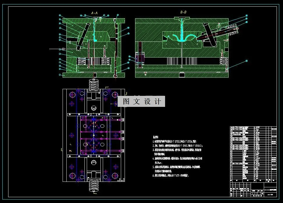
分析喷水壶嘴塑件的结构特点,叙述了该塑件成型工艺、注射模的结构和工作原理,其原理是:采用单分型面,用斜导柱外侧抽芯,型芯顶出零件,进料时采用侧浇口进料形式通过运用三维实体造型件对喷水壶嘴外形进行3D造型,同时也设计了其塑料外壳注塑模的3D模型;还确定分型面,决定采用一模二腔,侧浇口,进料的二板式模具。针对塑料一侧的凹孔,优化设计了侧向分型抽芯机构,并对该机构的加工工艺,使用效果进行了阐述。同时本文对成型零件,浇筑系统,脱模机构,侧向分型抽芯机构,和模导向机构,侧向分型抽芯机构,温度调节系统的设计进行了详细的介绍。
温馨提示:
1、题目前面的备注【字母数字编号】为本站整理分类的编号,与课题内容无关,请选题时忽视;
2、若题目上备注三维,则表示文件里包含三维源文件,由于三维组成零件数量较多,为保证预览截图的简洁性,本站将三维文件夹进行了打包。三维及CAD预览截图,均为本站电脑打开软件进行截图的,保证能够打开,下载原件超高清,下载后解压即可;
3、本站所有资源如无特殊说明,都需要本地电脑安装Office2007。图纸软件为AutoCAD,PROE,UG,SolidWorks,CATIA等;
4、本站所有图文资料仅供用户学习参考,不作为任何商用或其他用途;
5、本站不保证下载资源的准确性、安全性和完整性, 不包修改,不支持退换,同时也不承担用户因使用这些下载资源对自己和他人造成任何形式的伤害或损失;
6、 下载文件中如有侵权或不适当内容,请与我们联系,我们立即纠正。