

作品包括:
Word版说明书1份,共32页,约11000字
CAD版本图纸,共4张
UG三维图一份
![1733314451596569.webp R[XVV[PU9RRL`O]B}[`R`$6.webp](/static/upload/image/20241204/1733314451596569.webp)
摘 要
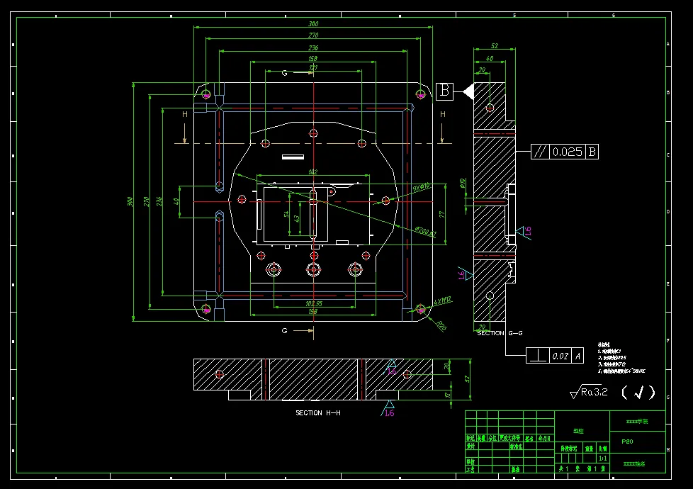
本文主要介绍的是闹钟后盖注塑模具的设计方法。首先分析了闹钟后盖制件的工艺特点,包括材料性能、成型特性与条件、结构工艺性等,并选择了成型设备。接着介绍了外壳注塑模的分型面的选择、确定的型腔数目及其布置情况,着重的描述了成型零件、浇注系统、导向机构、脱模机构以及冷却系统的设计过程。接着选择标准注塑模模架和模具材料,校核了注射机的相关工艺参数。最后阐述了模具的工作原理,以及对在安装调试的过程中有可能出现的问题进行分析与总结,并制定相适应的措施。
本文论述的闹钟后盖注塑模具采用二板式结构,采用一模一腔的型腔布置,最后利用推杆将制件推出,完成整个注塑过程。
关键词:外壳,注塑模,浇注系统,脱模机构
目 录
摘 要 I
目 录 II
第1章 绪论 1
第2章 外壳工艺性分析 2
2.1 材料性能 2
2.2 成型特性和条件 2
2.3 结构工艺性 3
2.4 零件体积及质量估算 3
3
2.5 外壳注塑工艺参数的确定 3
2.6 初选注射机的型号和规格 4
第3章 外壳注塑模具的结构设计 6
3.1 分型面的选择 6
3.2模具基本结构的确定 7
3.3型腔的数量和布局的确定 7
3.4浇注系统设计 7
3.4.1主流道的设计 8
3.4.3 浇口设计 8
3.4.4 冷料穴设计 9
3.5 注塑模成型零部件设计 9
3.5.1 型腔、型芯结构设计 9
3.5.2 成型零件工作尺寸计算 10
3.6 合模导向机构设计 14
3.7 脱模机构设计 15
3.7.1脱模力计算: 15
3.7.2脱模机构的确定及接触应力校核 15
3.8冷却系统设计 16
3.8.1冷却系统的设计原则 16
3.8.2冷却系统的设计计算 17
3.10 排气系统设计 18
3.11 模架及模具材料的选择 18
第4章 注射机相关参数校核 20
4.1 最大注射量的校核 20
4.2 注射压力校核 20
4.3 锁模力校核 21
4.4 模具厚度的校核 21
第5章 模具的工作原理及调试 22
5.1 模具的工作原理 22
5.2 试模 23
结 论 25
参考文献 26
致 谢 27
温馨提示:
1、题目前面的备注【字母数字编号】为本站整理分类的编号,与课题内容无关,请选题时忽视;
2、若题目上备注三维,则表示文件里包含三维源文件,由于三维组成零件数量较多,为保证预览截图的简洁性,本站将三维文件夹进行了打包。三维及CAD预览截图,均为本站电脑打开软件进行截图的,保证能够打开,下载原件超高清,下载后解压即可;
3、本站所有资源如无特殊说明,都需要本地电脑安装Office2007。图纸软件为AutoCAD,PROE,UG,SolidWorks,CATIA等;
4、本站所有图文资料仅供用户学习参考,不作为任何商用或其他用途;
5、本站不保证下载资源的准确性、安全性和完整性, 不包修改,不支持退换,同时也不承担用户因使用这些下载资源对自己和他人造成任何形式的伤害或损失;
6、 下载文件中如有侵权或不适当内容,请与我们联系,我们立即纠正。