

作品包括:
Word设计说明书1份,共32页,约15000字
开题报告一份
外文翻译一份
工艺卡一套
CAD版本图纸,共21张
Proe三维图一套
仿真加工文件一份

摘要
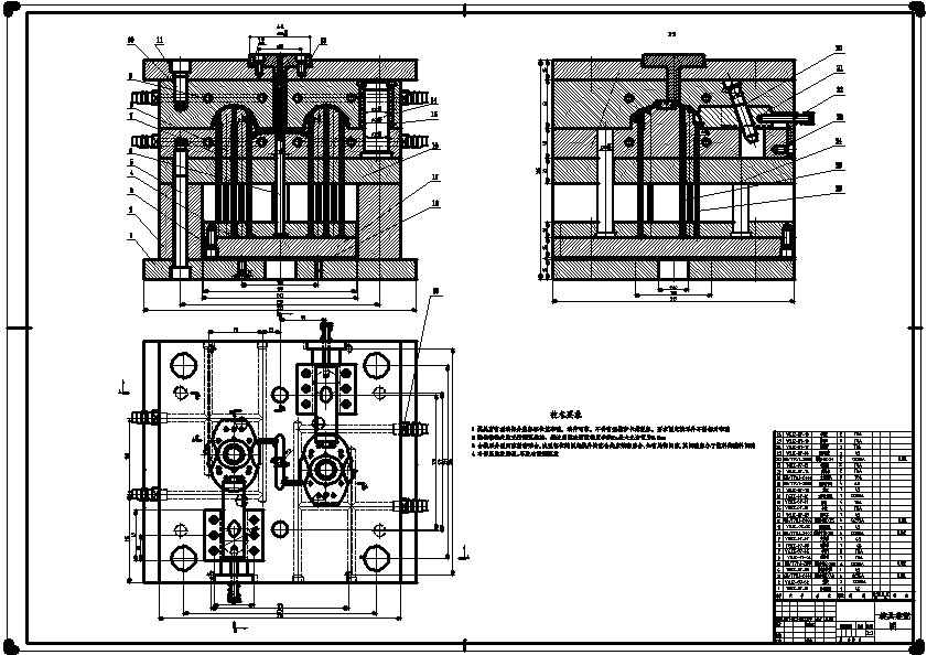
本课题是关于激光标线仪前盖模具设计及其型腔仿真加工。设计之前要对塑件制品进行测绘,得到塑件制品的尺寸数据。在设计该模具时,首先解决了抽芯的问题,考虑到夹角为20°的侧向抽芯机构所面临的导向、定位、锁紧问题。本模具依据厂方给定的注塑机型号和经济性确定型腔为一模两腔;为了不影响制品的外观,本设计采用潜伏式浇口;为使塑件能够快速均匀冷却,冷却流道布置为环绕式;其次,进行模具的各个零部件的具体设计。对成型部件和紧固件及各种支撑件进行外形尺寸设计和强度校核。为了降低模具的生产周期,提高生产效率,选择315 315的标准模架。
本设计对激光标线仪前盖型腔的加工工艺进行了分析,在Master CAM 9.0中完成刀具路径设定,确定数控加工代码,通过仿真加工确定是否满足加工要求。通过工艺性分析,检验了设计的可行性和经济性。
关键词:测绘;抽芯机构;注塑模具;加工仿真
目 录
1 前言 1
2 模具结构设计 3
2.1模具方案论证 3
2.2 激光标线仪前盖的测绘与造型 3
2.2.1激光标线仪前盖的测绘 3
2.2.2 激光标线仪前盖的造型 4
2.3 激光标线仪工艺分析 5
2.4型腔数目的确定 6
2.5分型面的确定 8
2.6浇注系统的设计 9
2.6.1浇口位置选择 9
2.6.2主流道设计 9
2.6.3分流道设计 10
2.7冷却系统的设计 11
2.7.1冷却水道设计的要点 11
2.7.2冷却系统的计算 11
2.7.3冷却水道在定模和动模中的位置 12
2.8侧向抽芯机构设计 13
2.9模架的选择 15
2.10总装配图及三维造型 16
2.10.1总装配图 16
2.10.2模具的三维造型 17
2.11 注塑机的校核 17
2.11.1额定锁模力校核 17
2.11.2模具高度与注塑机闭合高度的校核 18
2.11.3注塑机开模行程的校核 18
3 模具的型腔工艺分析及型腔仿真加工 19
3.1型腔的加工工艺分析 19
3.2型腔仿真加工 20
4 结论 26
参考文献 27
致 谢 28
附 录 29
温馨提示:
1、题目前面的备注【字母数字编号】为本站整理分类的编号,与课题内容无关,请选题时忽视;
2、若题目上备注三维,则表示文件里包含三维源文件,由于三维组成零件数量较多,为保证预览截图的简洁性,本站将三维文件夹进行了打包。三维及CAD预览截图,均为本站电脑打开软件进行截图的,保证能够打开,下载原件超高清,下载后解压即可;
3、本站所有资源如无特殊说明,都需要本地电脑安装Office2007。图纸软件为AutoCAD,PROE,UG,SolidWorks,CATIA等;
4、本站所有图文资料仅供用户学习参考,不作为任何商用或其他用途;
5、本站不保证下载资源的准确性、安全性和完整性, 不包修改,不支持退换,同时也不承担用户因使用这些下载资源对自己和他人造成任何形式的伤害或损失;
6、 下载文件中如有侵权或不适当内容,请与我们联系,我们立即纠正。