

作品包括:
Word设计说明书1份,共35页,约12000字
CAD版本图纸,共8张
UG三维图一份
摘要
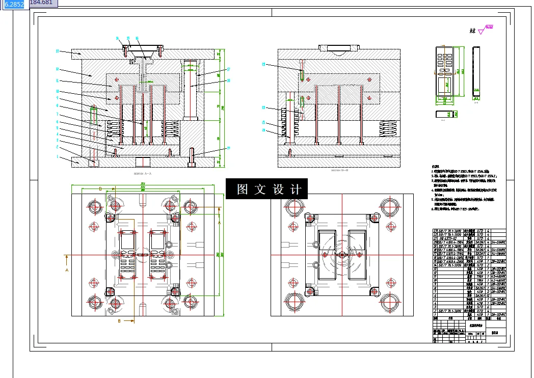
空调遥控器注塑模具设计 一模二腔,侧浇口两板式模架。提供三维(三维有UG8.5格式+STP通用格式)+二维装配图及主要零件图+设计文档( 35页 12788字)。本文对遥控器外壳塑料零件进行了详细及较为精准的分析。对零件的分型面的确定及选择,将采用一模二腔,侧浇注口进行填充。最后对设计模具中调节模具温度的水路选择了环形冷却水路,它的直径为8mm,所有模具构件设计完成后,进行干涉检查以及数据校核,通过整个三维设计使设计过程变得非常容易, 而且还可以及时发现一些设计中的问题,比如模具潜在问题,还有干涉及不合理这类失误。
温馨提示:
1、题目前面的备注【字母数字编号】为本站整理分类的编号,与课题内容无关,请选题时忽视;
2、若题目上备注三维,则表示文件里包含三维源文件,由于三维组成零件数量较多,为保证预览截图的简洁性,本站将三维文件夹进行了打包。三维及CAD预览截图,均为本站电脑打开软件进行截图的,保证能够打开,下载原件超高清,下载后解压即可;
3、本站所有资源如无特殊说明,都需要本地电脑安装Office2007。图纸软件为AutoCAD,PROE,UG,SolidWorks,CATIA等;
4、本站所有图文资料仅供用户学习参考,不作为任何商用或其他用途;
5、本站不保证下载资源的准确性、安全性和完整性, 不包修改,不支持退换,同时也不承担用户因使用这些下载资源对自己和他人造成任何形式的伤害或损失;
6、 下载文件中如有侵权或不适当内容,请与我们联系,我们立即纠正。