

作品包括:
Word版说明书1份,共40页,约19000字
任务书一份
开题报告一份
外文翻译一份
CAD版本图纸,共11张
SW三维图一份
摘 要
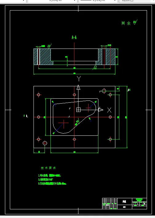
随着中国工业不断地发展,模具行业也显得越来越重要。本文针对侧板的冲裁工艺性,介绍了落料冲孔复合模设计加工方法。分析比较了成形过程的三种不同冲压工艺(单工序、复合工序和连续工序),确定用一幅复合模完成落料冲孔的工序过程。基本的要求是模具应能满足加工要求,保证制件精度;模具应运转平稳,工作可靠,结构简单,装卸方便,便于维修和调整;模具尽量用通用件以便降低制造成本。
本课题主要是冲压成型的工艺设计,也就是冲压模的工艺设计方案分析及确定工艺计算和模具结构设计计算等内容,且简要分析了坯料形状、尺寸,排样、裁板方案和冲压工序性质。进行了工艺力、压力中心、模具工作部分尺寸及公差的计算,并设计出模具。还具体分析了模具的主要零部件(如凸凹模、卸料装置、垫板、凸模固定板等)的设计与制造,冲压设备的选用等。列出了模具所需零件的详细清单,并给出了合理的装配图。为了提高生产效率,因此在设计时要力求结构简单,但是一定要保证其精度要求。在对制件分析的基础上完成了整副模具的设计,用CAXA软件完成了二维设计图纸的绘制,制件、模具零部件造型全部用SolidWorks2007软件完成同时考虑了零部件的加工。
关键词:模具;复合模;侧板;工艺;设计
目 录
引言 1
1 工艺分析 2
1.1 零件冲压工艺性分析 2
1.2 冲压工艺方案的确定 5
1.3 落料变形的三个阶段 7
1.4 冲裁间隙 8
1.4.1冲裁间隙的选用 8
1.4.2间隙对冲裁工作的影响 8
2 工艺设计 10
2.1 排样 10
2.1.1排样的意义 10
2.1.2搭边和条料宽度的确定 12
2.2 凸、凹模工作部分计算 14
2.2.1凸、凹模刃口尺寸计算原则 14
2.2.2刃口尺寸计算方法 15
2.2.3刃口尺寸计算 18
3 冲压力计算及冲裁设备的选择 19
3.1 冲压力的计算 19
3.1.1落料力和冲孔力的计算 20
3.1.2卸料力、推件力和顶件力的计算 20
3. 2 冲裁设备的选择 22
3.3 模具压力中心的确定 23
4 主要零件设计 23
4.1 工作零件 24
4.1.1冲孔凸模 24
4.1.2凸凹模 26
4.1.3落料凹模 26
4.2 导向零件 26
4.3 定位零件 27
4.4 卸料和推件装置 29
4.5 支承及夹持零件 30
5 模具总体结构 33
6 模具零件材料及加工工艺过程 34
6.1 模具零件材料及其热处理 34
6.2 主要零件加工工艺规程 35
7 结论 37
谢 辞 38
参考文献 39
温馨提示:
1、题目前面的备注【字母数字编号】为本站整理分类的编号,与课题内容无关,请选题时忽视;
2、若题目上备注三维,则表示文件里包含三维源文件,由于三维组成零件数量较多,为保证预览截图的简洁性,本站将三维文件夹进行了打包。三维及CAD预览截图,均为本站电脑打开软件进行截图的,保证能够打开,下载原件超高清,下载后解压即可;
3、本站所有资源如无特殊说明,都需要本地电脑安装Office2007。图纸软件为AutoCAD,PROE,UG,SolidWorks,CATIA等;
4、本站所有图文资料仅供用户学习参考,不作为任何商用或其他用途;
5、本站不保证下载资源的准确性、安全性和完整性, 不包修改,不支持退换,同时也不承担用户因使用这些下载资源对自己和他人造成任何形式的伤害或损失;
6、 下载文件中如有侵权或不适当内容,请与我们联系,我们立即纠正。