

作品包括:
Word版说明书1份,共45页,约19000字
任务书一份
开题报告一份
外文翻译一份
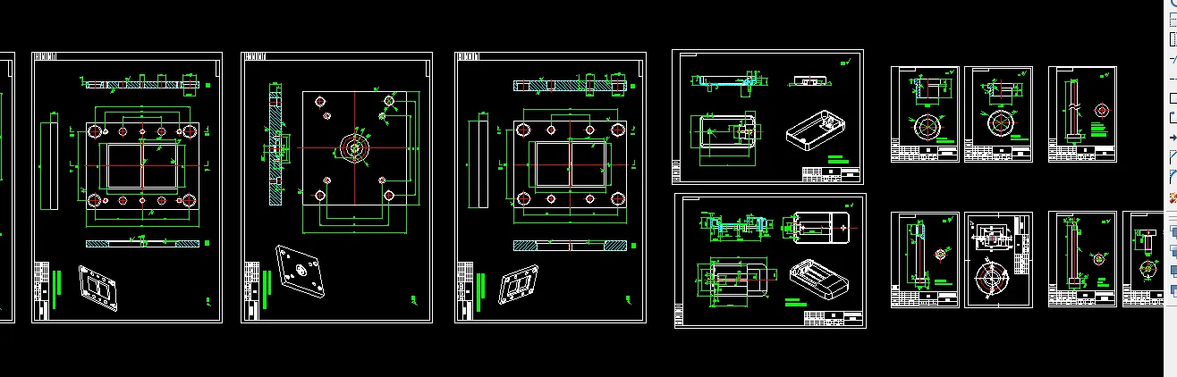
CAD版本图纸,共15张
摘 要
目前,在模具行业中随着以塑料代钢、以塑代木的发展和产品零件的精度和复杂程度的不断提高,塑料模的比例将不断提高,其精度和复杂程度也将随着相应提高,从而,塑料模的前景十分广阔。
本次设计的题目是:5号电池充电器底座注塑模设计。本次设计主要通过对塑件的材料、形状、外形尺寸及其表面精度要求来进行注射成型工业的可行性分析,塑件的成型工艺性主要包括塑件的壁厚及壁厚均匀性、加强筋、支撑面、圆角沟槽等。通过对以上可行性的分析确定模具的分型面、型腔数、浇口形式、浇口位置等;其中最为重要的是确定型芯和型腔的结构。此外还要分析模具受力,脱模机构,合模机构的设计,冷却系统的设计等。
为方便设计,该设计中还采用moldflow仿真塑料熔体在型腔内的充模流动和冷却过程分析,更直观的找出设计中可能存在的缺陷,优化了工艺方案及工艺参数,降低了缺陷出现的可能性。利用参数化实体造型的方法,为更加高速、快捷的造型、生产提供了一种切实可行的办法。
关键字:5号电池充电器底座;注塑模;moldflow仿真
目 录
引言 1
1.概述 2
1.1 5号电池充电器底座模具设计的流程 2
1.2 模具设计方案 3
2.产品零件的工艺分析 4
2.1 注塑材料的选取 4
2.2 塑件制件设计的工艺分析 7
2.2.1 尺寸和精度要求 7
2.2.2 脱模斜度 8
2.2.3 加强筋的设计 9
2.2.4计算塑件的体积和重量计算 9
3.注塑机选择 10
3.1 注射机初步选定 10
3.2 型腔数量的确定和校核 10
3.3 注射量校核 11
3.4 注射压力校核 12
3.5 最大投影面积校核 12
3.6 锁模力校核 13
3.7 注射机的安装尺寸校核 13
3.7.1喷嘴尺寸 13
3.7.2开模行程校核 13
4.模具设计 14
4.1 分型面的设计 14
4.2 浇注系统的原则 16
4.3 主流道的设计 16
4.4 分流道的设计 18
4.4.1分流道的布置 18
4.4.2分流道的长度和截面尺寸 19
4.5 浇口的设计 19
4.5.1浇口的作用 20
4.5.2浇口类型选择 20
4.5.3浇口位置的选择 21
4.6 排气系统设计 23
4.7 成型零件工作尺寸的计算 23
4.7.1上壳体型腔型芯成形零件尺寸计算 26
4.7.2下壳体型腔型芯成形零件尺寸计算 28
4.8 注塑模导向机构设计 30
4.8.1导柱结构设计 30
4.8.2导套结构设计 30
4.9 推出脱模机构设计 30
4.9.1推出零件设计 30
4.10 模温调节系统设计 32
4.10.1模具温度对塑件质量的影响 32
4.10.2模具温度对生产效率影响 32
4.10.3冷却系统设计原则 33
5.模架设计 33
6.模具工作过程分析 35
7.结语 36
谢 辞 37
参考文献 38
附录: 39
附表1 塑料制件公差数值表 39
附表2 几种常用塑料的收缩率 39
附表3 精度等级的选用(SJ1372-78) 40
温馨提示:
1、题目前面的备注【字母数字编号】为本站整理分类的编号,与课题内容无关,请选题时忽视;
2、若题目上备注三维,则表示文件里包含三维源文件,由于三维组成零件数量较多,为保证预览截图的简洁性,本站将三维文件夹进行了打包。三维及CAD预览截图,均为本站电脑打开软件进行截图的,保证能够打开,下载原件超高清,下载后解压即可;
3、本站所有资源如无特殊说明,都需要本地电脑安装Office2007。图纸软件为AutoCAD,PROE,UG,SolidWorks,CATIA等;
4、本站所有图文资料仅供用户学习参考,不作为任何商用或其他用途;
5、本站不保证下载资源的准确性、安全性和完整性, 不包修改,不支持退换,同时也不承担用户因使用这些下载资源对自己和他人造成任何形式的伤害或损失;
6、 下载文件中如有侵权或不适当内容,请与我们联系,我们立即纠正。