

作品包括:
Word版说明书一份,15页,约6600字
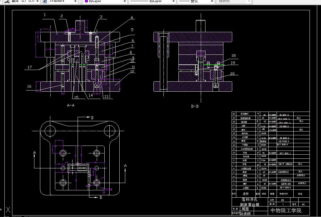
CAD版本图纸,共11张
目 录
第一章 设计任务————————————————3
1.1零件设计任务———————————————3
1.2分析比较和确定工艺方案——————————3
第二章 计算冲裁压力、压力中心和选用压力机———5
2.1排样方式的确定及材料利用率计算——————5
2.2计算冲裁力、卸料力————————————5
2.3确定模具压力中心—————————————6
第三章 模具工作部分尺寸及公差—————————7
3.1冲孔部分—————————————————7
3.2落料部分—————————————————7
第四章 确定各主要零件结构尺寸—————————9
4.1凹模外形尺寸确定—————————————9
4.2其他尺寸的确定——————————————9
4.3合模高度计算———————————————9
第五章 模具零件的加工—————————————9
第六章 模具的装配———————————————10
第七章 压力机的安全技术措施——————————12
参考文献————————————————————14
温馨提示:
1、题目前面的备注【字母数字编号】为本站整理分类的编号,与课题内容无关,请选题时忽视;
2、若题目上备注三维,则表示文件里包含三维源文件,由于三维组成零件数量较多,为保证预览截图的简洁性,本站将三维文件夹进行了打包。三维及CAD预览截图,均为本站电脑打开软件进行截图的,保证能够打开,下载原件超高清,下载后解压即可;
3、本站所有资源如无特殊说明,都需要本地电脑安装Office2007。图纸软件为AutoCAD,PROE,UG,SolidWorks,CATIA等;
4、本站所有图文资料仅供用户学习参考,不作为任何商用或其他用途;
5、本站不保证下载资源的准确性、安全性和完整性, 不包修改,不支持退换,同时也不承担用户因使用这些下载资源对自己和他人造成任何形式的伤害或损失;
6、 下载文件中如有侵权或不适当内容,请与我们联系,我们立即纠正。