

作品包括:
Word设计说明书1份
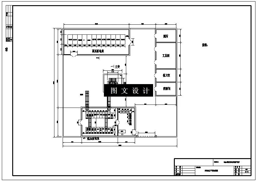
CAD版本图纸,共4张
摘要
变电站是一种重要的电力系统设施,其设计的合理性和可靠性直接关系到整个电力系统的安全。本设计根据任务书要求,以变电站安全运行为基础,参考相关规范,对一座35kv降压变电站进行了一次部分初步设计。 本设计根据某工厂负荷资料,进行了负荷计算,并根据计算结果选取了主变型号。随后按照主接线设计步骤设计了主接线,并对其进行短路电流计算。然后根据短路电流计算结果进行了高低压电气设备选型。最后设计变电站的防雷与接地,完成了整个初步设计。
温馨提示:
1、题目前面的备注【字母数字编号】为本站整理分类的编号,与课题内容无关,请选题时忽视;
2、若题目上备注三维,则表示文件里包含三维源文件,由于三维组成零件数量较多,为保证预览截图的简洁性,本站将三维文件夹进行了打包。三维及CAD预览截图,均为本站电脑打开软件进行截图的,保证能够打开,下载原件超高清,下载后解压即可;
3、本站所有资源如无特殊说明,都需要本地电脑安装Office2007。图纸软件为AutoCAD,PROE,UG,SolidWorks,CATIA等;
4、本站所有图文资料仅供用户学习参考,不作为任何商用或其他用途;
5、本站不保证下载资源的准确性、安全性和完整性, 不包修改,不支持退换,同时也不承担用户因使用这些下载资源对自己和他人造成任何形式的伤害或损失;
6、 下载文件中如有侵权或不适当内容,请与我们联系,我们立即纠正。