

作品包括:
WORD版设计说明书1份,共42页,约12000字
开题报告一份
任务书一份
文献综述一份
CAD版本图纸,共10张
目 录
摘 要................................................................Ⅰ
Abstract.............................................................Ⅱ
第1章 绪论..........................................................1
1.1 本课题研究的背景..........................................1
1.2 本课题研究的内容和方法....................................1
1.3国内外的发展现状...........................................1
1.31液压传动发展现状..........................................1
1.3.2 PLC的发展现状...........................................2
第2章 液压传动系统的设计
2.1液压系统工况的分析.........................................2
2.1.1 位移循环图L—t..........................................3.
2.1.2速度循环图v—t...........................................3
2.2液压缸的设计................................................3
2.2.1液压缸的负载分析..........................................3
2.2.2初步确定液压缸的工作压力..................................4
2.2.3液压缸的尺寸计算..........................................5
2.2.4 液压缸流量的计算..........................................5
2.3液压泵的确定与所需功率的计算................................5
2.4阀类元件的选择..............................................6
2.5滤油器的选型................................................8
2.6油箱的设计..................................................8
2.6.1油箱设计要点 .............................................9
2.6.2油箱容量计算..............................................9
第 3 章 滚轮电机的选择和调速 ...........................................9
3.1滚轮电机的选型及计算.........................................9
3.2变频器的选用................................................11
3.3滚轮电机的调速..............................................12
3.3.1三相异步的调速方式........................................12
3.3.2变频器的调速原理..........................................15
第4章 PLC的控制设计..................................................16
4.1 PLC的特点..................................................16
4.2 PLC的选型原则..............................................16
4.3机型的选择.................................................17
4.4控制要求...................................................17
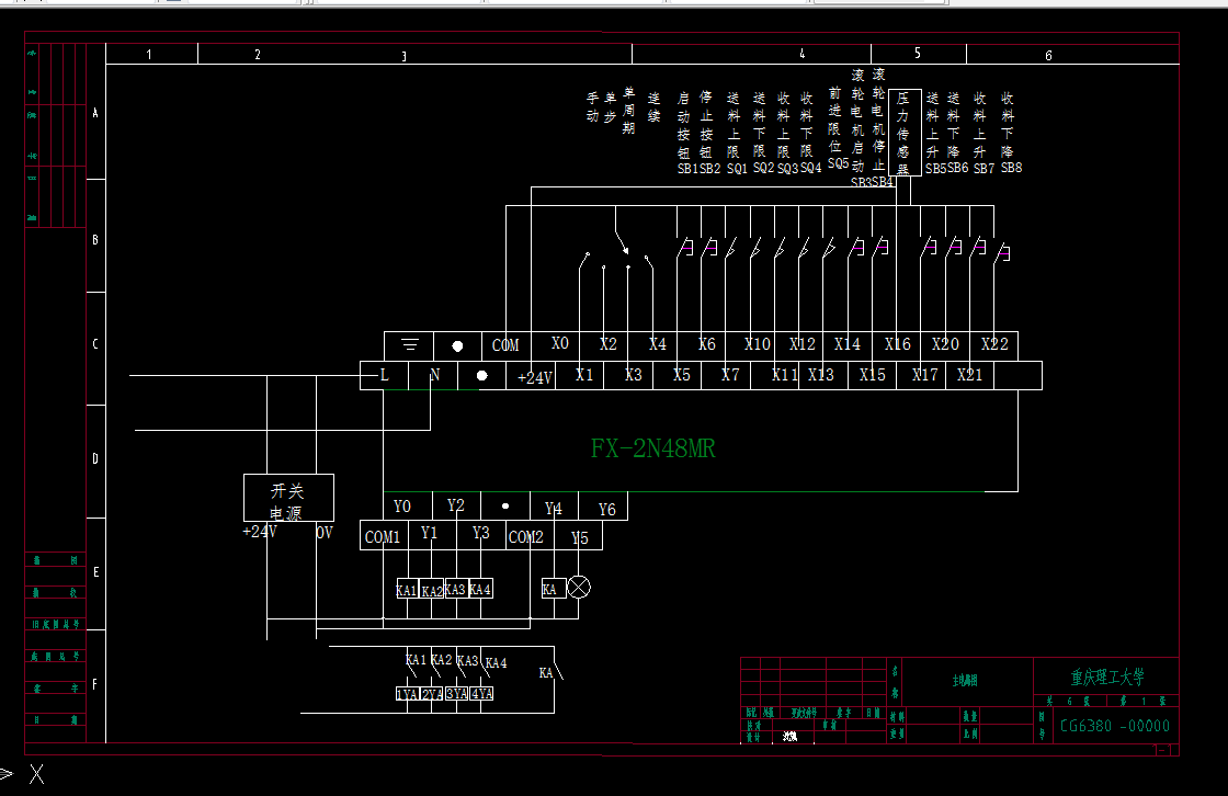
4.5电气原理图..................................................18
4.6I/O端口分配表..........................................20
4.7电器元件的选型.........................................21
4.8程序设计与系统流程图...................................23
4.9程序设及分析...............................................25
第5章 三菱编程软件和仿真软件.........................................29
5.1三菱编程软件...............................................35
5.2三菱仿真软件...............................................30
结论...................................................................42
致谢...................................................................43
参考文献...............................................................44
摘要
本文介绍了无心外圆磨床的上下料系统控制的原理和特点,主要是通过PLC控制液压系统实现对工件上料和收料的控制。先根据的已知条件计算并选择液压系统各个元件,如液压泵、电磁阀、流量控制阀等,再设计连接液压回路,形成液压的传动系统。由液压系统的不同控制控制方式、如手动控制和自动控制,选择合适的PLC,编写程序,绘制电气接线图,并在运行过程中不断的调整和优化。而且在整个过程中会有变频器对电机的调速和传感器的检测,这些也有赖于PLC的控制,总之,最后由PLC程序控制液压系统形成一个统一的控制系统整体,达到控制液压系统完成特定的工作行程的目的。
关键词:PLC 液压系统 变频器
温馨提示:
1、题目前面的备注【字母数字编号】为本站整理分类的编号,与课题内容无关,请选题时忽视;
2、若题目上备注三维,则表示文件里包含三维源文件,由于三维组成零件数量较多,为保证预览截图的简洁性,本站将三维文件夹进行了打包。三维及CAD预览截图,均为本站电脑打开软件进行截图的,保证能够打开,下载原件超高清,下载后解压即可;
3、本站所有资源如无特殊说明,都需要本地电脑安装Office2007。图纸软件为AutoCAD,PROE,UG,SolidWorks,CATIA等;
4、本站所有图文资料仅供用户学习参考,不作为任何商用或其他用途;
5、本站不保证下载资源的准确性、安全性和完整性, 不包修改,不支持退换,同时也不承担用户因使用这些下载资源对自己和他人造成任何形式的伤害或损失;
6、 下载文件中如有侵权或不适当内容,请与我们联系,我们立即纠正。